|
|
|
| Larry Stein Oklahoma County Assessor (405) 713-1200 - Public Access System |
|
|
|
|
|
|
| Real Property Display - Screen Produced 2/27/2026 9:41:03 PM | ||||
|---|---|---|---|---|
| Account: R181701120 | Type: Residential | Location: |
6208 N COLLEGE ST |
|
| Building Name/Occupant: |
|
WARR ACRES |
||
| Owner Name 1: | MOORE GLEN |
Parcel PIN#: |
2836-18-170-1120 |
|
| Owner Name 2: | MOORE LADONNA | 1/4 section #: |
2836 |
|
| Owner Name 3: | Parent Acct: |
|
||
| Billing Address: | 6208 N COLLEGE ST | Tax District: |
|
|
| City, State, Zip | OKLAHOMA CITY, OK 73122-7031 | School System: |
Putnam City #1 |
|
|
Country: (If noted) |
Land Size: |
0.1703 Acres |
||
|
Land Value: 35,616 |
|
|||
|
Sect 9-T12N-R4W Qtr NW |
W RAY NEWMANS WILLOWRIDGE
Block
002
Lot
008
|
|||
| Full Legal Description: W RAY NEWMANS WILLOWRIDGE 002 008 |
| Photo & Sketch (if available) | Comp Sales (ordered by relevancy) |
|
||||||||||||||||||
|
||||||||||||||||||||
| Value History (*The County Treasurer 405-713-1300 posts & collects actual tax amounts. Contact information HERE) | |||||||||||||
|---|---|---|---|---|---|---|---|---|---|---|---|---|---|
| Year | Market Value | Taxable Mkt Value | Gross Assessed | Exemption | Net Assessed | Millage | Est. Tax | Tax Savings | |||||
|
2025 |
226,500 |
185,735 |
20,430 |
0 |
20,430 |
115.77 |
$2,365 |
$519 |
|||||
|
2024 |
228,500 |
176,891 |
19,457 |
0 |
19,457 |
114.25 |
$2,223 |
$649 |
|||||
|
2023 |
219,500 |
168,468 |
18,531 |
0 |
18,531 |
117.84 |
$2,184 |
$661 |
|||||
|
2022 |
190,000 |
160,446 |
17,648 |
0 |
17,648 |
120.40 |
$2,125 |
$391 |
|||||
|
2021 |
157,500 |
152,806 |
16,808 |
0 |
16,808 |
119.77 |
$2,013 |
$62 |
|||||
| Property Account Status/Adjustments/Exemptions | ||
|---|---|---|
| Account # | Exemption Description | Amount |
|
R181701120 |
5% Capped Account |
0 |
| Property Deed Transaction History (Recorded in the County Clerk's Office) | |||||||
|---|---|---|---|---|---|---|---|
| Date | Type | Book | Page | Price | Grantor | Grantee | |
|
12/10/1999 |
|
Deeds |
$96,000 |
DARROW JEFFREY G |
MOORE GLEN |
||
|
7/18/1997 |
|
Historical |
$68,500 |
RILEY D C & CAMILLA L |
DARROW JEFFREY G |
||
|
7/21/1987 |
|
Historical |
$75,000 |
SOONER FEDERAL SAVINGS |
RILEY D C & CAMILLA L |
||
|
2/1/1987 |
|
Historical |
$0 |
KHEIR MIKE A & EMILY M |
SOONER FEDERAL SAVINGS |
||
|
8/1/1981 |
|
Historical |
$0 |
|
KHEIR MIKE A & EMILY M |
||
| Last Mailed Notice of Value (N.O.V.) Information/History | ||||||||
|---|---|---|---|---|---|---|---|---|
| Year | Date | Market Value | Taxable Market Value | Gross Assessed | Exemption | Net Assessed | ||
|
2026 |
02/23/2026 |
221,000 |
195,021 |
21,451 |
0 |
21,451 |
||
|
2025 |
02/14/2025 |
226,500 |
185,735 |
20,430 |
0 |
20,430 |
||
|
2024 |
02/13/2024 |
228,500 |
176,891 |
19,457 |
0 |
19,457 |
||
|
2023 |
02/14/2023 |
219,500 |
168,468 |
18,531 |
0 |
18,531 |
||
|
2022 |
03/15/2022 |
190,000 |
160,446 |
17,648 |
0 |
17,648 |
||
| Property Building Permit History | |||||||||||
|---|---|---|---|---|---|---|---|---|---|---|---|
| Issued | Permit # | Provided by | Bldg # | Description | Est Construction Cost | Status | |||||
| No Building Permit records returned. | |||||||||||
| Click button on building number to access detailed information: | ||||||
|---|---|---|---|---|---|---|
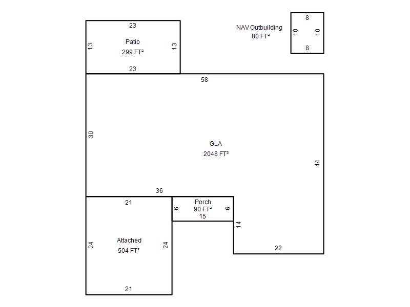
| Bldg # | Vacant/Improved Land | Bldg Description | Year Built | SqFt | # Stories | |
|
1 |
Improved |
Ranch 1 Story |
1974 |
2,048 |
1 Stories |
|