|
|
|
| Larry Stein Oklahoma County Assessor (405) 713-1200 - Public Access System |
|
|
|
|
|
|
| Real Property Display - Screen Produced 2/27/2026 9:38:20 PM | ||||
|---|---|---|---|---|
| Account: R181701380 | Type: Residential | Location: |
6308 WILLOWRIDGE DR |
|
| Building Name/Occupant: |
|
WARR ACRES |
||
| Owner Name 1: | XAHUENTITLA GUILLERMO |
Parcel PIN#: |
2836-18-170-1380 |
|
| Owner Name 2: | OLIVAS DE PEREZ MARIA DE LA LUZ | 1/4 section #: |
2836 |
|
| Owner Name 3: | Parent Acct: |
|
||
| Billing Address: | 6308 WILLOWRIDGE DR | Tax District: |
|
|
| City, State, Zip | WARR ACRES , OK 73122 | School System: |
Putnam City #1 |
|
|
Country: (If noted) |
Land Size: |
0.1825 Acres |
||
|
Land Value: 38,160 |
|
|||
|
Sect 9-T12N-R4W Qtr NW |
W RAY NEWMANS WILLOWRIDGE
Block
003
Lot
003
|
|||
| Full Legal Description: W RAY NEWMANS WILLOWRIDGE 003 003 |
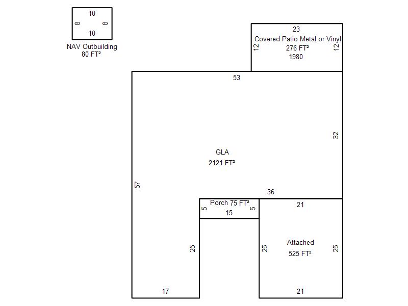
| Photo & Sketch (if available) | Comp Sales (ordered by relevancy) |
|
||||||||||||||||||
|
||||||||||||||||||||
| Value History (*The County Treasurer 405-713-1300 posts & collects actual tax amounts. Contact information HERE) | |||||||||||||
|---|---|---|---|---|---|---|---|---|---|---|---|---|---|
| Year | Market Value | Taxable Mkt Value | Gross Assessed | Exemption | Net Assessed | Millage | Est. Tax | Tax Savings | |||||
|
2025 |
240,500 |
183,766 |
20,213 |
1,000 |
19,213 |
115.77 |
$2,224 |
$838 |
|||||
|
2024 |
244,500 |
178,414 |
19,624 |
1,000 |
18,624 |
114.25 |
$2,128 |
$945 |
|||||
|
2023 |
236,000 |
173,218 |
19,053 |
1,000 |
18,053 |
117.84 |
$2,127 |
$932 |
|||||
|
2022 |
204,500 |
168,173 |
18,498 |
1,000 |
17,498 |
120.40 |
$2,107 |
$602 |
|||||
|
2021 |
167,000 |
163,275 |
17,960 |
0 |
17,960 |
119.77 |
$2,151 |
$49 |
|||||
| Property Account Status/Adjustments/Exemptions | ||
|---|---|---|
| Account # | Exemption Description | Amount |
|
R181701380 |
Freeze Senior Valuation |
0 |
|
R181701380 |
Homestead |
1,000 |
|
R181701380 |
3% Cap Homestead |
0 |
| Property Deed Transaction History (Recorded in the County Clerk's Office) | ||||||||||
|---|---|---|---|---|---|---|---|---|---|---|
| Date | Type | Book | Page | Price | Grantor | Grantee | ||||
|
5/15/2019 |
|
Deeds |
$110,000 |
US BANK NA |
XAHUENTITLA GUILLERMO |
|||||
|
11/19/2018 |
|
Hmstd Off & |
$0 |
THACH CA DA THI |
US BANK NA |
|||||
|
12/13/2004 |
|
Deeds |
$122,500 |
EYADIEL JOHN & A J TRS EYADIEL JOHN & A J LIVING TRUST |
THACH CA DA THI |
|||||
|
12/10/2004 |
|
Deeds |
$0 |
EYADIEL JOHN & A J TRS EYADIEL JOHN & A J LIVING TRUST |
EYADIEL JOHN & A J TRS EYADIEL JOHN & A J LIVING TRUST |
|||||
|
5/25/2001 |
|
Deeds |
$0 |
EYADIEL JOHN & A J TRS EYADIEL JOHN & A J LIVING TRUST |
EYADIEL JOHN & A J TRS EYADIEL JOHN & A J LIVING TRUST |
|||||
| Last Mailed Notice of Value (N.O.V.) Information/History | ||||||||
|---|---|---|---|---|---|---|---|---|
| Year | Date | Market Value | Taxable Market Value | Gross Assessed | Exemption | Net Assessed | ||
|
2025 |
02/14/2025 |
240,500 |
183,766 |
20,213 |
1,000 |
19,213 |
||
|
2024 |
02/13/2024 |
244,500 |
178,414 |
19,624 |
1,000 |
18,624 |
||
|
2023 |
02/14/2023 |
236,000 |
173,218 |
19,053 |
1,000 |
18,053 |
||
|
2022 |
03/15/2022 |
204,500 |
168,173 |
18,498 |
1,000 |
17,498 |
||
|
2021 |
03/19/2021 |
167,000 |
163,275 |
17,960 |
0 |
17,960 |
||
| Property Building Permit History | |||||||||||
|---|---|---|---|---|---|---|---|---|---|---|---|
| Issued | Permit # | Provided by | Bldg # | Description | Est Construction Cost | Status | |||||
| No Building Permit records returned. | |||||||||||
| Click button on building number to access detailed information: | ||||||
|---|---|---|---|---|---|---|
| Bldg # | Vacant/Improved Land | Bldg Description | Year Built | SqFt | # Stories | |
|
1 |
Improved |
Ranch 1 Story |
1973 |
2,121 |
1 Stories |
|