|
|
|
| Larry Stein Oklahoma County Assessor (405) 713-1200 - Public Access System |
|
|
|
|
|
|
| Real Property Display - Screen Produced 2/27/2026 9:40:11 PM | ||||
|---|---|---|---|---|
| Account: R181701660 | Type: Residential | Location: |
6724 WILLOWRIDGE DR |
|
| Building Name/Occupant: |
|
WARR ACRES |
||
| Owner Name 1: | BUNCH JOSHUA & KESHA |
Parcel PIN#: |
2836-18-170-1660 |
|
| Owner Name 2: | 1/4 section #: |
2836 |
||
| Owner Name 3: | Parent Acct: |
|
||
| Billing Address: | 6724 WILLOWRIDGE DR | Tax District: |
|
|
| City, State, Zip | OKLAHOMA CITY , OK 73122-7043 | School System: |
Putnam City #1 |
|
|
Country: (If noted) |
Land Size: |
0.2089 Acres |
||
|
Land Value: 43,680 |
|
|||
|
Sect 9-T12N-R4W Qtr NW |
W RAY NEWMANS WILLOWRIDGE
Block
003
Lot
031
|
|||
| Full Legal Description: W RAY NEWMANS WILLOWRIDGE 003 031 |
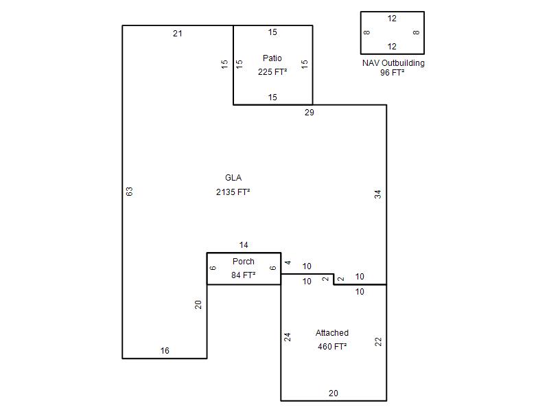
| Photo & Sketch (if available) | Comp Sales (ordered by relevancy) |
|
||||||||||||||||||
|
||||||||||||||||||||
| Value History (*The County Treasurer 405-713-1300 posts & collects actual tax amounts. Contact information HERE) | |||||||||||||
|---|---|---|---|---|---|---|---|---|---|---|---|---|---|
| Year | Market Value | Taxable Mkt Value | Gross Assessed | Exemption | Net Assessed | Millage | Est. Tax | Tax Savings | |||||
|
2025 |
229,000 |
190,802 |
20,987 |
0 |
20,987 |
115.77 |
$2,430 |
$486 |
|||||
|
2024 |
232,500 |
181,717 |
19,988 |
0 |
19,988 |
114.25 |
$2,284 |
$638 |
|||||
|
2023 |
223,500 |
173,064 |
19,036 |
0 |
19,036 |
117.84 |
$2,243 |
$654 |
|||||
|
2022 |
193,500 |
164,823 |
18,130 |
0 |
18,130 |
120.40 |
$2,183 |
$380 |
|||||
|
2021 |
160,000 |
156,975 |
17,267 |
0 |
17,267 |
119.77 |
$2,068 |
$40 |
|||||
| Property Account Status/Adjustments/Exemptions | ||
|---|---|---|
| Account # | Exemption Description | Amount |
|
R181701660 |
5% Capped Account |
0 |
| Property Deed Transaction History (Recorded in the County Clerk's Office) | ||||||||||
|---|---|---|---|---|---|---|---|---|---|---|
| Date | Type | Book | Page | Price | Grantor | Grantee | ||||
|
6/12/2019 |
|
Deeds |
$159,000 |
CALLOWAY CLYDE JR |
BUNCH JOSHUA & KESHA |
|||||
|
4/12/2016 |
|
Hmstd Off & |
$0 |
CALLOWAY CLYDE JR |
CALLOWAY CLYDE JR |
|||||
|
4/7/2016 |
|
Hmstd Off & |
$0 |
DUNCAN ARGIE LEE TRS DUNCAN ARGIE LEE REV TRUST |
DUNCAN JAMES D SUCCESSOR TRS DUNCAN ARGIE LEE REV TRUST |
|||||
|
4/7/2016 |
|
Deeds |
$127,500 |
DUNCAN JAMES D SUCCESSOR TRS DUNCAN ARGIE LEE REV TRUST |
CALLOWAY CLYDE JR |
|||||
|
9/30/2005 |
|
Deeds |
$0 |
DUNCAN ARGIE LEE |
DUNCAN ARGIE LEE TRS DUNCAN ARGIE LEE REV TRUST |
|||||
| Last Mailed Notice of Value (N.O.V.) Information/History | ||||||||
|---|---|---|---|---|---|---|---|---|
| Year | Date | Market Value | Taxable Market Value | Gross Assessed | Exemption | Net Assessed | ||
|
2026 |
02/23/2026 |
223,000 |
200,342 |
22,037 |
0 |
22,037 |
||
|
2025 |
02/14/2025 |
229,000 |
190,802 |
20,987 |
0 |
20,987 |
||
|
2024 |
02/13/2024 |
232,500 |
181,717 |
19,988 |
0 |
19,988 |
||
|
2023 |
02/14/2023 |
223,500 |
173,064 |
19,036 |
0 |
19,036 |
||
|
2022 |
03/15/2022 |
193,500 |
164,823 |
18,130 |
0 |
18,130 |
||
| Property Building Permit History | |||||||||||
|---|---|---|---|---|---|---|---|---|---|---|---|
| Issued | Permit # | Provided by | Bldg # | Description | Est Construction Cost | Status | |||||
| No Building Permit records returned. | |||||||||||
| Click button on building number to access detailed information: | ||||||
|---|---|---|---|---|---|---|
| Bldg # | Vacant/Improved Land | Bldg Description | Year Built | SqFt | # Stories | |
|
1 |
Improved |
Ranch 1 Story |
1973 |
2,135 |
1 Stories |
|