|
|
|
| Larry Stein Oklahoma County Assessor (405) 713-1200 - Public Access System |
|
|
|
|
|
|
| Real Property Display - Screen Produced 2/27/2026 9:41:03 PM | ||||
|---|---|---|---|---|
| Account: R181701910 | Type: Residential | Location: |
6709 WILLOWRIDGE DR |
|
| Building Name/Occupant: |
|
WARR ACRES |
||
| Owner Name 1: | KING RICHARD E & LUCILLE A TRS |
Parcel PIN#: |
2836-18-170-1910 |
|
| Owner Name 2: | KING RICHARD & LUCILLE REV LIV TRUST | 1/4 section #: |
2836 |
|
| Owner Name 3: | Parent Acct: |
|
||
| Billing Address: | 6709 WILLOWRIDGE DR | Tax District: |
|
|
| City, State, Zip | OKLAHOMA CITY, OK 73122-7042 | School System: |
Putnam City #1 |
|
|
Country: (If noted) |
Land Size: |
0.1928 Acres |
||
|
Land Value: 40,320 |
|
|||
|
Sect 9-T12N-R4W Qtr NW |
W RAY NEWMANS WILLOWRIDGE
Block
005
Lot
012
|
|||
| Full Legal Description: W RAY NEWMANS WILLOWRIDGE 005 012 |
| Photo & Sketch (if available) | Comp Sales (ordered by relevancy) |
|
||||||||||||||||||
|
||||||||||||||||||||
| Value History (*The County Treasurer 405-713-1300 posts & collects actual tax amounts. Contact information HERE) | |||||||||||||
|---|---|---|---|---|---|---|---|---|---|---|---|---|---|
| Year | Market Value | Taxable Mkt Value | Gross Assessed | Exemption | Net Assessed | Millage | Est. Tax | Tax Savings | |||||
|
2025 |
228,500 |
164,800 |
18,128 |
1,000 |
17,128 |
115.77 |
$1,983 |
$927 |
|||||
|
2024 |
232,500 |
160,000 |
17,599 |
1,000 |
16,599 |
114.25 |
$1,897 |
$1,025 |
|||||
|
2023 |
224,000 |
155,340 |
17,086 |
1,000 |
16,086 |
117.84 |
$1,896 |
$1,008 |
|||||
|
2022 |
194,500 |
150,816 |
16,589 |
1,000 |
15,589 |
120.40 |
$1,877 |
$699 |
|||||
|
2021 |
160,500 |
146,424 |
16,106 |
1,000 |
15,106 |
119.77 |
$1,809 |
$305 |
|||||
| Property Account Status/Adjustments/Exemptions | ||
|---|---|---|
| Account # | Exemption Description | Amount |
|
R181701910 |
3% Cap Homestead |
0 |
|
R181701910 |
Homestead |
1,000 |
| Property Deed Transaction History (Recorded in the County Clerk's Office) | |||||||
|---|---|---|---|---|---|---|---|
| Date | Type | Book | Page | Price | Grantor | Grantee | |
|
6/11/2015 |
|
Deeds |
$0 |
KING RICHARD E & LUCILLA A |
KING RICHARD E & LUCILLE A TRS |
||
|
12/1/1972 |
|
Historical |
$0 |
|
KING RICHARD E & LUCILLA A |
||
| Last Mailed Notice of Value (N.O.V.) Information/History | ||||||||
|---|---|---|---|---|---|---|---|---|
| Year | Date | Market Value | Taxable Market Value | Gross Assessed | Exemption | Net Assessed | ||
|
2026 |
02/23/2026 |
222,000 |
169,744 |
18,671 |
1,000 |
17,671 |
||
|
2025 |
02/14/2025 |
228,500 |
164,800 |
18,128 |
1,000 |
17,128 |
||
|
2024 |
02/13/2024 |
232,500 |
160,000 |
17,599 |
1,000 |
16,599 |
||
|
2023 |
02/14/2023 |
224,000 |
155,340 |
17,086 |
1,000 |
16,086 |
||
|
2022 |
03/15/2022 |
194,500 |
150,816 |
16,589 |
1,000 |
15,589 |
||
| Property Building Permit History | |||||||||||
|---|---|---|---|---|---|---|---|---|---|---|---|
| Issued | Permit # | Provided by | Bldg # | Description | Est Construction Cost | Status | |||||
| No Building Permit records returned. | |||||||||||
| Click button on building number to access detailed information: | ||||||
|---|---|---|---|---|---|---|
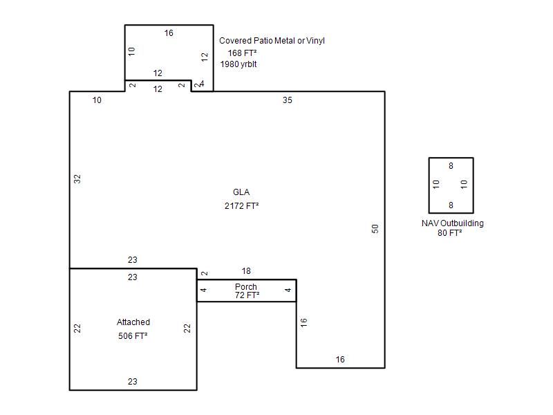
| Bldg # | Vacant/Improved Land | Bldg Description | Year Built | SqFt | # Stories | |
|
1 |
Improved |
Ranch 1 Story |
1973 |
2,172 |
1 Stories |
|