|
|
|
| Larry Stein Oklahoma County Assessor (405) 713-1200 - Public Access System |
|
|
|
|
|
|
| Real Property Display - Screen Produced 4/1/2026 12:25:33 AM | ||||
|---|---|---|---|---|
| Account: R142132005 | Type: Residential | Location: |
4716 NW 61ST ST |
|
| Building Name/Occupant: |
|
OKLAHOMA CITY |
||
| Owner Name 1: | DAVENPORT TRACY LYN |
Parcel PIN#: |
2837-14-213-2005 |
|
| Owner Name 2: | 1/4 section #: |
2837 |
||
| Owner Name 3: | Parent Acct: |
|
||
| Billing Address: | 3201 NW 45TH ST | Tax District: |
|
|
| City, State, Zip | OKLAHOMA CITY, OK 73112 | School System: |
Putnam City #1 |
|
|
Country: (If noted) |
Land Size: |
0.1928 Acres |
||
|
Land Value: 30,240 |
|
|||
|
Sect 10-T12N-R4W Qtr NE |
ROLLINGWOOD
Block
005
Lot
015
|
|||
| Full Legal Description: ROLLINGWOOD 005 015 |
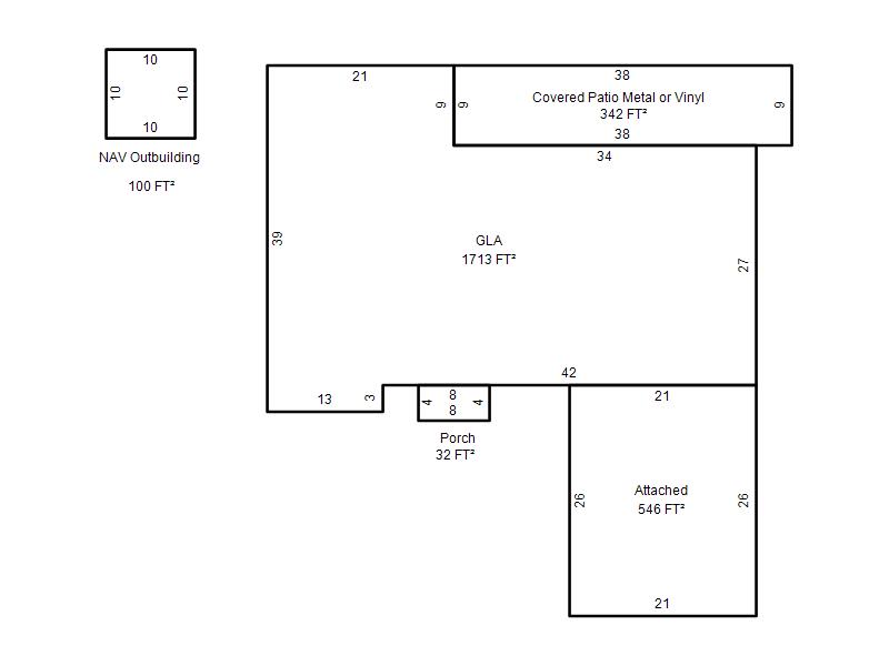
| Photo & Sketch (if available) | Comp Sales (ordered by relevancy) |
|
||||||||||||||||||
|
||||||||||||||||||||
| Value History (*The County Treasurer 405-713-1300 posts & collects actual tax amounts. Contact information HERE) | |||||||||||||
|---|---|---|---|---|---|---|---|---|---|---|---|---|---|
| Year | Market Value | Taxable Mkt Value | Gross Assessed | Exemption | Net Assessed | Millage | Est. Tax | Tax Savings | |||||
|
2026 |
231,500 |
216,422 |
23,805 |
0 |
23,805 |
123.17 |
$2,932 |
$204 |
|||||
|
2025 |
240,000 |
206,117 |
22,672 |
0 |
22,672 |
123.17 |
$2,793 |
$459 |
|||||
|
2024 |
241,500 |
196,302 |
21,593 |
0 |
21,593 |
122.30 |
$2,641 |
$608 |
|||||
|
2023 |
230,000 |
186,955 |
20,564 |
0 |
20,564 |
121.91 |
$2,507 |
$577 |
|||||
|
2022 |
201,500 |
178,053 |
19,585 |
0 |
19,585 |
123.41 |
$2,417 |
$318 |
|||||
| Property Account Status/Adjustments/Exemptions | ||
|---|---|---|
| Account # | Exemption Description | Amount |
|
R142132005 |
5% Capped Account |
0 |
| Property Deed Transaction History (Recorded in the County Clerk's Office) | |||||||
|---|---|---|---|---|---|---|---|
| Date | Type | Book | Page | Price | Grantor | Grantee | |
|
1/26/2023 |
|
Hmstd Off & |
$0 |
DAVENPORT LIVING TRUST |
DAVENPORT TRACY LYN |
||
|
9/27/2000 |
|
Deeds |
$103,000 |
SWANSON TOM R & ELAINE KAY |
DAVENPORT LIVING TRUST |
||
|
3/7/1996 |
|
Historical |
$87,000 |
RIDER DAVID M & EMILIE |
SWANSON TOM R & ELAINE KAY |
||
|
8/15/1990 |
|
Historical |
$73,500 |
FOLEY JAMES N & NINA J |
RIDER DAVID M & EMILIE |
||
|
7/1/1979 |
|
Historical |
$0 |
|
FOLEY JAMES N & NINA J |
||
| Last Mailed Notice of Value (N.O.V.) Information/History | ||||||||
|---|---|---|---|---|---|---|---|---|
| Year | Date | Market Value | Taxable Market Value | Gross Assessed | Exemption | Net Assessed | ||
|
2026 |
02/23/2026 |
231,500 |
216,422 |
23,805 |
0 |
23,805 |
||
|
2025 |
02/14/2025 |
240,000 |
206,117 |
22,672 |
0 |
22,672 |
||
|
2024 |
02/13/2024 |
241,500 |
196,302 |
21,593 |
0 |
21,593 |
||
|
2023 |
02/14/2023 |
230,000 |
186,955 |
20,564 |
0 |
20,564 |
||
|
2022 |
03/15/2022 |
201,500 |
178,053 |
19,585 |
0 |
19,585 |
||
| Property Building Permit History | |||||||||||
|---|---|---|---|---|---|---|---|---|---|---|---|
| Issued | Permit # | Provided by | Bldg # | Description | Est Construction Cost | Status | |||||
| No Building Permit records returned. | |||||||||||
| Click button on building number to access detailed information: | ||||||
|---|---|---|---|---|---|---|
| Bldg # | Vacant/Improved Land | Bldg Description | Year Built | SqFt | # Stories | |
|
1 |
Improved |
Ranch 1 Story |
1972 |
1,713 |
1 Stories |
|