|
|
|
| Larry Stein Oklahoma County Assessor (405) 713-1200 - Public Access System |
|
|
|
|
|
|
| Real Property Display - Screen Produced 4/1/2026 2:06:22 AM | ||||
|---|---|---|---|---|
| Account: R142762405 | Type: Residential | Location: |
5921 N ROFF AVE |
|
| Building Name/Occupant: |
|
OKLAHOMA CITY |
||
| Owner Name 1: | LAMBERT DESIREE |
Parcel PIN#: |
2841-14-276-2405 |
|
| Owner Name 2: | 1/4 section #: |
2841 |
||
| Owner Name 3: | Parent Acct: |
|
||
| Billing Address: | 5921 N ROFF AVE | Tax District: |
|
|
| City, State, Zip | OKLAHOMA CITY, OK 73112 | School System: |
Putnam City #1 |
|
|
Country: (If noted) |
Land Size: |
0.2588 Acres |
||
|
Land Value: 35,000 |
|
|||
|
Sect 11-T12N-R4W Qtr NE |
CORONADO HEIGHTS ADD
Block
007
Lot
000
|
|||
| Full Legal Description: CORONADO HEIGHTS ADD 007 000 LOT 1 EX NLY 8.1FT |
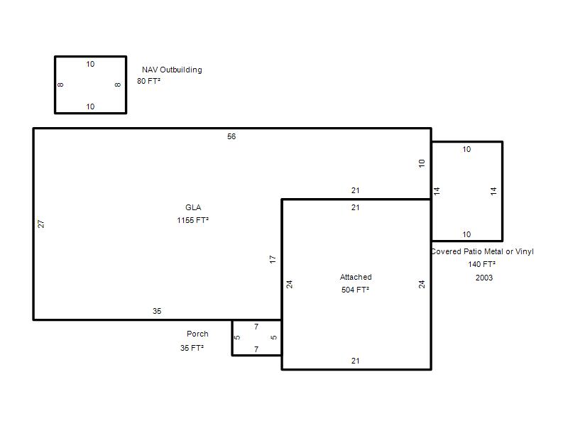
| Photo & Sketch (if available) | Comp Sales (ordered by relevancy) |
|
||||||||||||||||||
|
||||||||||||||||||||
| Value History (*The County Treasurer 405-713-1300 posts & collects actual tax amounts. Contact information HERE) | |||||||||||||
|---|---|---|---|---|---|---|---|---|---|---|---|---|---|
| Year | Market Value | Taxable Mkt Value | Gross Assessed | Exemption | Net Assessed | Millage | Est. Tax | Tax Savings | |||||
|
2026 |
214,000 |
168,468 |
18,531 |
0 |
18,531 |
123.17 |
$2,283 |
$617 |
|||||
|
2025 |
214,500 |
160,446 |
17,648 |
0 |
17,648 |
123.17 |
$2,174 |
$732 |
|||||
|
2024 |
212,500 |
152,806 |
16,808 |
0 |
16,808 |
122.30 |
$2,056 |
$803 |
|||||
|
2023 |
204,000 |
145,530 |
16,008 |
0 |
16,008 |
121.91 |
$1,952 |
$784 |
|||||
|
2022 |
155,000 |
138,600 |
15,246 |
0 |
15,246 |
123.41 |
$1,882 |
$223 |
|||||
| Property Account Status/Adjustments/Exemptions | ||
|---|---|---|
| Account # | Exemption Description | Amount |
|
R142762405 |
5% Capped Account |
0 |
| Property Deed Transaction History (Recorded in the County Clerk's Office) | ||||||||||
|---|---|---|---|---|---|---|---|---|---|---|
| Date | Type | Book | Page | Price | Grantor | Grantee | ||||
|
8/2/2019 |
|
Deeds |
$122,000 |
MATTHEWS KAREN ANNE |
LAMBERT DESIREE |
|||||
|
12/27/2013 |
|
Deeds |
$120,000 |
SAXON CHRISTOPHER PAUL |
MATTHEWS KAREN ANNE |
|||||
|
4/22/2009 |
|
Deeds |
$106,000 |
FITZGERALD TERRY ANN |
SAXON CHRISTOPHER PAUL |
|||||
|
11/3/2005 |
|
Deeds |
$87,000 |
VAUGHT LINDA C |
FITZGERALD TERRY ANN |
|||||
|
6/1/1998 |
|
Historical |
$60,000 |
BLUMHOF NORMA K |
VAUGHT LINDA C |
|||||
| Last Mailed Notice of Value (N.O.V.) Information/History | ||||||||
|---|---|---|---|---|---|---|---|---|
| Year | Date | Market Value | Taxable Market Value | Gross Assessed | Exemption | Net Assessed | ||
|
2026 |
02/23/2026 |
214,000 |
168,468 |
18,531 |
0 |
18,531 |
||
|
2025 |
02/14/2025 |
214,500 |
160,446 |
17,648 |
0 |
17,648 |
||
|
2024 |
02/13/2024 |
212,500 |
152,806 |
16,808 |
0 |
16,808 |
||
|
2023 |
02/14/2023 |
204,000 |
145,530 |
16,008 |
0 |
16,008 |
||
|
2022 |
03/15/2022 |
155,000 |
138,600 |
15,246 |
0 |
15,246 |
||
| Property Building Permit History | |||||||||||
|---|---|---|---|---|---|---|---|---|---|---|---|
| Issued | Permit # | Provided by | Bldg # | Description | Est Construction Cost | Status | |||||
| No Building Permit records returned. | |||||||||||
| Click button on building number to access detailed information: | ||||||
|---|---|---|---|---|---|---|
| Bldg # | Vacant/Improved Land | Bldg Description | Year Built | SqFt | # Stories | |
|
1 |
Improved |
Ranch 1 Story |
1955 |
1,155 |
1 Stories |
|