|
|
|
| Larry Stein Oklahoma County Assessor (405) 713-1200 - Public Access System |
|
|
|
|
|
|
| Real Property Display - Screen Produced 4/2/2026 10:37:44 AM | ||||
|---|---|---|---|---|
| Account: R142191045 | Type: Residential | Location: |
3716 NW 58TH ST |
|
| Building Name/Occupant: |
|
OKLAHOMA CITY |
||
| Owner Name 1: | BROWN RUBYE |
Parcel PIN#: |
2842-14-219-1045 |
|
| Owner Name 2: | 1/4 section #: |
2842 |
||
| Owner Name 3: | Parent Acct: |
|
||
| Billing Address: | 3716 NW 58TH ST | Tax District: |
|
|
| City, State, Zip | OKLAHOMA CITY, OK 73112-1636 | School System: |
Putnam City #1 |
|
|
Country: (If noted) |
Land Size: |
0.1433 Acres |
||
|
Land Value: 26,770 |
|
|||
|
Sect 11-T12N-R4W Qtr SE |
PORTLAND HILLS 3RD
Block
001
Lot
005
|
|||
| Full Legal Description: PORTLAND HILLS 3RD 001 005 |
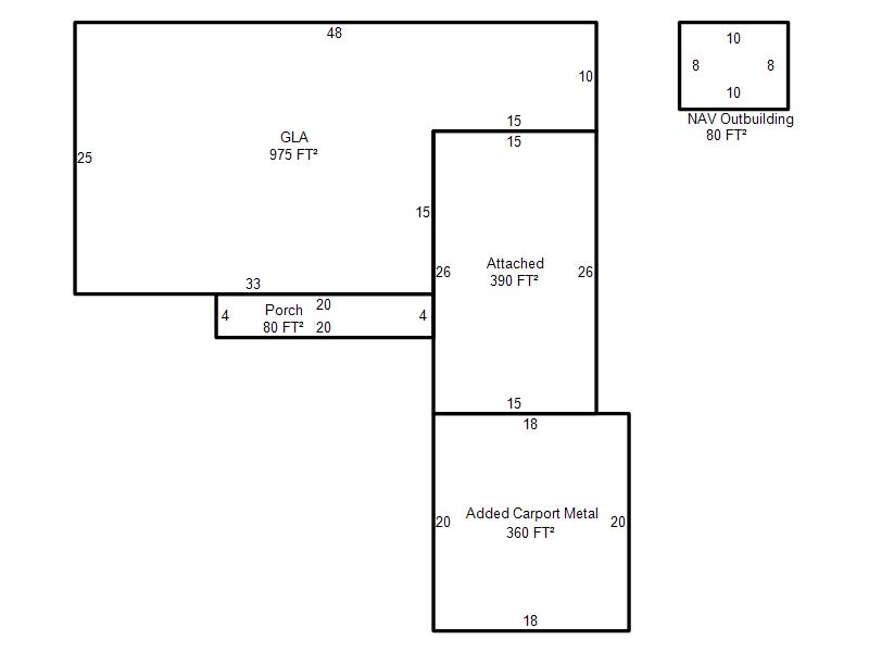
| Photo & Sketch (if available) | Comp Sales (ordered by relevancy) |
|
||||||||||||||||||
|
||||||||||||||||||||
| Value History (*The County Treasurer 405-713-1300 posts & collects actual tax amounts. Contact information HERE) | |||||||||||||
|---|---|---|---|---|---|---|---|---|---|---|---|---|---|
| Year | Market Value | Taxable Mkt Value | Gross Assessed | Exemption | Net Assessed | Millage | Est. Tax | Tax Savings | |||||
|
2026 |
136,500 |
80,000 |
8,800 |
1,000 |
7,800 |
123.17 |
$961 |
$889 |
|||||
|
2025 |
143,500 |
80,000 |
8,800 |
1,000 |
7,800 |
123.17 |
$961 |
$984 |
|||||
|
2024 |
141,000 |
80,000 |
8,800 |
1,000 |
7,800 |
122.30 |
$954 |
$943 |
|||||
|
2023 |
129,500 |
80,000 |
8,800 |
1,000 |
7,800 |
121.91 |
$951 |
$786 |
|||||
|
2022 |
114,500 |
80,000 |
8,800 |
1,000 |
7,800 |
123.41 |
$963 |
$592 |
|||||
| Property Account Status/Adjustments/Exemptions | ||
|---|---|---|
| Account # | Exemption Description | Amount |
|
R142191045 |
Freeze Senior Valuation |
0 |
|
R142191045 |
Homestead |
1,000 |
|
R142191045 |
3% Cap Homestead |
0 |
| Property Deed Transaction History (Recorded in the County Clerk's Office) | ||||||||||
|---|---|---|---|---|---|---|---|---|---|---|
| Date | Type | Book | Page | Price | Grantor | Grantee | ||||
|
10/23/2024 |
|
Deeds |
$0 |
BROWN WILLIE JR & RUBYE |
BROWN RUBYE |
|||||
|
6/30/1989 |
|
Historical |
$35,000 |
C WATTS CONSTRUCTION CO INC |
BROWN WILLIE JR & RUBYE |
|||||
|
6/22/1989 |
|
Historical |
$0 |
WATTS CALVIN L |
C WATTS CONSTRUCTION CO INC |
|||||
|
3/16/1989 |
|
Historical |
$33,000 |
ELLIS LAJUNE E |
WATTS CALVIN L |
|||||
|
11/28/1988 |
|
Historical |
$0 |
AGEE WANDA E |
ELLIS LAJUNE E |
|||||
| Last Mailed Notice of Value (N.O.V.) Information/History | ||||||||
|---|---|---|---|---|---|---|---|---|
| Year | Date | Market Value | Taxable Market Value | Gross Assessed | Exemption | Net Assessed | ||
|
2025 |
02/14/2025 |
143,500 |
80,000 |
8,800 |
1,000 |
7,800 |
||
|
2024 |
02/13/2024 |
141,000 |
80,000 |
8,800 |
1,000 |
7,800 |
||
|
2023 |
02/14/2023 |
129,500 |
80,000 |
8,800 |
1,000 |
7,800 |
||
|
2022 |
03/15/2022 |
114,500 |
80,000 |
8,800 |
1,000 |
7,800 |
||
|
2021 |
03/19/2021 |
101,000 |
80,000 |
8,800 |
1,000 |
7,800 |
||
| Property Building Permit History | ||||||
|---|---|---|---|---|---|---|
| Issued | Permit # | Provided by | Bldg # | Description | Est Construction Cost | Status |
|
6/12/2012 |
10445460 |
OKLAHOMA CITY |
1 |
Carport |
1,131 |
Inactive |
| Click button on building number to access detailed information: | ||||||
|---|---|---|---|---|---|---|
| Bldg # | Vacant/Improved Land | Bldg Description | Year Built | SqFt | # Stories | |
|
1 |
Improved |
Ranch 1 Story |
1956 |
975 |
1 Stories |
|