|
|
|
| Larry Stein Oklahoma County Assessor (405) 713-1200 - Public Access System |
|
|
|
|
|
|
| Real Property Display - Screen Produced 2/28/2026 2:22:53 AM | ||||
|---|---|---|---|---|
| Account: R143361540 | Type: Residential | Location: |
6217 N WARREN AVE |
|
| Building Name/Occupant: |
|
OKLAHOMA CITY |
||
| Owner Name 1: | PIERCE MEGHAN ELISE |
Parcel PIN#: |
2844-14-336-1540 |
|
| Owner Name 2: | 1/4 section #: |
2844 |
||
| Owner Name 3: | Parent Acct: |
|
||
| Billing Address: | 6217 N WARREN AVE | Tax District: |
|
|
| City, State, Zip | OKLAHOMA CITY, OK 73112-1262 | School System: |
Putnam City #1 |
|
|
Country: (If noted) |
Land Size: |
0.2107 Acres |
||
|
Land Value: 39,457 |
|
|||
|
Sect 11-T12N-R4W Qtr NW |
CLARKS LAKERIDGE
Block
003
Lot
008
|
|||
| Full Legal Description: CLARKS LAKERIDGE 003 008 |
| Photo & Sketch (if available) | Comp Sales (ordered by relevancy) |
|
||||||||||||||||||
|
||||||||||||||||||||
| Value History (*The County Treasurer 405-713-1300 posts & collects actual tax amounts. Contact information HERE) | |||||||||||||
|---|---|---|---|---|---|---|---|---|---|---|---|---|---|
| Year | Market Value | Taxable Mkt Value | Gross Assessed | Exemption | Net Assessed | Millage | Est. Tax | Tax Savings | |||||
|
2025 |
221,500 |
166,030 |
18,262 |
1,000 |
17,262 |
123.17 |
$2,126 |
$875 |
|||||
|
2024 |
221,500 |
161,195 |
17,731 |
1,000 |
16,731 |
122.30 |
$2,046 |
$934 |
|||||
|
2023 |
212,000 |
156,500 |
17,214 |
1,000 |
16,214 |
121.91 |
$1,977 |
$866 |
|||||
|
2022 |
186,500 |
151,942 |
16,712 |
1,000 |
15,712 |
123.41 |
$1,939 |
$593 |
|||||
|
2021 |
157,000 |
147,517 |
16,226 |
1,000 |
15,226 |
122.23 |
$1,861 |
$250 |
|||||
| Property Account Status/Adjustments/Exemptions | ||
|---|---|---|
| Account # | Exemption Description | Amount |
|
R143361540 |
3% Cap Homestead |
0 |
|
R143361540 |
Homestead |
1,000 |
| Property Deed Transaction History (Recorded in the County Clerk's Office) | ||||||||||
|---|---|---|---|---|---|---|---|---|---|---|
| Date | Type | Book | Page | Price | Grantor | Grantee | ||||
|
9/5/2016 |
|
Deeds |
$129,000 |
MOSLEY LESLIE F |
PIERCE MEGHAN ELISE |
|||||
|
7/9/2007 |
|
Deeds |
$118,000 |
ARMSTRONG DANIEL ARMSTRONG JENNIFER |
MOSLEY LESLIE F |
|||||
|
9/27/2001 |
|
Deeds |
$90,000 |
KEPLER KATHERINE RENEE |
ARMSTRONG DANIEL ARMSTRONG JENNIFER |
|||||
|
2/9/1996 |
|
Historical |
$73,000 |
PHILLIPS CARLITA |
KEPLER KATHERINE RENEE |
|||||
|
10/2/1992 |
|
Historical |
$0 |
PHILLIPS MICHAEL R & CARLITA J |
PHILLIPS CARLITA |
|||||
| Last Mailed Notice of Value (N.O.V.) Information/History | ||||||||
|---|---|---|---|---|---|---|---|---|
| Year | Date | Market Value | Taxable Market Value | Gross Assessed | Exemption | Net Assessed | ||
|
2026 |
02/23/2026 |
214,000 |
171,010 |
18,810 |
1,000 |
17,810 |
||
|
2025 |
02/14/2025 |
221,500 |
166,030 |
18,262 |
1,000 |
17,262 |
||
|
2024 |
02/13/2024 |
221,500 |
161,195 |
17,731 |
1,000 |
16,731 |
||
|
2023 |
02/14/2023 |
212,000 |
156,500 |
17,214 |
1,000 |
16,214 |
||
|
2022 |
03/15/2022 |
186,500 |
151,942 |
16,712 |
1,000 |
15,712 |
||
| Property Building Permit History | |||||||||||
|---|---|---|---|---|---|---|---|---|---|---|---|
| Issued | Permit # | Provided by | Bldg # | Description | Est Construction Cost | Status | |||||
| No Building Permit records returned. | |||||||||||
| Click button on building number to access detailed information: | ||||||
|---|---|---|---|---|---|---|
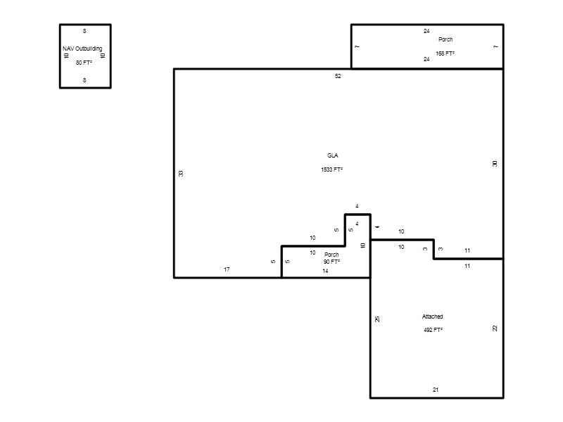
| Bldg # | Vacant/Improved Land | Bldg Description | Year Built | SqFt | # Stories | |
|
1 |
Improved |
Ranch 1 Story |
1969 |
1,533 |
1 Stories |
|