|
|
|
| Larry Stein Oklahoma County Assessor (405) 713-1200 - Public Access System |
|
|
|
|
|
|
| Real Property Display - Screen Produced 4/2/2026 4:14:32 PM | ||||
|---|---|---|---|---|
| Account: R146651625 | Type: Residential | Location: |
4205 NW 57TH ST |
|
| Building Name/Occupant: |
|
OKLAHOMA CITY |
||
| Owner Name 1: | FUNK JESSICA |
Parcel PIN#: |
2844-14-665-1625 |
|
| Owner Name 2: | 1/4 section #: |
2844 |
||
| Owner Name 3: | Parent Acct: |
|
||
| Billing Address: | 4205 NW 57TH ST | Tax District: |
|
|
| City, State, Zip | OKLAHOMA CITY, OK 73112-1579 | School System: |
Putnam City #1 |
|
|
Country: (If noted) |
Land Size: |
0.1763 Acres |
||
|
Land Value: 34,560 |
|
|||
|
Sect 11-T12N-R4W Qtr NW |
LAKECREST
Block
003
Lot
007
|
|||
| Full Legal Description: LAKECREST 003 007 |
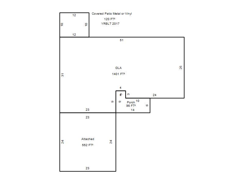
| Photo & Sketch (if available) | Comp Sales (ordered by relevancy) |
|
||||||||||||||||||
|
||||||||||||||||||||
| Value History (*The County Treasurer 405-713-1300 posts & collects actual tax amounts. Contact information HERE) | |||||||||||||
|---|---|---|---|---|---|---|---|---|---|---|---|---|---|
| Year | Market Value | Taxable Mkt Value | Gross Assessed | Exemption | Net Assessed | Millage | Est. Tax | Tax Savings | |||||
|
2026 |
214,500 |
167,844 |
18,462 |
1,000 |
17,462 |
123.17 |
$2,151 |
$755 |
|||||
|
2025 |
217,500 |
162,956 |
17,925 |
1,000 |
16,925 |
123.17 |
$2,085 |
$862 |
|||||
|
2024 |
216,000 |
158,210 |
17,402 |
1,000 |
16,402 |
122.30 |
$2,006 |
$900 |
|||||
|
2023 |
206,000 |
153,602 |
16,896 |
1,000 |
15,896 |
121.91 |
$1,938 |
$825 |
|||||
|
2022 |
181,500 |
149,129 |
16,402 |
1,000 |
15,402 |
123.41 |
$1,901 |
$563 |
|||||
| Property Account Status/Adjustments/Exemptions | ||
|---|---|---|
| Account # | Exemption Description | Amount |
|
R146651625 |
Homestead |
1,000 |
|
R146651625 |
3% Cap Homestead |
0 |
| Property Deed Transaction History (Recorded in the County Clerk's Office) | ||||||||||
|---|---|---|---|---|---|---|---|---|---|---|
| Date | Type | Book | Page | Price | Grantor | Grantee | ||||
|
10/22/2009 |
|
Deeds |
$125,000 |
REISWIG JOHN A |
FUNK JESSICA |
|||||
|
5/22/2006 |
|
Deeds |
$120,000 |
TEWELL DENNIS CO TRS TEWELL DOUG CO TRS |
REISWIG JOHN A |
|||||
|
1/25/2002 |
|
Deeds |
$0 |
DENNIS MARY IDELLE CO TRS ETAL DENNIS MARGIE TEWELL CO TRS |
TEWELL DENNIS CO TRS TEWELL DOUG CO TRS |
|||||
|
11/24/1993 |
|
Historical |
$0 |
DENNIS JAMES L |
DENNIS MARY IDELLE CO TRS ETAL |
|||||
|
11/23/1993 |
|
Historical |
$0 |
DENNIS J L & IDELLE |
DENNIS JAMES L |
|||||
| Last Mailed Notice of Value (N.O.V.) Information/History | ||||||||
|---|---|---|---|---|---|---|---|---|
| Year | Date | Market Value | Taxable Market Value | Gross Assessed | Exemption | Net Assessed | ||
|
2026 |
02/23/2026 |
214,500 |
167,844 |
18,462 |
1,000 |
17,462 |
||
|
2025 |
02/14/2025 |
217,500 |
162,956 |
17,925 |
1,000 |
16,925 |
||
|
2024 |
02/13/2024 |
216,000 |
158,210 |
17,402 |
1,000 |
16,402 |
||
|
2023 |
02/14/2023 |
206,000 |
153,602 |
16,896 |
1,000 |
15,896 |
||
|
2022 |
03/15/2022 |
181,500 |
149,129 |
16,402 |
1,000 |
15,402 |
||
| Property Building Permit History | |||||||||||
|---|---|---|---|---|---|---|---|---|---|---|---|
| Issued | Permit # | Provided by | Bldg # | Description | Est Construction Cost | Status | |||||
| No Building Permit records returned. | |||||||||||
| Click button on building number to access detailed information: | ||||||
|---|---|---|---|---|---|---|
| Bldg # | Vacant/Improved Land | Bldg Description | Year Built | SqFt | # Stories | |
|
1 |
Improved |
Ranch 1 Story |
1960 |
1,401 |
1 Stories |
|