|
|
|
| Larry Stein Oklahoma County Assessor (405) 713-1200 - Public Access System |
|
|
|
|
|
|
| Real Property Display - Screen Produced 4/1/2026 9:40:50 AM | ||||
|---|---|---|---|---|
| Account: R142711725 | Type: Residential | Location: |
3221 NW 61ST TER |
|
| Building Name/Occupant: |
|
OKLAHOMA CITY |
||
| Owner Name 1: | MITCHELL BRANDON & SACHI |
Parcel PIN#: |
2845-14-271-1725 |
|
| Owner Name 2: | 1/4 section #: |
2845 |
||
| Owner Name 3: | Parent Acct: |
|
||
| Billing Address: | 3221 NW 61ST TER | Tax District: |
|
|
| City, State, Zip | OKLAHOMA CITY, OK 73112 | School System: |
Putnam City #1 |
|
|
Country: (If noted) |
Land Size: |
0.3147 Acres |
||
|
Land Value: 68,540 |
|
|||
|
Sect 12-T12N-R4W Qtr NE |
ROBERTS LAKEVIEW
Block
003
Lot
022
|
|||
| Full Legal Description: ROBERTS LAKEVIEW 003 022 |
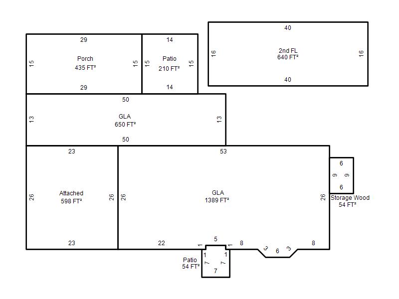
| Photo & Sketch (if available) | Comp Sales (ordered by relevancy) |
|
||||||||||||||||||
|
||||||||||||||||||||
| Value History (*The County Treasurer 405-713-1300 posts & collects actual tax amounts. Contact information HERE) | |||||||||||||
|---|---|---|---|---|---|---|---|---|---|---|---|---|---|
| Year | Market Value | Taxable Mkt Value | Gross Assessed | Exemption | Net Assessed | Millage | Est. Tax | Tax Savings | |||||
|
2026 |
401,000 |
401,000 |
44,110 |
0 |
44,110 |
123.17 |
$5,433 |
$0 |
|||||
|
2025 |
409,000 |
404,010 |
44,440 |
0 |
44,440 |
123.17 |
$5,474 |
$68 |
|||||
|
2024 |
408,000 |
384,772 |
42,324 |
0 |
42,324 |
122.30 |
$5,176 |
$312 |
|||||
|
2023 |
381,000 |
366,450 |
40,309 |
0 |
40,309 |
121.91 |
$4,914 |
$195 |
|||||
|
2022 |
349,000 |
349,000 |
38,390 |
0 |
38,390 |
123.41 |
$4,738 |
$0 |
|||||
| Property Account Status/Adjustments/Exemptions | ||
|---|---|---|
| Account # | Exemption Description | Amount |
|
R142711725 |
5% Capped Account |
0 |
| Property Deed Transaction History (Recorded in the County Clerk's Office) | ||||||||||
|---|---|---|---|---|---|---|---|---|---|---|
| Date | Type | Book | Page | Price | Grantor | Grantee | ||||
|
6/25/2021 |
|
Deeds |
$335,000 |
BANUELOS MIGUEL A & ELIZABETH |
MITCHELL BRANDON & SACHI |
|||||
|
6/29/2020 |
|
Hmstd Off & |
$0 |
MARTINEZ JOSE L & RAQUEL |
BANUELOS MIGUEL A & ELIZABETH |
|||||
|
4/28/2015 |
|
Deeds |
$205,000 |
BANUELO MIGUEL & ELIZABETH |
MARTINEZ JOSE L & RAQUEL |
|||||
|
6/1/2004 |
|
Deeds |
$190,000 |
WHITE BRINDA K |
BANUELO MIGUEL & ELIZABETH |
|||||
|
10/31/2001 |
|
Deeds |
$165,000 |
COY KENNETH S & SUSAN D |
WHITE BRINDA K |
|||||
| Last Mailed Notice of Value (N.O.V.) Information/History | ||||||||
|---|---|---|---|---|---|---|---|---|
| Year | Date | Market Value | Taxable Market Value | Gross Assessed | Exemption | Net Assessed | ||
|
2025 |
02/14/2025 |
409,000 |
404,010 |
44,440 |
0 |
44,440 |
||
|
2024 |
02/13/2024 |
408,000 |
384,772 |
42,324 |
0 |
42,324 |
||
|
2023 |
02/14/2023 |
381,000 |
366,450 |
40,309 |
0 |
40,309 |
||
|
2022 |
03/15/2022 |
349,000 |
349,000 |
38,390 |
0 |
38,390 |
||
|
2021 |
03/19/2021 |
257,000 |
241,082 |
26,519 |
0 |
26,519 |
||
| Property Building Permit History | |||||||||||
|---|---|---|---|---|---|---|---|---|---|---|---|
| Issued | Permit # | Provided by | Bldg # | Description | Est Construction Cost | Status | |||||
| No Building Permit records returned. | |||||||||||
| Click button on building number to access detailed information: | ||||||
|---|---|---|---|---|---|---|
| Bldg # | Vacant/Improved Land | Bldg Description | Year Built | SqFt | # Stories | |
|
1 |
Improved |
1½ Story Fin |
1962 |
2,679 |
1.5 Stories |
|