|
|
|
| Larry Stein Oklahoma County Assessor (405) 713-1200 - Public Access System |
|
|
|
|
|
|
| Real Property Display - Screen Produced 4/1/2026 8:06:18 PM | ||||
|---|---|---|---|---|
| Account: R142751085 | Type: Residential | Location: |
3337 EASTMAN DR |
|
| Building Name/Occupant: |
|
OKLAHOMA CITY |
||
| Owner Name 1: | SILVER CREEK CAPITAL LLC |
Parcel PIN#: |
2848-14-275-1085 |
|
| Owner Name 2: | 1/4 section #: |
2848 |
||
| Owner Name 3: | Parent Acct: |
|
||
| Billing Address: | 3337 EASTMAN DR | Tax District: |
|
|
| City, State, Zip | OKLAHOMA CITY, OK 73112 | School System: |
Putnam City #1 |
|
|
Country: (If noted) |
Land Size: |
0.1928 Acres |
||
|
Land Value: 42,840 |
|
|||
|
Sect 12-T12N-R4W Qtr NW |
SMITHS HIGHLAND HILLS
Block
001
Lot
000
|
|||
| Full Legal Description: SMITHS HIGHLAND HILLS 001 000 W25FT OF LOT 9 & E50FT LOT 10 |
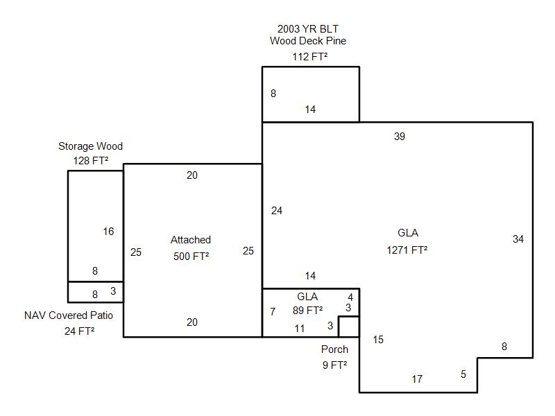
| Photo & Sketch (if available) | Comp Sales (ordered by relevancy) |
|
||||||||||||||||||
|
||||||||||||||||||||
| Value History (*The County Treasurer 405-713-1300 posts & collects actual tax amounts. Contact information HERE) | |||||||||||||
|---|---|---|---|---|---|---|---|---|---|---|---|---|---|
| Year | Market Value | Taxable Mkt Value | Gross Assessed | Exemption | Net Assessed | Millage | Est. Tax | Tax Savings | |||||
|
2026 |
188,000 |
188,000 |
20,680 |
0 |
20,680 |
123.17 |
$2,547 |
$0 |
|||||
|
2025 |
196,500 |
196,500 |
21,615 |
0 |
21,615 |
123.17 |
$2,662 |
$0 |
|||||
|
2024 |
195,500 |
195,300 |
21,483 |
0 |
21,483 |
122.30 |
$2,627 |
$3 |
|||||
|
2023 |
186,000 |
186,000 |
20,460 |
0 |
20,460 |
121.91 |
$2,494 |
$0 |
|||||
|
2022 |
166,000 |
141,606 |
15,575 |
0 |
15,575 |
123.41 |
$1,922 |
$331 |
|||||
| Property Account Status/Adjustments/Exemptions | ||
|---|---|---|
| Account # | Exemption Description | Amount |
|
R142751085 |
5% Capped Account |
0 |
| Property Deed Transaction History (Recorded in the County Clerk's Office) | ||||||||||
|---|---|---|---|---|---|---|---|---|---|---|
| Date | Type | Book | Page | Price | Grantor | Grantee | ||||
|
2/14/2022 |
|
Deeds |
$130,000 |
COPP NITAYA |
SILVER CREEK CAPITAL LLC |
|||||
|
11/13/2007 |
|
Deeds |
$0 |
RUSSELL MICHAEL E COPP NITAYA |
COPP NITAYA |
|||||
|
4/27/2000 |
|
Deeds |
$80,000 |
SANDERS MICHAEL L & GENTA G |
RUSSELL MICHAEL E |
|||||
|
4/27/2000 |
|
Deeds |
$0 |
RUSSELL MICHAEL E |
RUSSELL MICHAEL E COPP NITAYA |
|||||
|
7/2/1991 |
|
Historical |
$0 |
STREEPY MILDRED I |
SANDERS MICHAEL L & GENTA G |
|||||
| Last Mailed Notice of Value (N.O.V.) Information/History | ||||||||
|---|---|---|---|---|---|---|---|---|
| Year | Date | Market Value | Taxable Market Value | Gross Assessed | Exemption | Net Assessed | ||
|
2025 |
02/14/2025 |
196,500 |
196,500 |
21,615 |
0 |
21,615 |
||
|
2024 |
02/13/2024 |
195,500 |
195,300 |
21,483 |
0 |
21,483 |
||
|
2023 |
02/14/2023 |
186,000 |
186,000 |
20,460 |
0 |
20,460 |
||
|
2022 |
03/15/2022 |
166,000 |
141,606 |
15,575 |
0 |
15,575 |
||
|
2021 |
03/19/2021 |
140,500 |
134,863 |
14,834 |
0 |
14,834 |
||
| Property Building Permit History | ||||||
|---|---|---|---|---|---|---|
| Issued | Permit # | Provided by | Bldg # | Description | Est Construction Cost | Status |
|
1/4/1994 |
10236398 |
OKLAHOMA CITY |
1 |
Carport |
1,300 |
Inactive |
|
4/23/1993 |
10236397 |
OKLAHOMA CITY |
1 |
Add On |
2,950 |
Inactive |
| Click button on building number to access detailed information: | ||||||
|---|---|---|---|---|---|---|
| Bldg # | Vacant/Improved Land | Bldg Description | Year Built | SqFt | # Stories | |
|
1 |
Improved |
Ranch 1 Story |
1955 |
1,360 |
1 Stories |
|