|
|
|
| Larry Stein Oklahoma County Assessor (405) 713-1200 - Public Access System |
|
|
|
|
|
|
| Real Property Display - Screen Produced 4/1/2026 8:04:55 PM | ||||
|---|---|---|---|---|
| Account: R142751165 | Type: Residential | Location: |
3316 EASTMAN DR |
|
| Building Name/Occupant: |
|
OKLAHOMA CITY |
||
| Owner Name 1: | 3316 EASTMAN LLC |
Parcel PIN#: |
2848-14-275-1165 |
|
| Owner Name 2: | 1/4 section #: |
2848 |
||
| Owner Name 3: | Parent Acct: |
|
||
| Billing Address: | 2640 W WILSHIRE BLVD | Tax District: |
|
|
| City, State, Zip | OKLAHOMA CITY , OK 73116 | School System: |
Putnam City #1 |
|
|
Country: (If noted) |
Land Size: |
0.1649 Acres |
||
|
Land Value: 36,628 |
|
|||
|
Sect 12-T12N-R4W Qtr NW |
SMITHS HIGHLAND HILLS
Block
002
Lot
005
|
|||
| Full Legal Description: SMITHS HIGHLAND HILLS 002 005 |
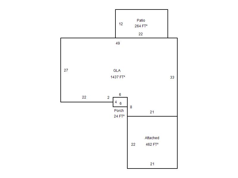
| Photo & Sketch (if available) | Comp Sales (ordered by relevancy) |
|
||||||||||||||||||
|
||||||||||||||||||||
| Value History (*The County Treasurer 405-713-1300 posts & collects actual tax amounts. Contact information HERE) | |||||||||||||
|---|---|---|---|---|---|---|---|---|---|---|---|---|---|
| Year | Market Value | Taxable Mkt Value | Gross Assessed | Exemption | Net Assessed | Millage | Est. Tax | Tax Savings | |||||
|
2026 |
190,000 |
158,999 |
17,489 |
0 |
17,489 |
123.17 |
$2,154 |
$420 |
|||||
|
2025 |
194,000 |
151,428 |
16,656 |
0 |
16,656 |
123.17 |
$2,052 |
$577 |
|||||
|
2024 |
192,500 |
144,218 |
15,863 |
0 |
15,863 |
122.30 |
$1,940 |
$650 |
|||||
|
2023 |
182,000 |
137,351 |
15,108 |
0 |
15,108 |
121.91 |
$1,842 |
$599 |
|||||
|
2022 |
163,500 |
130,811 |
14,388 |
0 |
14,388 |
123.41 |
$1,776 |
$444 |
|||||
| Property Account Status/Adjustments/Exemptions | ||
|---|---|---|
| Account # | Exemption Description | Amount |
|
R142751165 |
5% Capped Account |
0 |
| Property Deed Transaction History (Recorded in the County Clerk's Office) | ||||||||||
|---|---|---|---|---|---|---|---|---|---|---|
| Date | Type | Book | Page | Price | Grantor | Grantee | ||||
|
1/8/2018 |
|
Hmstd Off & |
$0 |
CUMMINGS SHELBY |
3316 EASTMAN LLC |
|||||
|
8/30/2017 |
|
Deeds |
$105,000 |
WRJK INVESTMENTS LLC |
CUMMINGS SHELBY |
|||||
|
5/21/2015 |
|
Hmstd Off & |
$0 |
TRIPLE CK LLC |
WRJK INVESTMENTS LLC |
|||||
|
5/28/2014 |
|
Hmstd Off & |
$0 |
GAMMON KENNETH L & JUDY A |
TRIPLE CK LLC |
|||||
|
9/15/1995 |
|
Historical |
$0 |
GAMMON KENNETH L & JUDY A |
GAMMON KENNETH L & JUDY A TRS |
|||||
| Last Mailed Notice of Value (N.O.V.) Information/History | ||||||||
|---|---|---|---|---|---|---|---|---|
| Year | Date | Market Value | Taxable Market Value | Gross Assessed | Exemption | Net Assessed | ||
|
2026 |
02/23/2026 |
190,000 |
158,999 |
17,489 |
0 |
17,489 |
||
|
2025 |
02/14/2025 |
194,000 |
151,428 |
16,656 |
0 |
16,656 |
||
|
2024 |
02/13/2024 |
192,500 |
144,218 |
15,863 |
0 |
15,863 |
||
|
2023 |
02/14/2023 |
182,000 |
137,351 |
15,108 |
0 |
15,108 |
||
|
2022 |
03/15/2022 |
163,500 |
130,811 |
14,388 |
0 |
14,388 |
||
| Property Building Permit History | |||||||||||
|---|---|---|---|---|---|---|---|---|---|---|---|
| Issued | Permit # | Provided by | Bldg # | Description | Est Construction Cost | Status | |||||
| No Building Permit records returned. | |||||||||||
| Click button on building number to access detailed information: | ||||||
|---|---|---|---|---|---|---|
| Bldg # | Vacant/Improved Land | Bldg Description | Year Built | SqFt | # Stories | |
|
1 |
Improved |
Ranch 1 Story |
1955 |
1,437 |
1 Stories |
|