|
|
|
| Larry Stein Oklahoma County Assessor (405) 713-1200 - Public Access System |
|
|
|
|
|
|
| Real Property Display - Screen Produced 4/1/2026 8:06:19 PM | ||||
|---|---|---|---|---|
| Account: R142751480 | Type: Residential | Location: |
3340 NW 62ND ST |
|
| Building Name/Occupant: |
|
OKLAHOMA CITY |
||
| Owner Name 1: | PORRAS RAINIER |
Parcel PIN#: |
2848-14-275-1480 |
|
| Owner Name 2: | 1/4 section #: |
2848 |
||
| Owner Name 3: | Parent Acct: |
|
||
| Billing Address: | 3340 NW 62ND ST | Tax District: |
|
|
| City, State, Zip | OKLAHOMA CITY, OK 73112-4102 | School System: |
Putnam City #1 |
|
|
Country: (If noted) |
Land Size: |
0.2576 Acres |
||
|
Land Value: 57,222 |
|
|||
|
Sect 12-T12N-R4W Qtr NW |
SMITHS HIGHLAND HILLS
Block
003
Lot
000
|
|||
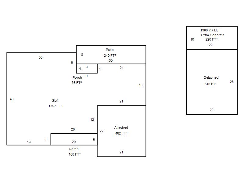
| Full Legal Description: SMITHS HIGHLAND HILLS 003 000 W55FT OF LOT 11 & E30FT LOT 12 |
| Photo & Sketch (if available) | Comp Sales (ordered by relevancy) |
|
||||||||||||||||||
|
||||||||||||||||||||
| Value History (*The County Treasurer 405-713-1300 posts & collects actual tax amounts. Contact information HERE) | |||||||||||||
|---|---|---|---|---|---|---|---|---|---|---|---|---|---|
| Year | Market Value | Taxable Mkt Value | Gross Assessed | Exemption | Net Assessed | Millage | Est. Tax | Tax Savings | |||||
|
2026 |
309,000 |
309,000 |
33,990 |
0 |
33,990 |
123.17 |
$4,187 |
$0 |
|||||
|
2025 |
322,500 |
322,500 |
35,475 |
0 |
35,475 |
123.17 |
$4,369 |
$0 |
|||||
|
2024 |
272,000 |
272,000 |
29,920 |
0 |
29,920 |
122.30 |
$3,659 |
$0 |
|||||
|
2023 |
254,500 |
186,662 |
20,532 |
1,000 |
19,532 |
121.91 |
$2,381 |
$1,032 |
|||||
|
2022 |
226,500 |
181,226 |
19,933 |
1,000 |
18,933 |
123.41 |
$2,337 |
$738 |
|||||
| Property Account Status/Adjustments/Exemptions | ||
|---|---|---|
| Account # | Exemption Description | Amount |
|
R142751480 |
5% Capped Account |
0 |
| Property Deed Transaction History (Recorded in the County Clerk's Office) | ||||||||||
|---|---|---|---|---|---|---|---|---|---|---|
| Date | Type | Book | Page | Price | Grantor | Grantee | ||||
|
1/2/2024 |
|
Deeds |
$342,500 |
MARCHING CENTURYMEN INVESTMENTS LLC |
PORRAS RAINIER |
|||||
|
3/20/2023 |
|
Deeds |
$210,000 |
BRAND ELLEN |
MARCHING CENTURYMEN INVESTMENTS LLC |
|||||
|
8/21/2015 |
|
Deeds |
$0 |
BRAND ELLEN H DRURY JAMES R |
BRAND ELLEN |
|||||
|
7/3/2012 |
|
Deeds |
$0 |
BRAND ELLEN H |
BRAND ELLEN H DRURY JAMES R |
|||||
|
1/23/2003 |
|
Deeds |
$0 |
BRAND JAY S & ELLEN H |
BRAND ELLEN H |
|||||
| Last Mailed Notice of Value (N.O.V.) Information/History | ||||||||
|---|---|---|---|---|---|---|---|---|
| Year | Date | Market Value | Taxable Market Value | Gross Assessed | Exemption | Net Assessed | ||
|
2025 |
02/14/2025 |
322,500 |
322,500 |
35,475 |
0 |
35,475 |
||
|
2024 |
02/13/2024 |
272,000 |
272,000 |
29,920 |
0 |
29,920 |
||
|
2023 |
02/14/2023 |
254,500 |
186,662 |
20,532 |
1,000 |
19,532 |
||
|
2022 |
03/15/2022 |
226,500 |
181,226 |
19,933 |
1,000 |
18,933 |
||
|
2021 |
03/19/2021 |
195,500 |
175,948 |
19,354 |
1,000 |
18,354 |
||
| Property Building Permit History | |||||||||||
|---|---|---|---|---|---|---|---|---|---|---|---|
| Issued | Permit # | Provided by | Bldg # | Description | Est Construction Cost | Status | |||||
| No Building Permit records returned. | |||||||||||
| Click button on building number to access detailed information: | ||||||
|---|---|---|---|---|---|---|
| Bldg # | Vacant/Improved Land | Bldg Description | Year Built | SqFt | # Stories | |
|
1 |
Improved |
Ranch 1 Story |
1958 |
1,757 |
1 Stories |
|