|
|
|
| Larry Stein Oklahoma County Assessor (405) 713-1200 - Public Access System |
|
|
|
|
|
|
| Real Property Display - Screen Produced 4/1/2026 8:06:20 PM | ||||
|---|---|---|---|---|
| Account: R142751775 | Type: Residential | Location: |
6200 SMITH BLVD |
|
| Building Name/Occupant: |
|
OKLAHOMA CITY |
||
| Owner Name 1: | MEAD MATTHEW M |
Parcel PIN#: |
2848-14-275-1775 |
|
| Owner Name 2: | 1/4 section #: |
2848 |
||
| Owner Name 3: | Parent Acct: |
|
||
| Billing Address: | 6200 SMITH BLVD | Tax District: |
|
|
| City, State, Zip | OKLAHOMA CITY, OK 73112-4149 | School System: |
Putnam City #1 |
|
|
Country: (If noted) |
Land Size: |
0.2705 Acres |
||
|
Land Value: 60,083 |
|
|||
|
Sect 12-T12N-R4W Qtr NW |
SMITHS HIGHLAND HILLS
Block
004
Lot
000
|
|||
| Full Legal Description: SMITHS HIGHLAND HILLS 004 000 PT OF LOTS 13 & 14 BEG AT A PT 41.45FT NWLY FROM SW/C LOT 13 SE96.45FT SE35.35FT NE12FT NELY ON A CURVE 58.50FT TO SE/C LOT 14 TH NWLY128.04FT SWLY 109.70FT TO BEG |
| Photo & Sketch (if available) | Comp Sales (ordered by relevancy) |
|
||||||||||||||||||
|
||||||||||||||||||||
| Value History (*The County Treasurer 405-713-1300 posts & collects actual tax amounts. Contact information HERE) | |||||||||||||
|---|---|---|---|---|---|---|---|---|---|---|---|---|---|
| Year | Market Value | Taxable Mkt Value | Gross Assessed | Exemption | Net Assessed | Millage | Est. Tax | Tax Savings | |||||
|
2026 |
344,000 |
301,216 |
33,133 |
0 |
33,133 |
123.17 |
$4,081 |
$580 |
|||||
|
2025 |
353,500 |
286,873 |
31,555 |
1,000 |
30,555 |
123.17 |
$3,764 |
$1,026 |
|||||
|
2024 |
358,000 |
278,518 |
30,636 |
1,000 |
29,636 |
122.30 |
$3,625 |
$1,192 |
|||||
|
2023 |
348,500 |
270,406 |
29,744 |
1,000 |
28,744 |
121.91 |
$3,504 |
$1,169 |
|||||
|
2022 |
312,500 |
262,531 |
28,877 |
1,000 |
27,877 |
123.41 |
$3,440 |
$802 |
|||||
| Property Account Status/Adjustments/Exemptions | ||
|---|---|---|
| Account # | Exemption Description | Amount |
|
R142751775 |
5% Capped Account |
0 |
| Property Deed Transaction History (Recorded in the County Clerk's Office) | ||||||||||
|---|---|---|---|---|---|---|---|---|---|---|
| Date | Type | Book | Page | Price | Grantor | Grantee | ||||
|
1/23/2026 |
|
Deeds |
$395,000 |
WEATHERLY STEPHEN C |
MEAD MATTHEW M |
|||||
|
11/9/2018 |
|
Deeds |
$238,500 |
LYLES & LYLES LLC |
WEATHERLY STEPHEN C |
|||||
|
3/23/2018 |
|
Deeds |
$175,000 |
PARKER GRANT |
LYLES & LYLES LLC |
|||||
|
7/11/2008 |
|
Deeds |
$185,000 |
MCELROY LINCOLN C & JENNY E |
PARKER GRANT |
|||||
|
12/17/2004 |
|
Deeds |
$155,000 |
FRIED BRYAN WALTERS TANNA |
MCELROY LINCOLN C & JENNY E |
|||||
| Last Mailed Notice of Value (N.O.V.) Information/History | ||||||||
|---|---|---|---|---|---|---|---|---|
| Year | Date | Market Value | Taxable Market Value | Gross Assessed | Exemption | Net Assessed | ||
|
2026 |
02/23/2026 |
344,000 |
301,216 |
33,133 |
0 |
33,133 |
||
|
2025 |
02/14/2025 |
353,500 |
286,873 |
31,555 |
1,000 |
30,555 |
||
|
2024 |
02/13/2024 |
358,000 |
278,518 |
30,636 |
1,000 |
29,636 |
||
|
2023 |
02/14/2023 |
348,500 |
270,406 |
29,744 |
1,000 |
28,744 |
||
|
2022 |
03/15/2022 |
312,500 |
262,531 |
28,877 |
1,000 |
27,877 |
||
| Property Building Permit History | ||||||
|---|---|---|---|---|---|---|
| Issued | Permit # | Provided by | Bldg # | Description | Est Construction Cost | Status |
|
4/14/2020 |
POOL-2020-00050 |
|
1 |
Swimming Pool |
77,856 |
Inactive |
| Click button on building number to access detailed information: | ||||||
|---|---|---|---|---|---|---|
| Bldg # | Vacant/Improved Land | Bldg Description | Year Built | SqFt | # Stories | |
|
1 |
Improved |
Ranch 1 Story |
1954 |
2,052 |
1 Stories |
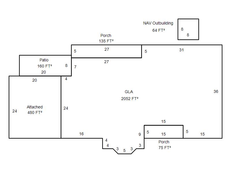
|