|
|
|
| Larry Stein Oklahoma County Assessor (405) 713-1200 - Public Access System |
|
|
|
|
|
|
| Real Property Display - Screen Produced 3/24/2026 8:09:07 AM | ||||
|---|---|---|---|---|
| Account: R073442600 | Type: Residential | Location: |
3113 NW 44TH ST |
|
| Building Name/Occupant: |
|
OKLAHOMA CITY |
||
| Owner Name 1: | WOODARD ALAN A & JUNE L |
Parcel PIN#: |
2849-07-344-2600 |
|
| Owner Name 2: | 1/4 section #: |
2849 |
||
| Owner Name 3: | Parent Acct: |
|
||
| Billing Address: | 3113 NW 44TH ST | Tax District: |
|
|
| City, State, Zip | OKLAHOMA CITY, OK 73112-6008 | School System: |
Oklahoma City #89 |
|
|
Country: (If noted) |
Land Size: |
0.2089 Acres |
||
|
Land Value: 34,580 |
|
|||
|
Sect 13-T12N-R4W Qtr NE |
TREADWELL ADDITION
Block
001
Lot
026
|
|||
| Full Legal Description: TREADWELL ADDITION 001 026 |
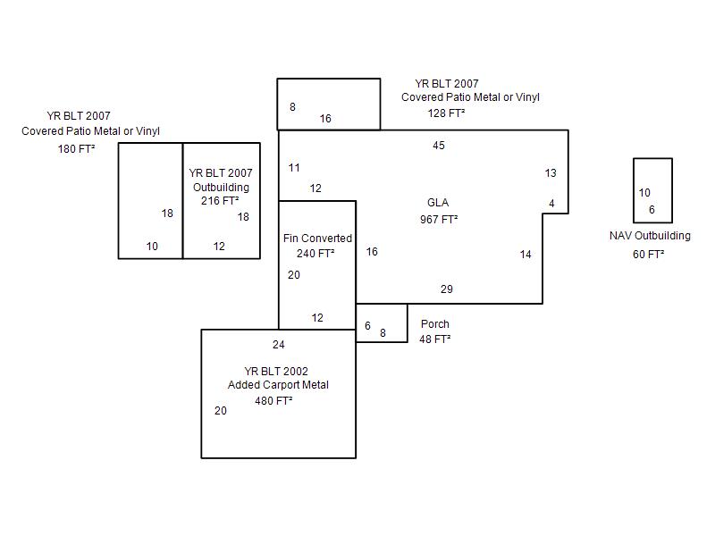
| Photo & Sketch (if available) | Comp Sales (ordered by relevancy) |
|
||||||||||||||||||
|
||||||||||||||||||||
| Value History (*The County Treasurer 405-713-1300 posts & collects actual tax amounts. Contact information HERE) | |||||||||||||
|---|---|---|---|---|---|---|---|---|---|---|---|---|---|
| Year | Market Value | Taxable Mkt Value | Gross Assessed | Exemption | Net Assessed | Millage | Est. Tax | Tax Savings | |||||
|
2025 |
145,500 |
91,204 |
10,032 |
1,000 |
9,032 |
122.90 |
$1,110 |
$857 |
|||||
|
2024 |
140,500 |
91,204 |
10,032 |
1,000 |
9,032 |
123.89 |
$1,119 |
$796 |
|||||
|
2023 |
131,000 |
88,548 |
9,739 |
1,000 |
8,739 |
122.82 |
$1,073 |
$696 |
|||||
|
2022 |
114,000 |
85,969 |
9,455 |
1,000 |
8,455 |
117.63 |
$995 |
$480 |
|||||
|
2021 |
95,500 |
83,466 |
9,180 |
1,000 |
8,180 |
117.70 |
$963 |
$274 |
|||||
| Property Account Status/Adjustments/Exemptions | ||
|---|---|---|
| Account # | Exemption Description | Amount |
|
R073442600 |
Freeze Senior Valuation |
0 |
|
R073442600 |
3% Cap Homestead |
0 |
|
R073442600 |
Homestead |
1,000 |
| Property Deed Transaction History (Recorded in the County Clerk's Office) | |||||||
|---|---|---|---|---|---|---|---|
| Date | Type | Book | Page | Price | Grantor | Grantee | |
|
6/22/1990 |
|
Historical |
$41,000 |
MCMANES RICHARD E & JULIE J |
WOODARD ALAN A & JUNE L |
||
|
11/1/1985 |
|
Historical |
$0 |
|
MCMANES RICHARD E & JULIE J |
||
| Last Mailed Notice of Value (N.O.V.) Information/History | ||||||||
|---|---|---|---|---|---|---|---|---|
| Year | Date | Market Value | Taxable Market Value | Gross Assessed | Exemption | Net Assessed | ||
|
2025 |
02/14/2025 |
145,500 |
91,204 |
10,032 |
1,000 |
9,032 |
||
|
2024 |
02/13/2024 |
140,500 |
91,204 |
10,032 |
1,000 |
9,032 |
||
|
2023 |
02/14/2023 |
131,000 |
88,548 |
9,739 |
1,000 |
8,739 |
||
|
2022 |
03/15/2022 |
114,000 |
85,969 |
9,455 |
1,000 |
8,455 |
||
|
2021 |
03/19/2021 |
95,500 |
83,466 |
9,181 |
1,000 |
8,181 |
||
| Property Building Permit History | ||||||
|---|---|---|---|---|---|---|
| Issued | Permit # | Provided by | Bldg # | Description | Est Construction Cost | Status |
|
5/3/2002 |
10195577 |
OKLAHOMA CITY |
1 |
Carport |
1,920 |
Inactive |
| Click button on building number to access detailed information: | ||||||
|---|---|---|---|---|---|---|
| Bldg # | Vacant/Improved Land | Bldg Description | Year Built | SqFt | # Stories | |
|
1 |
Improved |
Ranch 1 Story |
1947 |
967 |
1 Stories |
|