|
|
|
| Larry Stein Oklahoma County Assessor (405) 713-1200 - Public Access System |
|
|
|
|
|
|
| Real Property Display - Screen Produced 3/22/2026 6:07:55 PM | ||||
|---|---|---|---|---|
| Account: R073443200 | Type: Residential | Location: |
2920 NW 44TH ST |
|
| Building Name/Occupant: |
|
OKLAHOMA CITY |
||
| Owner Name 1: | STA PROPERTIES LLC |
Parcel PIN#: |
2849-07-344-3200 |
|
| Owner Name 2: | 1/4 section #: |
2849 |
||
| Owner Name 3: | Parent Acct: |
|
||
| Billing Address: | 9600 MISTY HOLLOW LN | Tax District: |
|
|
| City, State, Zip | OKLAHOMA CITY, OK 73151-9100 | School System: |
Oklahoma City #89 |
|
|
Country: (If noted) |
Land Size: |
0.1915 Acres |
||
|
Land Value: 31,692 |
|
|||
|
Sect 13-T12N-R4W Qtr NE |
TREADWELL ADDITION
Block
002
Lot
006
|
|||
| Full Legal Description: TREADWELL ADDITION 002 006 |
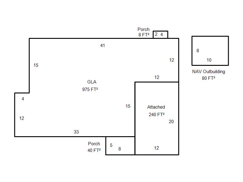
| Photo & Sketch (if available) | Comp Sales (ordered by relevancy) |
|
||||||||||||||||||
|
||||||||||||||||||||
| Value History (*The County Treasurer 405-713-1300 posts & collects actual tax amounts. Contact information HERE) | |||||||||||||
|---|---|---|---|---|---|---|---|---|---|---|---|---|---|
| Year | Market Value | Taxable Mkt Value | Gross Assessed | Exemption | Net Assessed | Millage | Est. Tax | Tax Savings | |||||
|
2025 |
174,500 |
144,057 |
15,845 |
0 |
15,845 |
122.90 |
$1,948 |
$412 |
|||||
|
2024 |
172,000 |
137,198 |
15,091 |
0 |
15,091 |
123.89 |
$1,870 |
$474 |
|||||
|
2023 |
163,500 |
130,665 |
14,372 |
0 |
14,372 |
122.82 |
$1,765 |
$444 |
|||||
|
2022 |
143,500 |
124,443 |
13,687 |
0 |
13,687 |
117.63 |
$1,610 |
$247 |
|||||
|
2021 |
122,500 |
118,518 |
13,036 |
0 |
13,036 |
117.70 |
$1,534 |
$52 |
|||||
| Property Account Status/Adjustments/Exemptions | ||
|---|---|---|
| Account # | Exemption Description | Amount |
|
R073443200 |
5% Capped Account |
0 |
| Property Deed Transaction History (Recorded in the County Clerk's Office) | ||||||||||
|---|---|---|---|---|---|---|---|---|---|---|
| Date | Type | Book | Page | Price | Grantor | Grantee | ||||
|
8/28/2015 |
|
Deeds |
$62,500 |
U S BANK NA TRS |
STA PROPERTIES LLC |
|||||
|
6/17/2015 |
|
Hmstd Off & |
$0 |
EMERSON AMBER |
U S BANK NA TRS |
|||||
|
4/22/2005 |
|
Deeds |
$76,000 |
MULLINS SALLY ANN |
EMERSON AMBER |
|||||
|
9/16/2004 |
|
Deeds |
$69,500 |
POINDEXTER DAVID A |
MULLINS SALLY ANN |
|||||
|
8/23/2004 |
|
Other |
$0 |
B & P INVESTMENT C/O DAVID POINDEXTER |
POINDEXTER DAVID A |
|||||
| Last Mailed Notice of Value (N.O.V.) Information/History | ||||||||
|---|---|---|---|---|---|---|---|---|
| Year | Date | Market Value | Taxable Market Value | Gross Assessed | Exemption | Net Assessed | ||
|
2026 |
02/23/2026 |
171,000 |
151,259 |
16,638 |
0 |
16,638 |
||
|
2025 |
02/14/2025 |
174,500 |
144,057 |
15,845 |
0 |
15,845 |
||
|
2024 |
02/13/2024 |
172,000 |
137,198 |
15,091 |
0 |
15,091 |
||
|
2023 |
02/14/2023 |
163,500 |
130,665 |
14,372 |
0 |
14,372 |
||
|
2022 |
03/15/2022 |
143,500 |
124,443 |
13,687 |
0 |
13,687 |
||
| Property Building Permit History | ||||||
|---|---|---|---|---|---|---|
| Issued | Permit # | Provided by | Bldg # | Description | Est Construction Cost | Status |
|
10/4/2001 |
10195578 |
OKLAHOMA CITY |
1 |
Other |
2,377 |
Inactive |
| Click button on building number to access detailed information: | ||||||
|---|---|---|---|---|---|---|
| Bldg # | Vacant/Improved Land | Bldg Description | Year Built | SqFt | # Stories | |
|
1 |
Improved |
Ranch 1 Story |
1947 |
975 |
1 Stories |
|