|
|
|
| Larry Stein Oklahoma County Assessor (405) 713-1200 - Public Access System |
|
|
|
|
|
|
| Real Property Display - Screen Produced 3/24/2026 8:02:57 AM | ||||
|---|---|---|---|---|
| Account: R072340750 | Type: Commercial | Location: |
3100 NW 39TH ST |
|
| Building Name/Occupant: |
RANAV LAB INC/ JOHN P PERRY, MD |
OKLAHOMA CITY |
||
| Owner Name 1: | PERRY JOHN P TRS |
Parcel PIN#: |
2850-07-234-0750 |
|
| Owner Name 2: | PERRY ELAINE TRS | 1/4 section #: |
2850 |
|
| Owner Name 3: | PERRY FAMILY 2021 REV TRUST | Parent Acct: |
|
|
| Billing Address: | 3504 NW 45TH ST | Tax District: |
|
|
| City, State, Zip | OKLAHOMA CITY, OK 73112 | School System: |
Oklahoma City #89 |
|
|
Country: (If noted) |
Land Size: |
43,382.0000 Square Feet |
||
|
Land Value: 202,160 |
|
|||
|
Sect 13-T12N-R4W Qtr SE |
BROOKLYN ADDITION
Block
040
Lot
000
|
|||
| Full Legal Description: BROOKLYN ADDITION 040 000 LOTS 1 THRU 5 |
| No comparable sales report available. | ||||||||||||||||||||||
|
||||||||||||||||||||||
| Value History (*The County Treasurer 405-713-1300 posts & collects actual tax amounts. Contact information HERE) | |||||||||||||
|---|---|---|---|---|---|---|---|---|---|---|---|---|---|
| Year | Market Value | Taxable Mkt Value | Gross Assessed | Exemption | Net Assessed | Millage | Est. Tax | Tax Savings | |||||
|
2025 |
714,936 |
714,936 |
78,642 |
0 |
78,642 |
122.90 |
$9,665 |
$0 |
|||||
|
2024 |
736,582 |
736,582 |
81,024 |
0 |
81,024 |
123.89 |
$10,038 |
$0 |
|||||
|
2023 |
736,582 |
736,582 |
81,024 |
0 |
81,024 |
122.82 |
$9,951 |
$0 |
|||||
|
2022 |
736,582 |
736,582 |
81,024 |
0 |
81,024 |
117.63 |
$9,531 |
$0 |
|||||
|
2021 |
736,582 |
736,582 |
81,024 |
0 |
81,024 |
117.70 |
$9,537 |
$0 |
|||||
| Property Account Status/Adjustments/Exemptions | ||
|---|---|---|
| Account # | Exemption Description | Amount |
|
R072340750 |
5% Capped Account |
0 |
| Property Deed Transaction History (Recorded in the County Clerk's Office) | |||||||
|---|---|---|---|---|---|---|---|
| Date | Type | Book | Page | Price | Grantor | Grantee | |
|
8/30/2021 |
|
Deeds |
$0 |
PERRY JOHN PHILIP |
PERRY JOHN P TRS |
||
|
6/1/1984 |
|
Historical |
$0 |
|
PERRY JOHN PHILIP |
||
| Last Mailed Notice of Value (N.O.V.) Information/History | ||||||||
|---|---|---|---|---|---|---|---|---|
| Year | Date | Market Value | Taxable Market Value | Gross Assessed | Exemption | Net Assessed | ||
|
2026 |
03/23/2026 |
893,670 |
750,682 |
82,574 |
0 |
82,574 |
||
|
2016 |
03/14/2016 |
764,500 |
764,500 |
84,094 |
0 |
84,094 |
||
|
2015 |
03/26/2015 |
764,500 |
736,705 |
81,037 |
0 |
81,037 |
||
|
2014 |
03/25/2014 |
764,500 |
701,625 |
77,178 |
0 |
77,178 |
||
|
2013 |
03/29/2013 |
764,500 |
668,215 |
73,503 |
0 |
73,503 |
||
| Property Building Permit History | |||||||||||
|---|---|---|---|---|---|---|---|---|---|---|---|
| Issued | Permit # | Provided by | Bldg # | Description | Est Construction Cost | Status | |||||
| No Building Permit records returned. | |||||||||||
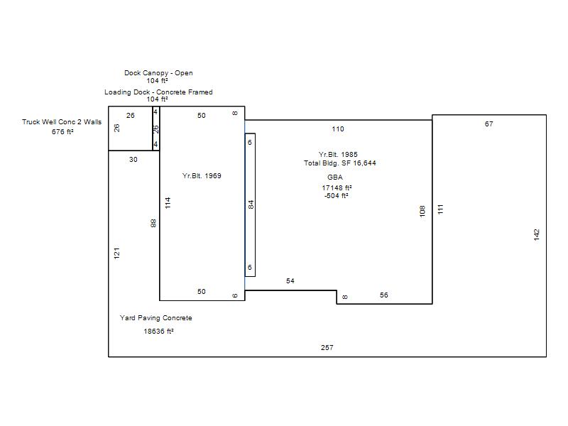
| Click button on building number to access detailed information: | ||||||
|---|---|---|---|---|---|---|
| Bldg # | Vacant/Improved Land | Bldg Description | Year Built | SqFt | # Stories | |
|
1 |
Improved |
Office Style Box C or D |
1969 |
16,644 |
1 Stories |
|