|
|
|
| Larry Stein Oklahoma County Assessor (405) 713-1200 - Public Access System |
|
|
|
|
|
|
| Real Property Display - Screen Produced 3/22/2026 6:15:15 PM | ||||
|---|---|---|---|---|
| Account: R073472725 | Type: Residential | Location: |
3201 NW 40TH ST |
|
| Building Name/Occupant: |
|
OKLAHOMA CITY |
||
| Owner Name 1: | TCB HOUSES 100 LLC |
Parcel PIN#: |
2850-07-347-2725 |
|
| Owner Name 2: | 1/4 section #: |
2850 |
||
| Owner Name 3: | Parent Acct: |
|
||
| Billing Address: | 5317 GATEWAY BRIDGE CT | Tax District: |
|
|
| City, State, Zip | EDMOND , OK 73034 | School System: |
Oklahoma City #89 |
|
|
Country: (If noted) |
Land Size: |
0.1409 Acres |
||
|
Land Value: 23,930 |
|
|||
|
Sect 13-T12N-R4W Qtr SE |
TREADWELL THIRD ADD
Block
003
Lot
038
|
|||
| Full Legal Description: TREADWELL THIRD ADD 003 038 |
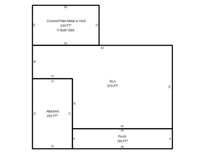
| Photo & Sketch (if available) | Comp Sales (ordered by relevancy) |
|
||||||||||||||||||
|
||||||||||||||||||||
| Value History (*The County Treasurer 405-713-1300 posts & collects actual tax amounts. Contact information HERE) | |||||||||||||
|---|---|---|---|---|---|---|---|---|---|---|---|---|---|
| Year | Market Value | Taxable Mkt Value | Gross Assessed | Exemption | Net Assessed | Millage | Est. Tax | Tax Savings | |||||
|
2025 |
149,500 |
114,225 |
12,564 |
0 |
12,564 |
122.90 |
$1,544 |
$477 |
|||||
|
2024 |
146,000 |
108,786 |
11,965 |
0 |
11,965 |
123.89 |
$1,483 |
$507 |
|||||
|
2023 |
139,000 |
103,606 |
11,396 |
0 |
11,396 |
122.82 |
$1,400 |
$478 |
|||||
|
2022 |
122,500 |
98,673 |
10,853 |
0 |
10,853 |
117.63 |
$1,277 |
$308 |
|||||
|
2021 |
99,500 |
93,975 |
10,337 |
0 |
10,337 |
117.70 |
$1,217 |
$72 |
|||||
| Property Account Status/Adjustments/Exemptions | ||
|---|---|---|
| Account # | Exemption Description | Amount |
|
R073472725 |
5% Capped Account |
0 |
| Property Deed Transaction History (Recorded in the County Clerk's Office) | |||||||
|---|---|---|---|---|---|---|---|
| Date | Type | Book | Page | Price | Grantor | Grantee | |
|
10/26/2018 |
|
Deeds |
$86,000 |
DUSTY HOMES LLC |
TCB HOUSES 100 LLC |
||
|
4/19/2018 |
|
Deeds |
$79,000 |
THUNDER HOMES LLC |
DUSTY HOMES LLC |
||
|
1/20/2014 |
|
Deeds |
$55,000 |
KETCHER MARTHA E |
THUNDER HOMES LLC |
||
|
5/1/1980 |
|
Historical |
$0 |
|
KETCHER MARTHA E |
||
| Last Mailed Notice of Value (N.O.V.) Information/History | ||||||||
|---|---|---|---|---|---|---|---|---|
| Year | Date | Market Value | Taxable Market Value | Gross Assessed | Exemption | Net Assessed | ||
|
2026 |
02/23/2026 |
146,000 |
119,936 |
13,192 |
0 |
13,192 |
||
|
2025 |
02/14/2025 |
149,500 |
114,225 |
12,564 |
0 |
12,564 |
||
|
2024 |
02/13/2024 |
146,000 |
108,786 |
11,965 |
0 |
11,965 |
||
|
2023 |
02/14/2023 |
139,000 |
103,606 |
11,396 |
0 |
11,396 |
||
|
2022 |
03/15/2022 |
122,500 |
98,673 |
10,853 |
0 |
10,853 |
||
| Property Building Permit History | |||||||||||
|---|---|---|---|---|---|---|---|---|---|---|---|
| Issued | Permit # | Provided by | Bldg # | Description | Est Construction Cost | Status | |||||
| No Building Permit records returned. | |||||||||||
| Click button on building number to access detailed information: | ||||||
|---|---|---|---|---|---|---|
| Bldg # | Vacant/Improved Land | Bldg Description | Year Built | SqFt | # Stories | |
|
1 |
Improved |
Ranch 1 Story |
1950 |
870 |
1 Stories |
|