|
|
|
| Larry Stein Oklahoma County Assessor (405) 713-1200 - Public Access System |
|
|
|
|
|
|
| Real Property Display - Screen Produced 4/2/2026 6:28:15 AM | ||||
|---|---|---|---|---|
| Account: R150811665 | Type: Residential | Location: |
6125 SE 9TH ST |
|
| Building Name/Occupant: |
|
MIDWEST CITY |
||
| Owner Name 1: | BILBAO PAUL P & ROBIN L |
Parcel PIN#: |
1415-15-081-1665 |
|
| Owner Name 2: | 1/4 section #: |
1415 |
||
| Owner Name 3: | Parent Acct: |
|
||
| Billing Address: | 6125 SE 9TH ST | Tax District: |
|
|
| City, State, Zip | MIDWEST CITY, OK 73110-2439 | School System: |
Mid-Del #52 |
|
|
Country: (If noted) |
Land Size: |
0.1742 Acres |
||
|
Land Value: 23,909 |
|
|||
|
Sect 4-T11N-R2W Qtr SW |
CROSBY RICHLAND HILL
Block
005
Lot
020
|
|||
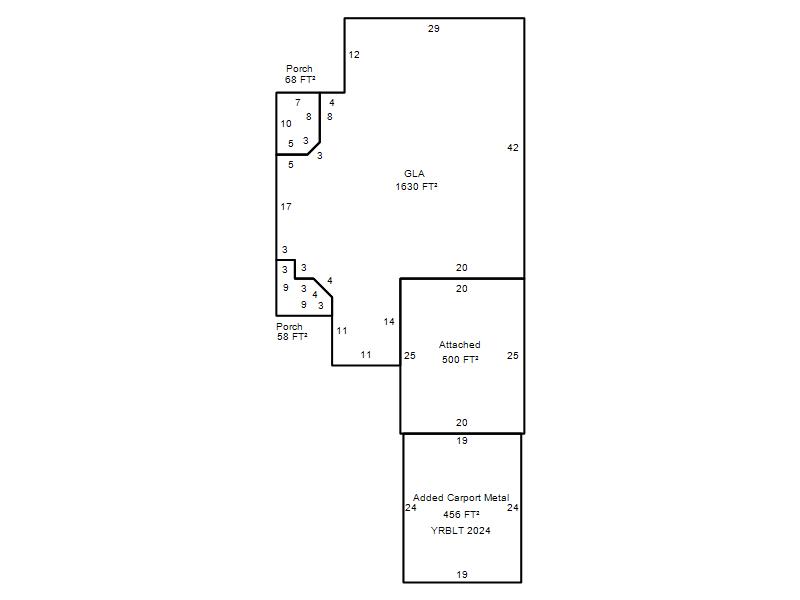
| Full Legal Description: CROSBY RICHLAND HILL 005 020 E55FT OF W63FT |
| Photo & Sketch (if available) | Comp Sales (ordered by relevancy) |
|
||||||||||||||||||
|
||||||||||||||||||||
| Value History (*The County Treasurer 405-713-1300 posts & collects actual tax amounts. Contact information HERE) | |||||||||||||
|---|---|---|---|---|---|---|---|---|---|---|---|---|---|
| Year | Market Value | Taxable Mkt Value | Gross Assessed | Exemption | Net Assessed | Millage | Est. Tax | Tax Savings | |||||
|
2026 |
247,000 |
180,831 |
19,891 |
1,000 |
18,891 |
119.58 |
$2,259 |
$990 |
|||||
|
2025 |
252,000 |
175,565 |
19,311 |
1,000 |
18,311 |
119.58 |
$2,190 |
$1,125 |
|||||
|
2024 |
236,500 |
166,568 |
18,321 |
1,000 |
17,321 |
122.51 |
$2,122 |
$1,065 |
|||||
|
2023 |
210,000 |
161,717 |
17,788 |
1,000 |
16,788 |
117.71 |
$1,976 |
$743 |
|||||
|
2022 |
189,000 |
157,007 |
17,270 |
1,000 |
16,270 |
116.64 |
$1,898 |
$527 |
|||||
| Property Account Status/Adjustments/Exemptions | ||
|---|---|---|
| Account # | Exemption Description | Amount |
|
R150811665 |
3% Cap Homestead |
0 |
|
R150811665 |
Homestead |
1,000 |
| Property Deed Transaction History (Recorded in the County Clerk's Office) | ||||||||||
|---|---|---|---|---|---|---|---|---|---|---|
| Date | Type | Book | Page | Price | Grantor | Grantee | ||||
|
4/9/2015 |
|
Deeds |
$0 |
BILBAO PAUL |
BILBAO PAUL P & ROBIN L |
|||||
|
7/30/2008 |
|
Deeds |
$0 |
BILBAO PAUL & LANETTE |
BILBAO PAUL |
|||||
|
7/30/2008 |
|
Deeds |
$0 |
BILBAO LENETTE |
BILBAO PAUL |
|||||
|
5/25/2007 |
|
Deeds |
$124,000 |
BANK OF NEW YORK AS TRS |
BILBAO PAUL & LANETTE |
|||||
|
1/19/2007 |
|
Hmstd Off & |
$0 |
TURNER VICTORIA E |
BANK OF NEW YORK AS TRS |
|||||
| Last Mailed Notice of Value (N.O.V.) Information/History | ||||||||
|---|---|---|---|---|---|---|---|---|
| Year | Date | Market Value | Taxable Market Value | Gross Assessed | Exemption | Net Assessed | ||
|
2026 |
02/06/2026 |
247,000 |
180,831 |
19,891 |
1,000 |
18,891 |
||
|
2025 |
03/28/2025 |
252,000 |
175,565 |
19,311 |
1,000 |
18,311 |
||
|
2024 |
01/22/2024 |
236,500 |
166,568 |
18,321 |
1,000 |
17,321 |
||
|
2023 |
01/23/2023 |
210,000 |
161,717 |
17,788 |
1,000 |
16,788 |
||
|
2022 |
02/22/2022 |
189,000 |
157,007 |
17,270 |
1,000 |
16,270 |
||
| Property Building Permit History | ||||||
|---|---|---|---|---|---|---|
| Issued | Permit # | Provided by | Bldg # | Description | Est Construction Cost | Status |
|
11/20/2024 |
B-24-2602 |
|
1 |
Carport |
5,200 |
Inactive |
|
3/2/2004 |
10291541 |
MIDWEST CITY |
1 |
Main Dwellin |
0 |
Inactive |
|
8/21/2000 |
10247030 |
MIDWEST CITY |
1 |
Demolish |
1,200 |
Inactive |
| Click button on building number to access detailed information: | ||||||
|---|---|---|---|---|---|---|
| Bldg # | Vacant/Improved Land | Bldg Description | Year Built | SqFt | # Stories | |
|
1 |
Improved |
Ranch 1 Story |
2004 |
1,630 |
1 Stories |
|