|
|
|
| Larry Stein Oklahoma County Assessor (405) 713-1200 - Public Access System |
|
|
|
|
|
|
| Real Property Display - Screen Produced 4/2/2026 6:28:16 AM | ||||
|---|---|---|---|---|
| Account: R150811795 | Type: Residential | Location: |
6000 SE 9TH ST |
|
| Building Name/Occupant: |
|
MIDWEST CITY |
||
| Owner Name 1: | RHYMER DENVER |
Parcel PIN#: |
1415-15-081-1795 |
|
| Owner Name 2: | 1/4 section #: |
1415 |
||
| Owner Name 3: | Parent Acct: |
|
||
| Billing Address: | 6000 SE 9TH ST | Tax District: |
|
|
| City, State, Zip | MIDWEST CITY, OK 73110-2438 | School System: |
Mid-Del #52 |
|
|
Country: (If noted) |
Land Size: |
0.2153 Acres |
||
|
Land Value: 29,547 |
|
|||
|
Sect 4-T11N-R2W Qtr SW |
CROSBY RICHLAND HILL
Block
006
Lot
000
|
|||
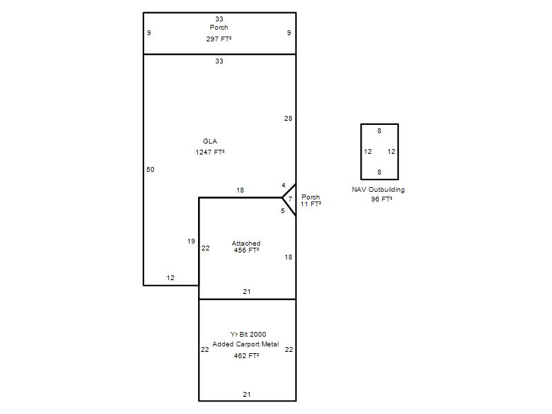
| Full Legal Description: CROSBY RICHLAND HILL 006 000 W70FT OF LOT 13 |
| Photo & Sketch (if available) | Comp Sales (ordered by relevancy) |
|
||||||||||||||||||
|
||||||||||||||||||||
| Value History (*The County Treasurer 405-713-1300 posts & collects actual tax amounts. Contact information HERE) | |||||||||||||
|---|---|---|---|---|---|---|---|---|---|---|---|---|---|
| Year | Market Value | Taxable Mkt Value | Gross Assessed | Exemption | Net Assessed | Millage | Est. Tax | Tax Savings | |||||
|
2026 |
216,000 |
216,000 |
23,760 |
1,000 |
22,760 |
119.58 |
$2,722 |
$120 |
|||||
|
2025 |
221,000 |
218,875 |
24,076 |
1,000 |
23,076 |
119.58 |
$2,759 |
$148 |
|||||
|
2024 |
212,500 |
212,500 |
23,375 |
1,000 |
22,375 |
122.51 |
$2,741 |
$123 |
|||||
|
2023 |
187,500 |
63,361 |
6,969 |
6,969 |
0 |
117.71 |
$0 |
$2,428 |
|||||
|
2022 |
169,000 |
63,361 |
6,969 |
6,969 |
0 |
116.64 |
$0 |
$2,168 |
|||||
| Property Account Status/Adjustments/Exemptions | ||
|---|---|---|
| Account # | Exemption Description | Amount |
|
R150811795 |
3% Cap Homestead |
0 |
|
R150811795 |
Homestead |
1,000 |
| Property Deed Transaction History (Recorded in the County Clerk's Office) | ||||||||||
|---|---|---|---|---|---|---|---|---|---|---|
| Date | Type | Book | Page | Price | Grantor | Grantee | ||||
|
2/19/2024 |
|
Deeds |
$0 |
WHITAKER CARL WAYNE ETAL |
WHITAKER CARL WAYNE ETAL |
|||||
|
2/19/2024 |
|
Deeds |
$0 |
WHITAKER CARL WAYNE ETAL |
RHYMER DENVER |
|||||
|
10/16/2023 |
|
Hmstd Off & |
$0 |
WHITAKER G C JR & DELMA E LIFE EST ETAL |
WHITAKER CARL WAYNE |
|||||
|
10/16/2023 |
|
Deeds |
$140,000 |
WHITAKER CARL WAYNE |
RHYMER DENVER |
|||||
|
12/31/2010 |
|
Deeds |
$0 |
WHITAKER G C JR & DELMA E |
WHITAKER G C JR & DELMA E LIFE EST ETAL |
|||||
| Last Mailed Notice of Value (N.O.V.) Information/History | ||||||||
|---|---|---|---|---|---|---|---|---|
| Year | Date | Market Value | Taxable Market Value | Gross Assessed | Exemption | Net Assessed | ||
|
2025 |
01/31/2025 |
221,000 |
218,875 |
24,076 |
1,000 |
23,076 |
||
|
2024 |
01/22/2024 |
212,500 |
212,500 |
23,375 |
0 |
23,375 |
||
|
2024 |
04/05/2024 |
212,500 |
212,500 |
23,375 |
1,000 |
22,375 |
||
|
2023 |
01/23/2023 |
187,500 |
63,361 |
6,969 |
6,969 |
0 |
||
|
2022 |
02/22/2022 |
169,000 |
63,361 |
6,969 |
6,969 |
0 |
||
| Property Building Permit History | ||||||
|---|---|---|---|---|---|---|
| Issued | Permit # | Provided by | Bldg # | Description | Est Construction Cost | Status |
|
7/31/2001 |
10247054 |
MIDWEST CITY |
1 |
Carport |
1,550 |
Inactive |
|
7/27/1999 |
10247053 |
MIDWEST CITY |
1 |
Main Dwellin |
69,000 |
Inactive |
|
6/18/1997 |
10247052 |
MIDWEST CITY |
1 |
Carport |
1,800 |
Inactive |
| Click button on building number to access detailed information: | ||||||
|---|---|---|---|---|---|---|
| Bldg # | Vacant/Improved Land | Bldg Description | Year Built | SqFt | # Stories | |
|
1 |
Improved |
Ranch 1 Story |
2000 |
1,247 |
1 Stories |
|