|
|
|
| Larry Stein Oklahoma County Assessor (405) 713-1200 - Public Access System |
|
|
|
|
|
|
| Real Property Display - Screen Produced 4/3/2026 10:23:58 PM | ||||
|---|---|---|---|---|
| Account: R145391545 | Type: Residential | Location: |
3708 NW 48TH CIR |
|
| Building Name/Occupant: |
|
OKLAHOMA CITY |
||
| Owner Name 1: | E & L HOLDINGS LLC |
Parcel PIN#: |
2853-14-539-1545 |
|
| Owner Name 2: | 1/4 section #: |
2853 |
||
| Owner Name 3: | Parent Acct: |
|
||
| Billing Address: | 6505 AVONDALE DR | Tax District: |
|
|
| City, State, Zip | NICHOLS HILLS, OK 73116 | School System: |
Putnam City #1 |
|
|
Country: (If noted) |
UNITED STATES |
Land Size: |
0.2238 Acres |
|
|
Land Value: 39,000 |
|
|||
|
Sect 14-T12N-R4W Qtr NE |
PATE 3RD ADDITION
Block
005
Lot
002
|
|||
| Full Legal Description: PATE 3RD ADDITION 005 002 |
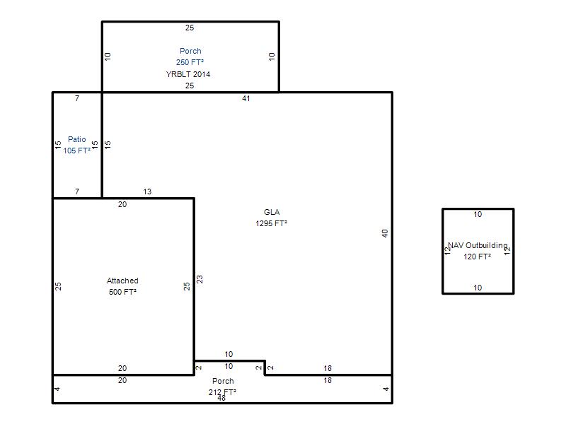
| Photo & Sketch (if available) | Comp Sales (ordered by relevancy) |
|
||||||||||||||||||
|
||||||||||||||||||||
| Value History (*The County Treasurer 405-713-1300 posts & collects actual tax amounts. Contact information HERE) | |||||||||||||
|---|---|---|---|---|---|---|---|---|---|---|---|---|---|
| Year | Market Value | Taxable Mkt Value | Gross Assessed | Exemption | Net Assessed | Millage | Est. Tax | Tax Savings | |||||
|
2026 |
172,500 |
158,128 |
17,393 |
0 |
17,393 |
123.17 |
$2,142 |
$195 |
|||||
|
2025 |
182,500 |
150,599 |
16,565 |
0 |
16,565 |
123.17 |
$2,040 |
$432 |
|||||
|
2024 |
181,000 |
143,428 |
15,776 |
0 |
15,776 |
122.30 |
$1,930 |
$505 |
|||||
|
2023 |
169,000 |
136,599 |
15,025 |
0 |
15,025 |
121.91 |
$1,832 |
$435 |
|||||
|
2022 |
148,500 |
130,095 |
14,310 |
0 |
14,310 |
123.41 |
$1,766 |
$250 |
|||||
| Property Account Status/Adjustments/Exemptions | ||||||
|---|---|---|---|---|---|---|
| Account # | Exemption Description | Amount | ||||
| No adjustment/exemption records returned. | ||||||
| Property Deed Transaction History (Recorded in the County Clerk's Office) | ||||||||||
|---|---|---|---|---|---|---|---|---|---|---|
| Date | Type | Book | Page | Price | Grantor | Grantee | ||||
|
10/26/2021 |
|
Hmstd Off & |
$0 |
HAMILTON LYNNE M |
E & L HOLDINGS LLC |
|||||
|
8/26/2020 |
|
Hmstd Off & |
$0 |
BIG BLUE SKY HOMES LLC |
HAMILTON LYNNE M |
|||||
|
1/10/2020 |
|
Hmstd Off & |
$0 |
HAMILTON LYNNE M |
BIG BLUE SKY HOMES LLC |
|||||
|
12/12/2019 |
|
Deeds |
$115,000 |
HARRINGTON STACY L |
HAMILTON LYNNE M |
|||||
|
9/8/2006 |
|
Deeds |
$97,000 |
ANDERSON AMY |
HARRINGTON STACY L |
|||||
| Last Mailed Notice of Value (N.O.V.) Information/History | ||||||||
|---|---|---|---|---|---|---|---|---|
| Year | Date | Market Value | Taxable Market Value | Gross Assessed | Exemption | Net Assessed | ||
|
2026 |
02/23/2026 |
172,500 |
158,128 |
17,393 |
0 |
17,393 |
||
|
2025 |
02/14/2025 |
182,500 |
150,599 |
16,565 |
0 |
16,565 |
||
|
2024 |
02/13/2024 |
181,000 |
143,428 |
15,776 |
0 |
15,776 |
||
|
2023 |
02/14/2023 |
169,000 |
136,599 |
15,025 |
0 |
15,025 |
||
|
2022 |
03/15/2022 |
148,500 |
130,095 |
14,310 |
0 |
14,310 |
||
| Property Building Permit History | |||||||||||
|---|---|---|---|---|---|---|---|---|---|---|---|
| Issued | Permit # | Provided by | Bldg # | Description | Est Construction Cost | Status | |||||
| No Building Permit records returned. | |||||||||||
| Click button on building number to access detailed information: | ||||||
|---|---|---|---|---|---|---|
| Bldg # | Vacant/Improved Land | Bldg Description | Year Built | SqFt | # Stories | |
|
1 |
Improved |
Ranch 1 Story |
1959 |
1,295 |
1 Stories |
|