|
|
|
| Larry Stein Oklahoma County Assessor (405) 713-1200 - Public Access System |
|
|
|
|
|
|
| Real Property Display - Screen Produced 4/1/2026 1:49:07 AM | ||||
|---|---|---|---|---|
| Account: R145571470 | Type: Commercial | Location: |
4316 NW 39TH ST |
|
| Building Name/Occupant: |
NEXT RIDE |
OKLAHOMA CITY |
||
| Owner Name 1: | PERSEPOLIS LLC |
Parcel PIN#: |
2855-14-557-1470 |
|
| Owner Name 2: | 1/4 section #: |
2855 |
||
| Owner Name 3: | Parent Acct: |
|
||
| Billing Address: | 14800 AUREA LN | Tax District: |
|
|
| City, State, Zip | OKLAHOMA CITY, OK 73142 | School System: |
Putnam City #1 |
|
|
Country: (If noted) |
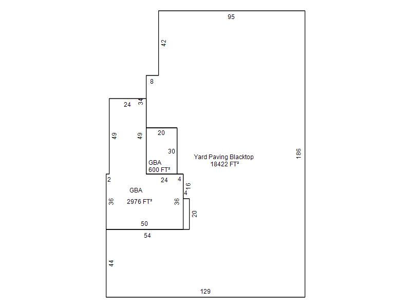
Land Size: |
41,250.0000 Square Feet |
||
|
Land Value: 371,250 |
|
|||
|
Sect 14-T12N-R4W Qtr SW |
FAIRVIEW HEIGHTS ADD
Block
002
Lot
000
|
|||
| Full Legal Description: FAIRVIEW HEIGHTS ADD 002 000 LOTS 11 THRU 16 & N125FT OF LOTS 29 THRU 34 |
| No comparable sales report available. | ||||||||||||||||||||||
|
||||||||||||||||||||||
| Value History (*The County Treasurer 405-713-1300 posts & collects actual tax amounts. Contact information HERE) | |||||||||||||
|---|---|---|---|---|---|---|---|---|---|---|---|---|---|
| Year | Market Value | Taxable Mkt Value | Gross Assessed | Exemption | Net Assessed | Millage | Est. Tax | Tax Savings | |||||
|
2026 |
535,680 |
535,680 |
58,924 |
0 |
58,924 |
123.17 |
$7,258 |
$0 |
|||||
|
2025 |
535,680 |
535,680 |
58,924 |
0 |
58,924 |
123.17 |
$7,258 |
$0 |
|||||
|
2024 |
535,680 |
535,680 |
58,924 |
0 |
58,924 |
122.30 |
$7,207 |
$0 |
|||||
|
2023 |
535,680 |
535,680 |
58,924 |
0 |
58,924 |
121.91 |
$7,184 |
$0 |
|||||
|
2022 |
368,523 |
348,103 |
38,290 |
0 |
38,290 |
123.41 |
$4,726 |
$277 |
|||||
| Property Account Status/Adjustments/Exemptions | ||
|---|---|---|
| Account # | Exemption Description | Amount |
|
R145571470 |
5% Capped Account |
0 |
| Property Deed Transaction History (Recorded in the County Clerk's Office) | ||||||||||
|---|---|---|---|---|---|---|---|---|---|---|
| Date | Type | Book | Page | Price | Grantor | Grantee | ||||
|
7/27/2022 |
|
Mult Parcel |
$2,000,000 |
GOLESORKHI BEHNAM |
PERSEPOLIS LLC |
|||||
|
7/24/2012 |
|
Deeds |
$0 |
GOLESORKHI BEHNAM MAZROEI MEHRI SEBDAN |
GOLESORKHI BEHNAM |
|||||
|
6/14/2007 |
|
Deeds |
$425,000 |
NADERPOUR ABBAS & NAHID SEIF |
GOLESORKHI BEHNAM MAZROEI MEHRI SEBDAN |
|||||
|
1/7/2000 |
|
Deeds |
$75,000 |
FEARNOW WILLIAM R & BEVERLY J TRS |
NADERPOUR ABBAS & NAHID SEIF |
|||||
|
12/21/1999 |
|
Deeds |
$75,000 |
FEARNOW RICHARD D & CAROLYNE TRS |
NADERPOUR ABBAS & NAHID SEIF |
|||||
| Last Mailed Notice of Value (N.O.V.) Information/History | ||||||
|---|---|---|---|---|---|---|
| Year | Date | Market Value | Taxable Market Value | Gross Assessed | Exemption | Net Assessed |
|
2023 |
03/13/2023 |
535,680 |
535,680 |
58,924 |
0 |
58,924 |
|
2022 |
03/09/2022 |
368,523 |
348,103 |
38,290 |
0 |
38,290 |
| Property Building Permit History | ||||||
|---|---|---|---|---|---|---|
| Issued | Permit # | Provided by | Bldg # | Description | Est Construction Cost | Status |
|
5/24/1993 |
10240737 |
OKLAHOMA CITY |
1 |
Burn - Trip |
7,500 |
Inactive |
| Click button on building number to access detailed information: | ||||||
|---|---|---|---|---|---|---|
| Bldg # | Vacant/Improved Land | Bldg Description | Year Built | SqFt | # Stories | |
|
1 |
Improved |
Service Garage |
1950 |
3,576 |
1 Stories |
|