|
|
|
| Larry Stein Oklahoma County Assessor (405) 713-1200 - Public Access System |
|
|
|
|
|
|
| Real Property Display - Screen Produced 3/31/2026 10:12:09 PM | ||||
|---|---|---|---|---|
| Account: R145579050 | Type: Residential | Location: |
4408 NW 38TH ST |
|
| Building Name/Occupant: |
|
OKLAHOMA CITY |
||
| Owner Name 1: | HASHEMI BEN A |
Parcel PIN#: |
2855-14-557-9050 |
|
| Owner Name 2: | HASHEMI FOROUGH | 1/4 section #: |
2855 |
|
| Owner Name 3: | Parent Acct: |
|
||
| Billing Address: | 4408 NW 38TH ST | Tax District: |
|
|
| City, State, Zip | OKLAHOMA CITY, OK 73112 | School System: |
Putnam City #1 |
|
|
Country: (If noted) |
Land Size: |
0.5100 Acres |
||
|
Land Value: 38,106 |
|
|||
|
Sect 14-T12N-R4W Qtr SW |
FAIRVIEW HEIGHTS ADD
Block
008
Lot
000
|
|||
| Full Legal Description: FAIRVIEW HEIGHTS ADD 008 000 PT OF LOT 18 BEG NW/C TH E211.72FT S100FT W235.76FT NELY102.63FT TO BEG |
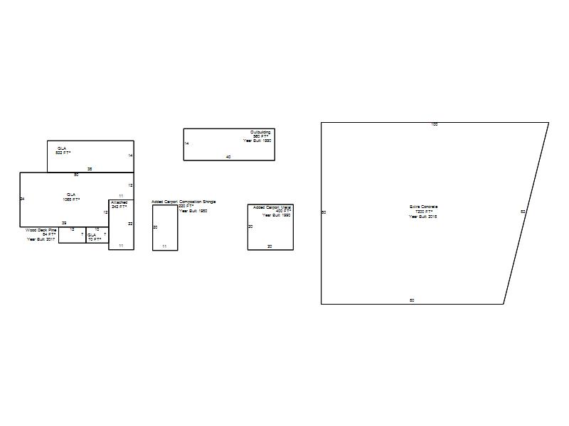
| Photo & Sketch (if available) | Comp Sales (ordered by relevancy) |
|
||||||||||||||||||
|
||||||||||||||||||||
| Value History (*The County Treasurer 405-713-1300 posts & collects actual tax amounts. Contact information HERE) | |||||||||||||
|---|---|---|---|---|---|---|---|---|---|---|---|---|---|
| Year | Market Value | Taxable Mkt Value | Gross Assessed | Exemption | Net Assessed | Millage | Est. Tax | Tax Savings | |||||
|
2026 |
219,500 |
189,253 |
20,817 |
0 |
20,817 |
123.17 |
$2,564 |
$410 |
|||||
|
2025 |
242,500 |
180,241 |
19,826 |
0 |
19,826 |
123.17 |
$2,442 |
$844 |
|||||
|
2024 |
233,500 |
171,659 |
18,882 |
0 |
18,882 |
122.30 |
$2,309 |
$832 |
|||||
|
2023 |
216,000 |
163,485 |
17,983 |
0 |
17,983 |
121.91 |
$2,192 |
$704 |
|||||
|
2022 |
202,000 |
155,700 |
17,125 |
0 |
17,125 |
123.41 |
$2,114 |
$629 |
|||||
| Property Account Status/Adjustments/Exemptions | ||
|---|---|---|
| Account # | Exemption Description | Amount |
|
R145579050 |
5% Capped Account |
0 |
| Property Deed Transaction History (Recorded in the County Clerk's Office) | ||||||||||
|---|---|---|---|---|---|---|---|---|---|---|
| Date | Type | Book | Page | Price | Grantor | Grantee | ||||
|
11/30/2017 |
|
Deeds |
$135,000 |
ALLEN INVESTMENT CORPORATION |
HASHEMI BEN A |
|||||
|
1/6/2016 |
|
Other |
$0 |
SECRETARY OF HOUSING & URBAN DEV C/O MICHAELSON CONNOR & BOU |
ALLEN INVESTMENT CORPORATION |
|||||
|
12/9/2014 |
|
Other |
$0 |
BANK OF AMERICA NA |
SECRETARY OF HOUSING & URBAN DEV C/O MICHAELSON CONNOR & BOU |
|||||
|
11/14/2014 |
|
Hmstd Off & |
$0 |
BRUNING LOUIS H SR & D ANNE |
BANK OF AMERICA NA |
|||||
|
9/28/1995 |
|
Historical |
$0 |
BELL DOROTHY ELLEN |
BRUNING LOUIS H SR & D ANNE |
|||||
| Last Mailed Notice of Value (N.O.V.) Information/History | ||||||||
|---|---|---|---|---|---|---|---|---|
| Year | Date | Market Value | Taxable Market Value | Gross Assessed | Exemption | Net Assessed | ||
|
2026 |
02/23/2026 |
219,500 |
189,253 |
20,817 |
0 |
20,817 |
||
|
2025 |
02/14/2025 |
242,500 |
180,241 |
19,826 |
0 |
19,826 |
||
|
2024 |
02/13/2024 |
233,500 |
171,659 |
18,882 |
0 |
18,882 |
||
|
2023 |
02/14/2023 |
216,000 |
163,485 |
17,983 |
0 |
17,983 |
||
|
2022 |
03/15/2022 |
202,000 |
155,700 |
17,125 |
0 |
17,125 |
||
| Property Building Permit History | ||||||
|---|---|---|---|---|---|---|
| Issued | Permit # | Provided by | Bldg # | Description | Est Construction Cost | Status |
|
5/24/1996 |
10240764 |
OKLAHOMA CITY |
1 |
Swimming Pool |
2,000 |
Inactive |
|
4/3/1996 |
10240763 |
OKLAHOMA CITY |
1 |
Storage Buil |
5,000 |
Inactive |
| Click button on building number to access detailed information: | ||||||
|---|---|---|---|---|---|---|
| Bldg # | Vacant/Improved Land | Bldg Description | Year Built | SqFt | # Stories | |
|
1 |
Improved |
Ranch 1 Story |
1948 |
1,670 |
1 Stories |
|