|
|
|
| Larry Stein Oklahoma County Assessor (405) 713-1200 - Public Access System |
|
|
|
|
|
|
| Real Property Display - Screen Produced 2/27/2026 9:41:03 PM | ||||
|---|---|---|---|---|
| Account: R145351025 | Type: Residential | Location: |
4605 N WARREN AVE |
|
| Building Name/Occupant: |
|
OKLAHOMA CITY |
||
| Owner Name 1: | HARDESTY KELLIE SWEET |
Parcel PIN#: |
2856-14-535-1025 |
|
| Owner Name 2: | HARDESTY JIM A | 1/4 section #: |
2856 |
|
| Owner Name 3: | Parent Acct: |
|
||
| Billing Address: | 4417 SAINT ANDREWS DR | Tax District: |
|
|
| City, State, Zip | STOCKTON, CA 95219-1849 | School System: |
Putnam City #1 |
|
|
Country: (If noted) |
Land Size: |
0.1736 Acres |
||
|
Land Value: 24,570 |
|
|||
|
Sect 14-T12N-R4W Qtr NW |
GRADY MUSGRAVE MERIDIAN
Block
001
Lot
003
|
|||
| Full Legal Description: GRADY MUSGRAVE MERIDIAN 001 003 |
| Photo & Sketch (if available) | Comp Sales (ordered by relevancy) |
|
||||||||||||||||||
|
||||||||||||||||||||
| Value History (*The County Treasurer 405-713-1300 posts & collects actual tax amounts. Contact information HERE) | |||||||||||||
|---|---|---|---|---|---|---|---|---|---|---|---|---|---|
| Year | Market Value | Taxable Mkt Value | Gross Assessed | Exemption | Net Assessed | Millage | Est. Tax | Tax Savings | |||||
|
2025 |
187,000 |
187,000 |
20,570 |
0 |
20,570 |
123.17 |
$2,534 |
$0 |
|||||
|
2024 |
183,000 |
183,000 |
20,130 |
0 |
20,130 |
122.30 |
$2,462 |
$0 |
|||||
|
2023 |
149,500 |
113,759 |
12,513 |
1,000 |
11,513 |
121.91 |
$1,404 |
$601 |
|||||
|
2022 |
132,500 |
110,446 |
12,147 |
1,000 |
11,147 |
123.41 |
$1,376 |
$423 |
|||||
|
2021 |
117,000 |
107,230 |
11,794 |
1,000 |
10,794 |
122.23 |
$1,320 |
$254 |
|||||
| Property Account Status/Adjustments/Exemptions | ||
|---|---|---|
| Account # | Exemption Description | Amount |
|
R145351025 |
5% Capped Account |
0 |
| Property Deed Transaction History (Recorded in the County Clerk's Office) | ||||||||||
|---|---|---|---|---|---|---|---|---|---|---|
| Date | Type | Book | Page | Price | Grantor | Grantee | ||||
|
4/6/2023 |
|
Deeds |
$184,000 |
HALL MATTHEW |
HARDESTY KELLIE SWEET |
|||||
|
3/27/2023 |
|
Deeds |
$184,000 |
HALL MATTHEW |
HALL MATTHEW |
|||||
|
2/1/2013 |
|
Deeds |
$99,000 |
DAVIDSON JOHN K & JIMI L |
HALL MATTHEW |
|||||
|
10/15/2012 |
|
Deeds |
$0 |
HUMPHREYS SARA REED DAVIDSON JOHN K & JIMI L |
DAVIDSON JOHN K & JIMI L |
|||||
|
9/1/2009 |
|
Deeds |
$90,000 |
COLON ARTHUR DELANO & L MICHELLE |
HUMPHREYS SARA REED DAVIDSON JOHN K & JIMI L |
|||||
| Last Mailed Notice of Value (N.O.V.) Information/History | ||||||||
|---|---|---|---|---|---|---|---|---|
| Year | Date | Market Value | Taxable Market Value | Gross Assessed | Exemption | Net Assessed | ||
|
2026 |
02/23/2026 |
189,000 |
189,000 |
20,790 |
0 |
20,790 |
||
|
2025 |
02/14/2025 |
187,000 |
187,000 |
20,570 |
0 |
20,570 |
||
|
2024 |
02/13/2024 |
183,000 |
183,000 |
20,130 |
0 |
20,130 |
||
|
2023 |
02/14/2023 |
149,500 |
113,759 |
12,513 |
1,000 |
11,513 |
||
|
2022 |
03/15/2022 |
132,500 |
110,446 |
12,147 |
1,000 |
11,147 |
||
| Property Building Permit History | |||||||||||
|---|---|---|---|---|---|---|---|---|---|---|---|
| Issued | Permit # | Provided by | Bldg # | Description | Est Construction Cost | Status | |||||
| No Building Permit records returned. | |||||||||||
| Click button on building number to access detailed information: | ||||||
|---|---|---|---|---|---|---|
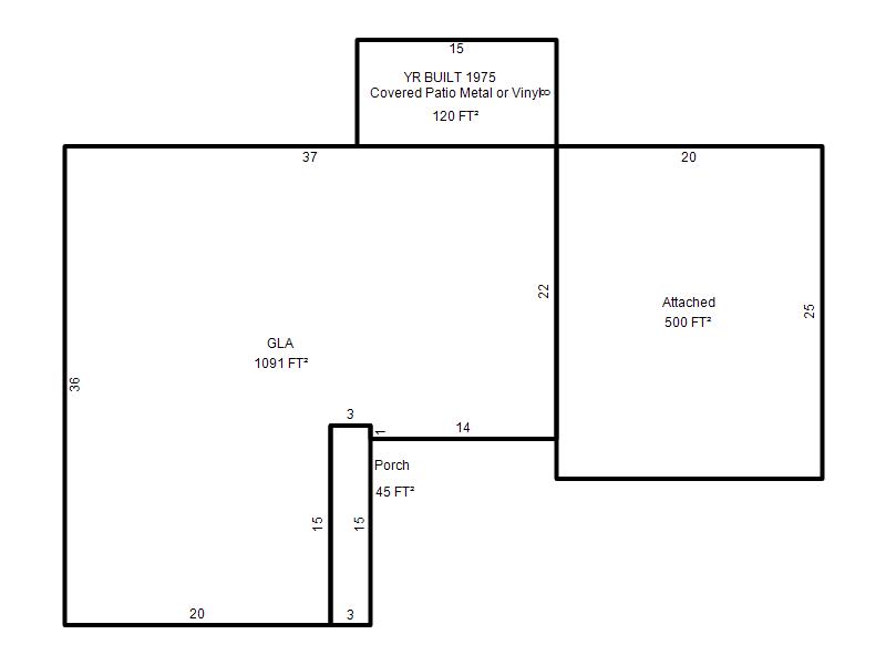
| Bldg # | Vacant/Improved Land | Bldg Description | Year Built | SqFt | # Stories | |
|
1 |
Improved |
Ranch 1 Story |
1956 |
1,091 |
1 Stories |
|