|
|
|
| Larry Stein Oklahoma County Assessor (405) 713-1200 - Public Access System |
|
|
|
|
|
|
| Real Property Display - Screen Produced 2/27/2026 9:38:57 PM | ||||
|---|---|---|---|---|
| Account: R145351235 | Type: Residential | Location: |
4308 NW 46TH ST |
|
| Building Name/Occupant: |
|
OKLAHOMA CITY |
||
| Owner Name 1: | SOWLE KILE |
Parcel PIN#: |
2856-14-535-1235 |
|
| Owner Name 2: | 1/4 section #: |
2856 |
||
| Owner Name 3: | Parent Acct: |
|
||
| Billing Address: | 2908 BROWNE STONE RD | Tax District: |
|
|
| City, State, Zip | OKLAHOMA CITY, OK 73120-1814 | School System: |
Putnam City #1 |
|
|
Country: (If noted) |
Land Size: |
0.1835 Acres |
||
|
Land Value: 25,974 |
|
|||
|
Sect 14-T12N-R4W Qtr NW |
GRADY MUSGRAVE MERIDIAN
Block
002
Lot
001
|
|||
| Full Legal Description: GRADY MUSGRAVE MERIDIAN 002 001 |
| Photo & Sketch (if available) | Comp Sales (ordered by relevancy) |
|
||||||||||||||||||
|
||||||||||||||||||||
| Value History (*The County Treasurer 405-713-1300 posts & collects actual tax amounts. Contact information HERE) | |||||||||||||
|---|---|---|---|---|---|---|---|---|---|---|---|---|---|
| Year | Market Value | Taxable Mkt Value | Gross Assessed | Exemption | Net Assessed | Millage | Est. Tax | Tax Savings | |||||
|
2025 |
150,500 |
130,656 |
14,371 |
0 |
14,371 |
123.17 |
$1,770 |
$269 |
|||||
|
2024 |
146,500 |
124,435 |
13,687 |
0 |
13,687 |
122.30 |
$1,674 |
$297 |
|||||
|
2023 |
139,000 |
118,510 |
13,035 |
0 |
13,035 |
121.91 |
$1,589 |
$275 |
|||||
|
2022 |
123,500 |
112,867 |
12,415 |
0 |
12,415 |
123.41 |
$1,532 |
$144 |
|||||
|
2021 |
109,000 |
107,493 |
11,824 |
0 |
11,824 |
122.23 |
$1,445 |
$20 |
|||||
| Property Account Status/Adjustments/Exemptions | ||
|---|---|---|
| Account # | Exemption Description | Amount |
|
R145351235 |
5% Capped Account |
0 |
| Property Deed Transaction History (Recorded in the County Clerk's Office) | ||||||||||
|---|---|---|---|---|---|---|---|---|---|---|
| Date | Type | Book | Page | Price | Grantor | Grantee | ||||
|
4/25/2017 |
|
Deeds |
$0 |
JHP & MHP LIVING TRUST |
PETTY JACK H SUC TRS JHP & MHP LIVING TRUST |
|||||
|
4/25/2017 |
|
Deeds |
$95,000 |
PETTY JACK H SUC TRS JHP & MHP LIVING TRUST |
SOWLE KILE |
|||||
|
11/10/2003 |
|
Deeds |
$75,000 |
WICKETT JERRI A |
JHP & MHP LIVING TRUST |
|||||
|
7/29/1994 |
|
Historical |
$48,500 |
DITTRICH CYNTHIA RENEE |
WICKETT JERRI A |
|||||
|
6/17/1991 |
|
Historical |
$42,000 |
MOFFIT RITA M |
DITTRICH CYNTHIA RENEE |
|||||
| Last Mailed Notice of Value (N.O.V.) Information/History | ||||||||
|---|---|---|---|---|---|---|---|---|
| Year | Date | Market Value | Taxable Market Value | Gross Assessed | Exemption | Net Assessed | ||
|
2026 |
02/23/2026 |
149,500 |
137,188 |
15,090 |
0 |
15,090 |
||
|
2025 |
02/14/2025 |
150,500 |
130,656 |
14,371 |
0 |
14,371 |
||
|
2024 |
02/13/2024 |
146,500 |
124,435 |
13,687 |
0 |
13,687 |
||
|
2023 |
02/14/2023 |
139,000 |
118,510 |
13,035 |
0 |
13,035 |
||
|
2022 |
03/15/2022 |
123,500 |
112,867 |
12,415 |
0 |
12,415 |
||
| Property Building Permit History | |||||||||||
|---|---|---|---|---|---|---|---|---|---|---|---|
| Issued | Permit # | Provided by | Bldg # | Description | Est Construction Cost | Status | |||||
| No Building Permit records returned. | |||||||||||
| Click button on building number to access detailed information: | ||||||
|---|---|---|---|---|---|---|
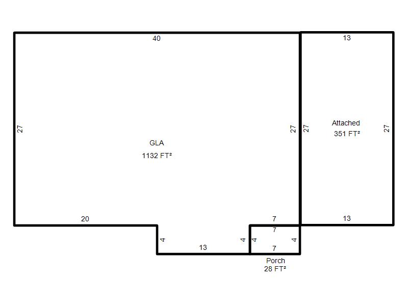
| Bldg # | Vacant/Improved Land | Bldg Description | Year Built | SqFt | # Stories | |
|
1 |
Improved |
Ranch 1 Story |
1956 |
1,132 |
1 Stories |
|