|
|
|
| Larry Stein Oklahoma County Assessor (405) 713-1200 - Public Access System |
|
|
|
|
|
|
| Real Property Display - Screen Produced 2/27/2026 9:38:20 PM | ||||
|---|---|---|---|---|
| Account: R145351685 | Type: Residential | Location: |
4420 NW 45TH ST |
|
| Building Name/Occupant: |
|
OKLAHOMA CITY |
||
| Owner Name 1: | VECK MAIDEN VOYAGE LLC |
Parcel PIN#: |
2856-14-535-1685 |
|
| Owner Name 2: | 1/4 section #: |
2856 |
||
| Owner Name 3: | Parent Acct: |
|
||
| Billing Address: | 828 CRESTVIEW CIR | Tax District: |
|
|
| City, State, Zip | WESTON, FL 33327-1852 | School System: |
Putnam City #1 |
|
|
Country: (If noted) |
Land Size: |
0.2089 Acres |
||
|
Land Value: 29,575 |
|
|||
|
Sect 14-T12N-R4W Qtr NW |
GRADY MUSGRAVE MERIDIAN
Block
003
Lot
014
|
|||
| Full Legal Description: GRADY MUSGRAVE MERIDIAN 003 014 |
| Photo & Sketch (if available) | Comp Sales (ordered by relevancy) |
|
||||||||||||||||||
|
||||||||||||||||||||
| Value History (*The County Treasurer 405-713-1300 posts & collects actual tax amounts. Contact information HERE) | |||||||||||||
|---|---|---|---|---|---|---|---|---|---|---|---|---|---|
| Year | Market Value | Taxable Mkt Value | Gross Assessed | Exemption | Net Assessed | Millage | Est. Tax | Tax Savings | |||||
|
2025 |
148,000 |
129,540 |
14,248 |
0 |
14,248 |
123.17 |
$1,755 |
$250 |
|||||
|
2024 |
144,000 |
123,372 |
13,570 |
0 |
13,570 |
122.30 |
$1,660 |
$278 |
|||||
|
2023 |
136,500 |
117,498 |
12,924 |
0 |
12,924 |
121.91 |
$1,576 |
$255 |
|||||
|
2022 |
121,500 |
111,903 |
12,309 |
0 |
12,309 |
123.41 |
$1,519 |
$130 |
|||||
|
2021 |
107,500 |
106,575 |
11,723 |
0 |
11,723 |
122.23 |
$1,433 |
$12 |
|||||
| Property Account Status/Adjustments/Exemptions | ||
|---|---|---|
| Account # | Exemption Description | Amount |
|
R145351685 |
5% Capped Account |
0 |
| Property Deed Transaction History (Recorded in the County Clerk's Office) | ||||||||||
|---|---|---|---|---|---|---|---|---|---|---|
| Date | Type | Book | Page | Price | Grantor | Grantee | ||||
|
5/23/2013 |
|
Hmstd Off & |
$0 |
VECK VENTURES LLC |
VECK MAIDEN VOYAGE LLC |
|||||
|
9/27/2006 |
|
Deeds |
$74,000 |
EFFINGER JERRY D SR EFFINGER BARBARA J |
VECK VENTURES LLC |
|||||
|
7/8/1993 |
|
Historical |
$0 |
AL LOWERY INC |
EFFINGER JERRY D SR |
|||||
|
5/4/1993 |
|
Historical |
$0 |
CUNNINGHAM WILEY R & MICHELLE |
AL LOWERY INC |
|||||
|
1/3/1989 |
|
Historical |
$45,000 |
LOWERY AL INCORPORATED |
CUNNINGHAM WILEY R & MICHELLE |
|||||
| Last Mailed Notice of Value (N.O.V.) Information/History | ||||||||
|---|---|---|---|---|---|---|---|---|
| Year | Date | Market Value | Taxable Market Value | Gross Assessed | Exemption | Net Assessed | ||
|
2026 |
02/23/2026 |
148,500 |
136,017 |
14,961 |
0 |
14,961 |
||
|
2025 |
02/14/2025 |
148,000 |
129,540 |
14,248 |
0 |
14,248 |
||
|
2024 |
02/13/2024 |
144,000 |
123,372 |
13,570 |
0 |
13,570 |
||
|
2023 |
02/14/2023 |
136,500 |
117,498 |
12,924 |
0 |
12,924 |
||
|
2022 |
03/15/2022 |
121,500 |
111,903 |
12,309 |
0 |
12,309 |
||
| Property Building Permit History | |||||||||||
|---|---|---|---|---|---|---|---|---|---|---|---|
| Issued | Permit # | Provided by | Bldg # | Description | Est Construction Cost | Status | |||||
| No Building Permit records returned. | |||||||||||
| Click button on building number to access detailed information: | ||||||
|---|---|---|---|---|---|---|
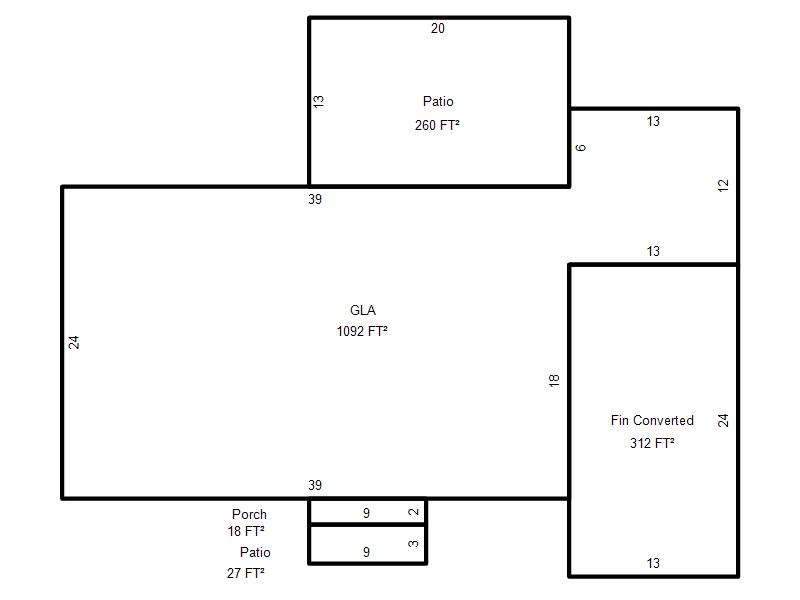
| Bldg # | Vacant/Improved Land | Bldg Description | Year Built | SqFt | # Stories | |
|
1 |
Improved |
Ranch 1 Story |
1955 |
1,092 |
1 Stories |
|