|
|
|
| Larry Stein Oklahoma County Assessor (405) 713-1200 - Public Access System |
|
|
|
|
|
|
| Real Property Display - Screen Produced 2/27/2026 9:38:20 PM | ||||
|---|---|---|---|---|
| Account: R145351995 | Type: Residential | Location: |
4332 NW 44TH ST |
|
| Building Name/Occupant: |
|
OKLAHOMA CITY |
||
| Owner Name 1: | TOWNSEND RICHARD TRS |
Parcel PIN#: |
2856-14-535-1995 |
|
| Owner Name 2: | TOWNSEND RICHARD LIV TRUST | 1/4 section #: |
2856 |
|
| Owner Name 3: | Parent Acct: |
|
||
| Billing Address: | 3608 NW 50TH ST | Tax District: |
|
|
| City, State, Zip | OKLAHOMA CITY, OK 73112 | School System: |
Putnam City #1 |
|
|
Country: (If noted) |
Land Size: |
0.2089 Acres |
||
|
Land Value: 29,575 |
|
|||
|
Sect 14-T12N-R4W Qtr NW |
GRADY MUSGRAVE MERIDIAN
Block
004
Lot
009
|
|||
| Full Legal Description: GRADY MUSGRAVE MERIDIAN 004 009 |
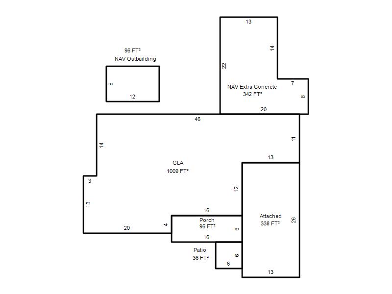
| Photo & Sketch (if available) | Comp Sales (ordered by relevancy) |
|
||||||||||||||||||
|
||||||||||||||||||||
| Value History (*The County Treasurer 405-713-1300 posts & collects actual tax amounts. Contact information HERE) | |||||||||||||
|---|---|---|---|---|---|---|---|---|---|---|---|---|---|
| Year | Market Value | Taxable Mkt Value | Gross Assessed | Exemption | Net Assessed | Millage | Est. Tax | Tax Savings | |||||
|
2025 |
143,500 |
143,500 |
15,785 |
0 |
15,785 |
123.17 |
$1,944 |
$0 |
|||||
|
2024 |
140,000 |
140,000 |
15,400 |
0 |
15,400 |
122.30 |
$1,883 |
$0 |
|||||
|
2023 |
134,000 |
114,898 |
12,637 |
0 |
12,637 |
121.91 |
$1,541 |
$256 |
|||||
|
2022 |
119,500 |
109,427 |
12,036 |
0 |
12,036 |
123.41 |
$1,485 |
$137 |
|||||
|
2021 |
106,000 |
104,217 |
11,463 |
0 |
11,463 |
122.23 |
$1,401 |
$24 |
|||||
| Property Account Status/Adjustments/Exemptions | ||
|---|---|---|
| Account # | Exemption Description | Amount |
|
R145351995 |
5% Capped Account |
0 |
| Property Deed Transaction History (Recorded in the County Clerk's Office) | ||||||||||
|---|---|---|---|---|---|---|---|---|---|---|
| Date | Type | Book | Page | Price | Grantor | Grantee | ||||
|
8/14/2023 |
|
Deeds |
$57,500 |
ROSS CRISTINA LUCIA CO TRS |
TOWNSEND RICHARD TRS |
|||||
|
8/19/2020 |
|
Hmstd Off & |
$0 |
LOCKHART MICHAEL ALLEN |
ROSS CRISTINA LUCIA CO TRS |
|||||
|
6/4/2018 |
|
Hmstd Off & |
$0 |
ROSS FRANCIS E & NORMA L FAMILY TRUST |
LOCKHART MICHAEL ALLEN |
|||||
|
2/27/2006 |
|
Deeds |
$0 |
ROSS F E & NORMA L |
ROSS FRANCIS E & NORMA L FAMILY TRUST |
|||||
|
12/30/1996 |
|
Historical |
$0 |
GUZMAN WANDA J |
ROSS F E & NORMA L |
|||||
| Last Mailed Notice of Value (N.O.V.) Information/History | ||||||||
|---|---|---|---|---|---|---|---|---|
| Year | Date | Market Value | Taxable Market Value | Gross Assessed | Exemption | Net Assessed | ||
|
2025 |
02/14/2025 |
143,500 |
143,500 |
15,785 |
0 |
15,785 |
||
|
2024 |
02/13/2024 |
140,000 |
140,000 |
15,400 |
0 |
15,400 |
||
|
2023 |
02/14/2023 |
134,000 |
114,898 |
12,637 |
0 |
12,637 |
||
|
2022 |
03/15/2022 |
119,500 |
109,427 |
12,036 |
0 |
12,036 |
||
|
2021 |
03/19/2021 |
106,000 |
104,217 |
11,463 |
0 |
11,463 |
||
| Property Building Permit History | ||||||
|---|---|---|---|---|---|---|
| Issued | Permit # | Provided by | Bldg # | Description | Est Construction Cost | Status |
|
10/18/1991 |
10240477 |
OKLAHOMA CITY |
1 |
Demolish |
0 |
Inactive |
| Click button on building number to access detailed information: | ||||||
|---|---|---|---|---|---|---|
| Bldg # | Vacant/Improved Land | Bldg Description | Year Built | SqFt | # Stories | |
|
1 |
Improved |
Ranch 1 Story |
1956 |
1,009 |
1 Stories |
|