|
|
|
| Larry Stein Oklahoma County Assessor (405) 713-1200 - Public Access System |
|
|
|
|
|
|
| Real Property Display - Screen Produced 2/28/2026 7:43:10 AM | ||||
|---|---|---|---|---|
| Account: R145361015 | Type: Residential | Location: |
4305 NW 48TH ST |
|
| Building Name/Occupant: |
|
OKLAHOMA CITY |
||
| Owner Name 1: | HUDSON SARAH R |
Parcel PIN#: |
2856-14-536-1015 |
|
| Owner Name 2: | 1/4 section #: |
2856 |
||
| Owner Name 3: | Parent Acct: |
|
||
| Billing Address: | 4305 NW 48TH ST | Tax District: |
|
|
| City, State, Zip | OKLAHOMA CITY, OK 73112-2238 | School System: |
Putnam City #1 |
|
|
Country: (If noted) |
Land Size: |
0.1970 Acres |
||
|
Land Value: 34,320 |
|
|||
|
Sect 14-T12N-R4W Qtr NW |
GRADY MUSGRAVE MERIDIAN 2
Block
001
Lot
002
|
|||
| Full Legal Description: GRADY MUSGRAVE MERIDIAN 2 001 002 |
| Photo & Sketch (if available) | Comp Sales (ordered by relevancy) |
|
||||||||||||||||||
|
||||||||||||||||||||
| Value History (*The County Treasurer 405-713-1300 posts & collects actual tax amounts. Contact information HERE) | |||||||||||||
|---|---|---|---|---|---|---|---|---|---|---|---|---|---|
| Year | Market Value | Taxable Mkt Value | Gross Assessed | Exemption | Net Assessed | Millage | Est. Tax | Tax Savings | |||||
|
2025 |
211,000 |
153,338 |
16,866 |
1,000 |
15,866 |
123.17 |
$1,954 |
$904 |
|||||
|
2024 |
207,000 |
148,872 |
16,374 |
1,000 |
15,374 |
122.30 |
$1,880 |
$904 |
|||||
|
2023 |
197,500 |
144,536 |
15,898 |
1,000 |
14,898 |
121.91 |
$1,816 |
$832 |
|||||
|
2022 |
176,000 |
140,327 |
15,434 |
1,000 |
14,434 |
123.41 |
$1,782 |
$608 |
|||||
|
2021 |
156,000 |
136,240 |
14,985 |
1,000 |
13,985 |
122.23 |
$1,710 |
$388 |
|||||
| Property Account Status/Adjustments/Exemptions | ||
|---|---|---|
| Account # | Exemption Description | Amount |
|
R145361015 |
3% Cap Homestead |
0 |
|
R145361015 |
Homestead |
1,000 |
| Property Deed Transaction History (Recorded in the County Clerk's Office) | |||||||
|---|---|---|---|---|---|---|---|
| Date | Type | Book | Page | Price | Grantor | Grantee | |
|
7/14/2005 |
|
Deeds |
$92,500 |
SMITH VICKIE LYNNE MCDONALD SUSAN ELAINE |
HUDSON SARAH R |
||
|
3/14/2005 |
|
Hmstd Off & |
$0 |
SUMMERS MARY E |
SMITH VICKIE LYNNE MCDONALD SUSAN ELAINE |
||
|
9/3/1992 |
|
Historical |
$56,000 |
HAY C E & P A |
SUMMERS MARY E |
||
|
11/11/1911 |
|
Historical |
$0 |
|
HAY C E & P A |
||
| Last Mailed Notice of Value (N.O.V.) Information/History | ||||||||
|---|---|---|---|---|---|---|---|---|
| Year | Date | Market Value | Taxable Market Value | Gross Assessed | Exemption | Net Assessed | ||
|
2026 |
02/23/2026 |
213,500 |
157,938 |
17,373 |
1,000 |
16,373 |
||
|
2025 |
02/14/2025 |
211,000 |
153,338 |
16,866 |
1,000 |
15,866 |
||
|
2024 |
02/13/2024 |
207,000 |
148,872 |
16,374 |
1,000 |
15,374 |
||
|
2023 |
02/14/2023 |
197,500 |
144,536 |
15,898 |
1,000 |
14,898 |
||
|
2022 |
03/15/2022 |
176,000 |
140,327 |
15,434 |
1,000 |
14,434 |
||
| Property Building Permit History | |||||||||||
|---|---|---|---|---|---|---|---|---|---|---|---|
| Issued | Permit # | Provided by | Bldg # | Description | Est Construction Cost | Status | |||||
| No Building Permit records returned. | |||||||||||
| Click button on building number to access detailed information: | ||||||
|---|---|---|---|---|---|---|
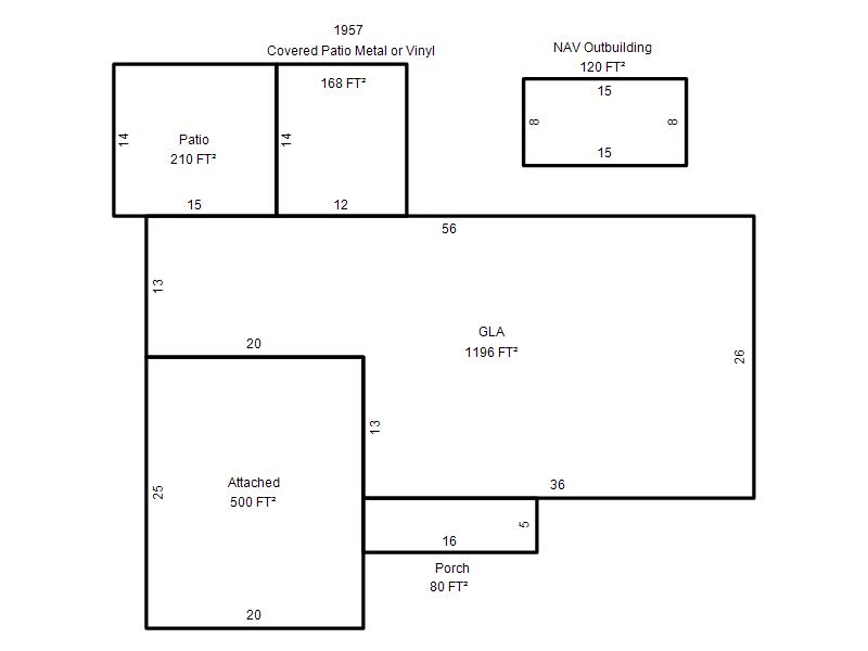
| Bldg # | Vacant/Improved Land | Bldg Description | Year Built | SqFt | # Stories | |
|
1 |
Improved |
Ranch 1 Story |
1957 |
1,196 |
1 Stories |
|