|
|
|
| Larry Stein Oklahoma County Assessor (405) 713-1200 - Public Access System |
|
|
|
|
|
|
| Real Property Display - Screen Produced 2/28/2026 7:46:48 AM | ||||
|---|---|---|---|---|
| Account: R145361045 | Type: Residential | Location: |
4317 NW 48TH ST |
|
| Building Name/Occupant: |
|
OKLAHOMA CITY |
||
| Owner Name 1: | SMITH ROANNE TRS |
Parcel PIN#: |
2856-14-536-1045 |
|
| Owner Name 2: | SMITH ROANNE TRUST | 1/4 section #: |
2856 |
|
| Owner Name 3: | Parent Acct: |
|
||
| Billing Address: | 4317 NW 48TH ST | Tax District: |
|
|
| City, State, Zip | OKLAHOMA CITY, OK 73112-2238 | School System: |
Putnam City #1 |
|
|
Country: (If noted) |
Land Size: |
0.1940 Acres |
||
|
Land Value: 33,800 |
|
|||
|
Sect 14-T12N-R4W Qtr NW |
GRADY MUSGRAVE MERIDIAN 2
Block
001
Lot
005
|
|||
| Full Legal Description: GRADY MUSGRAVE MERIDIAN 2 001 005 |
| Photo & Sketch (if available) | Comp Sales (ordered by relevancy) |
|
||||||||||||||||||
|
||||||||||||||||||||
| Value History (*The County Treasurer 405-713-1300 posts & collects actual tax amounts. Contact information HERE) | |||||||||||||
|---|---|---|---|---|---|---|---|---|---|---|---|---|---|
| Year | Market Value | Taxable Mkt Value | Gross Assessed | Exemption | Net Assessed | Millage | Est. Tax | Tax Savings | |||||
|
2025 |
188,500 |
135,882 |
14,946 |
1,000 |
13,946 |
123.17 |
$1,718 |
$836 |
|||||
|
2024 |
184,000 |
131,925 |
14,511 |
1,000 |
13,511 |
122.30 |
$1,652 |
$823 |
|||||
|
2023 |
174,500 |
128,083 |
14,088 |
1,000 |
13,088 |
121.91 |
$1,596 |
$744 |
|||||
|
2022 |
155,500 |
124,353 |
13,677 |
1,000 |
12,677 |
123.41 |
$1,565 |
$546 |
|||||
|
2021 |
137,000 |
120,732 |
13,279 |
1,000 |
12,279 |
122.23 |
$1,501 |
$341 |
|||||
| Property Account Status/Adjustments/Exemptions | ||
|---|---|---|
| Account # | Exemption Description | Amount |
|
R145361045 |
3% Cap Homestead |
0 |
|
R145361045 |
Homestead |
1,000 |
| Property Deed Transaction History (Recorded in the County Clerk's Office) | ||||||||||
|---|---|---|---|---|---|---|---|---|---|---|
| Date | Type | Book | Page | Price | Grantor | Grantee | ||||
|
8/19/2016 |
|
Deeds |
$0 |
SMITH ROANNE |
SMITH ROANNE TRS |
|||||
|
2/10/2011 |
|
Deeds |
$0 |
SMITH DUSTIN O |
SMITH ROANNE |
|||||
|
1/21/2011 |
|
Deeds |
$0 |
SMITH DUSTIN |
SMITH ROANNE |
|||||
|
7/22/2002 |
|
Deeds |
$73,500 |
GEORGE CHRISTOPHER |
SMITH DUSTIN |
|||||
|
11/22/1995 |
|
Historical |
$60,000 |
GOY MICHAEL J |
GEORGE CHRISTOPHER |
|||||
| Last Mailed Notice of Value (N.O.V.) Information/History | ||||||||
|---|---|---|---|---|---|---|---|---|
| Year | Date | Market Value | Taxable Market Value | Gross Assessed | Exemption | Net Assessed | ||
|
2026 |
02/23/2026 |
188,500 |
139,958 |
15,395 |
1,000 |
14,395 |
||
|
2025 |
02/14/2025 |
188,500 |
135,882 |
14,946 |
1,000 |
13,946 |
||
|
2024 |
02/13/2024 |
184,000 |
131,925 |
14,511 |
1,000 |
13,511 |
||
|
2023 |
02/14/2023 |
174,500 |
128,083 |
14,088 |
1,000 |
13,088 |
||
|
2022 |
03/15/2022 |
155,500 |
124,353 |
13,677 |
1,000 |
12,677 |
||
| Property Building Permit History | |||||||||||
|---|---|---|---|---|---|---|---|---|---|---|---|
| Issued | Permit # | Provided by | Bldg # | Description | Est Construction Cost | Status | |||||
| No Building Permit records returned. | |||||||||||
| Click button on building number to access detailed information: | ||||||
|---|---|---|---|---|---|---|
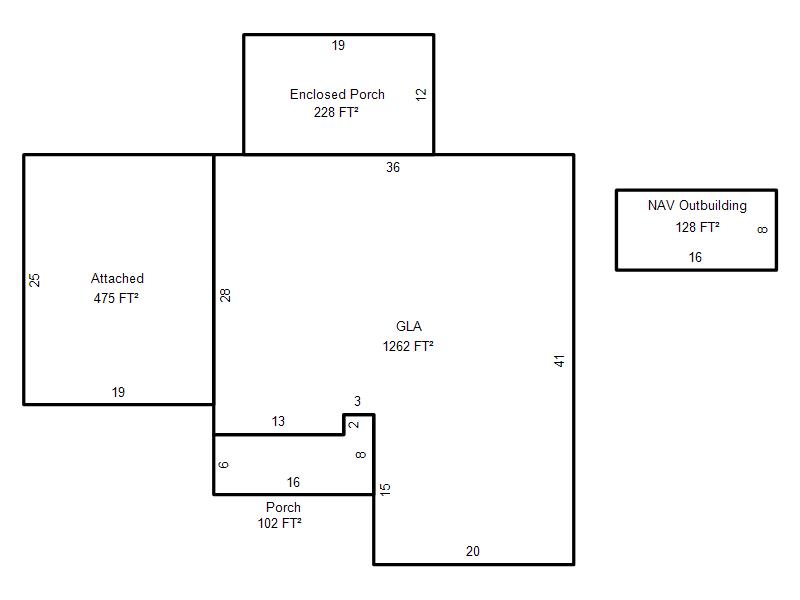
| Bldg # | Vacant/Improved Land | Bldg Description | Year Built | SqFt | # Stories | |
|
1 |
Improved |
Ranch 1 Story |
1957 |
1,262 |
1 Stories |
|