|
|
|
| Larry Stein Oklahoma County Assessor (405) 713-1200 - Public Access System |
|
|
|
|
|
|
| Real Property Display - Screen Produced 2/28/2026 7:42:33 AM | ||||
|---|---|---|---|---|
| Account: R145361155 | Type: Residential | Location: |
4421 NW 48TH ST |
|
| Building Name/Occupant: |
|
OKLAHOMA CITY |
||
| Owner Name 1: | BOGGS ZACHARY T & CHRISHELL Z |
Parcel PIN#: |
2856-14-536-1155 |
|
| Owner Name 2: | 1/4 section #: |
2856 |
||
| Owner Name 3: | Parent Acct: |
|
||
| Billing Address: | PO BOX 721062 | Tax District: |
|
|
| City, State, Zip | OKLAHOMA CITY, OK 73172 | School System: |
Putnam City #1 |
|
|
Country: (If noted) |
UNITED STATES |
Land Size: |
0.1820 Acres |
|
|
Land Value: 31,720 |
|
|||
|
Sect 14-T12N-R4W Qtr NW |
GRADY MUSGRAVE MERIDIAN 2
Block
001
Lot
000
|
|||
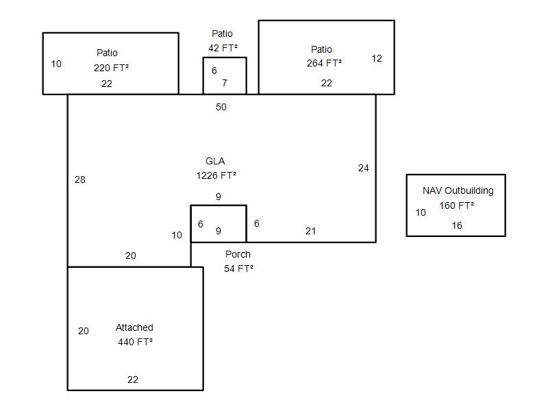
| Full Legal Description: GRADY MUSGRAVE MERIDIAN 2 001 000 W56FT LOT 16 & E5FT LOT 17 |
| Photo & Sketch (if available) | Comp Sales (ordered by relevancy) |
|
||||||||||||||||||
|
||||||||||||||||||||
| Value History (*The County Treasurer 405-713-1300 posts & collects actual tax amounts. Contact information HERE) | |||||||||||||
|---|---|---|---|---|---|---|---|---|---|---|---|---|---|
| Year | Market Value | Taxable Mkt Value | Gross Assessed | Exemption | Net Assessed | Millage | Est. Tax | Tax Savings | |||||
|
2025 |
202,000 |
164,091 |
18,049 |
0 |
18,049 |
123.17 |
$2,223 |
$514 |
|||||
|
2024 |
197,500 |
156,278 |
17,190 |
0 |
17,190 |
122.30 |
$2,102 |
$555 |
|||||
|
2023 |
191,000 |
148,837 |
16,371 |
0 |
16,371 |
121.91 |
$1,996 |
$565 |
|||||
|
2022 |
158,500 |
141,750 |
15,592 |
0 |
15,592 |
123.41 |
$1,924 |
$227 |
|||||
|
2021 |
135,000 |
135,000 |
14,850 |
0 |
14,850 |
122.23 |
$1,815 |
$0 |
|||||
| Property Account Status/Adjustments/Exemptions | ||
|---|---|---|
| Account # | Exemption Description | Amount |
|
R145361155 |
Homestead |
1,000 |
|
R145361155 |
3% Cap Homestead |
0 |
| Property Deed Transaction History (Recorded in the County Clerk's Office) | ||||||||||
|---|---|---|---|---|---|---|---|---|---|---|
| Date | Type | Book | Page | Price | Grantor | Grantee | ||||
|
11/8/2019 |
|
Deeds |
$125,000 |
NIX KORI D |
BOGGS ZACHARY T & CHRISHELL Z |
|||||
|
6/24/2011 |
|
Deeds |
$125,000 |
HEARD KELSEY D |
MURPHREE KERI D |
|||||
|
6/24/2011 |
|
Deeds |
$0 |
MARICAL KELSEY D |
NIX KORI D |
|||||
|
1/12/2009 |
|
Deeds |
$0 |
HEARD KELSEY D & TYLER M |
HEARD KELSEY D |
|||||
|
8/11/2006 |
|
Deeds |
$110,000 |
COOKE MICHAEL F & CARRIE L |
HEARD KELSEY D & TYLER M |
|||||
| Last Mailed Notice of Value (N.O.V.) Information/History | ||||||||
|---|---|---|---|---|---|---|---|---|
| Year | Date | Market Value | Taxable Market Value | Gross Assessed | Exemption | Net Assessed | ||
|
2026 |
02/23/2026 |
204,500 |
169,013 |
18,591 |
1,000 |
17,591 |
||
|
2025 |
02/14/2025 |
202,000 |
164,091 |
18,049 |
0 |
18,049 |
||
|
2024 |
02/13/2024 |
197,500 |
156,278 |
17,190 |
0 |
17,190 |
||
|
2023 |
02/14/2023 |
191,000 |
148,837 |
16,371 |
0 |
16,371 |
||
|
2022 |
03/15/2022 |
158,500 |
141,750 |
15,592 |
0 |
15,592 |
||
| Property Building Permit History | |||||||||||
|---|---|---|---|---|---|---|---|---|---|---|---|
| Issued | Permit # | Provided by | Bldg # | Description | Est Construction Cost | Status | |||||
| No Building Permit records returned. | |||||||||||
| Click button on building number to access detailed information: | ||||||
|---|---|---|---|---|---|---|
| Bldg # | Vacant/Improved Land | Bldg Description | Year Built | SqFt | # Stories | |
|
1 |
Improved |
Ranch 1 Story |
1958 |
1,226 |
1 Stories |
|