|
|
|
| Larry Stein Oklahoma County Assessor (405) 713-1200 - Public Access System |
|
|
|
|
|
|
| Real Property Display - Screen Produced 2/28/2026 7:46:48 AM | ||||
|---|---|---|---|---|
| Account: R147871050 | Type: Residential | Location: |
5013 N BRUNSON ST |
|
| Building Name/Occupant: |
|
OKLAHOMA CITY |
||
| Owner Name 1: | FERNANDEZ OLBIN Y MALDONADO |
Parcel PIN#: |
2856-14-787-1050 |
|
| Owner Name 2: | VIDALS YESENIA MARTINEZ | 1/4 section #: |
2856 |
|
| Owner Name 3: | Parent Acct: |
|
||
| Billing Address: | 5013 N BRUNSON ST | Tax District: |
|
|
| City, State, Zip | OKLAHOMA CITY, OK 73112-2215 | School System: |
Putnam City #1 |
|
|
Country: (If noted) |
Land Size: |
0.2020 Acres |
||
|
Land Value: 37,840 |
|
|||
|
Sect 14-T12N-R4W Qtr NW |
BUSH HILLS 6TH SEC 2
Block
006
Lot
002
|
|||
| Full Legal Description: BUSH HILLS 6TH SEC 2 006 002 |
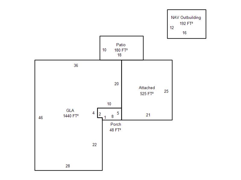
| Photo & Sketch (if available) | Comp Sales (ordered by relevancy) |
|
||||||||||||||||||
|
||||||||||||||||||||
| Value History (*The County Treasurer 405-713-1300 posts & collects actual tax amounts. Contact information HERE) | |||||||||||||
|---|---|---|---|---|---|---|---|---|---|---|---|---|---|
| Year | Market Value | Taxable Mkt Value | Gross Assessed | Exemption | Net Assessed | Millage | Est. Tax | Tax Savings | |||||
|
2025 |
197,000 |
197,000 |
21,670 |
0 |
21,670 |
123.17 |
$2,669 |
$0 |
|||||
|
2024 |
192,500 |
192,500 |
21,175 |
0 |
21,175 |
122.30 |
$2,590 |
$0 |
|||||
|
2023 |
0 |
0 |
0 |
0 |
0 |
121.91 |
$0 |
$0 |
|||||
|
2022 |
0 |
0 |
0 |
0 |
0 |
123.41 |
$0 |
$0 |
|||||
|
2021 |
0 |
0 |
0 |
0 |
0 |
122.23 |
$0 |
$0 |
|||||
| Property Account Status/Adjustments/Exemptions | ||
|---|---|---|
| Account # | Exemption Description | Amount |
|
R147871050 |
5% Capped Account |
0 |
| Property Deed Transaction History (Recorded in the County Clerk's Office) | ||||||||||
|---|---|---|---|---|---|---|---|---|---|---|
| Date | Type | Book | Page | Price | Grantor | Grantee | ||||
|
6/23/2023 |
|
Deeds |
$208,000 |
THE COMMONS SCATTERED LLC |
FERNANDEZ OLBIN Y MALDONADO |
|||||
|
5/30/2017 |
|
Hmstd Off & |
$0 |
NEIGHBORHOOD HOUSING SERVICES |
THE COMMONS SCATTERED LLC |
|||||
|
9/25/2013 |
|
Deeds |
$90,000 |
DEUTSCHE BANK TRUST CO AMERICAS AS TRS |
BANK OF AMERICA NA |
|||||
|
9/25/2013 |
|
Other |
$0 |
BANK OF AMERICA NA |
NEIGHBORHOOD HOUSING SERVICES |
|||||
|
5/28/2013 |
|
Hmstd Off & |
$0 |
ELLIS LA JUNE |
DEUTSCHE BANK TRUST CO AMERICAS AS TRS |
|||||
| Last Mailed Notice of Value (N.O.V.) Information/History | ||||||
|---|---|---|---|---|---|---|
| Year | Date | Market Value | Taxable Market Value | Gross Assessed | Exemption | Net Assessed |
|
2025 |
02/14/2025 |
197,000 |
197,000 |
21,670 |
0 |
21,670 |
|
2024 |
02/13/2024 |
192,500 |
192,500 |
21,175 |
0 |
21,175 |
|
2015 |
03/16/2015 |
115,653 |
115,653 |
12,721 |
0 |
12,721 |
|
2012 |
03/30/2012 |
120,401 |
120,401 |
13,244 |
0 |
13,244 |
|
2011 |
04/01/2011 |
120,300 |
114,924 |
12,640 |
0 |
12,640 |
| Property Building Permit History | |||||||||||
|---|---|---|---|---|---|---|---|---|---|---|---|
| Issued | Permit # | Provided by | Bldg # | Description | Est Construction Cost | Status | |||||
| No Building Permit records returned. | |||||||||||
| Click button on building number to access detailed information: | ||||||
|---|---|---|---|---|---|---|
| Bldg # | Vacant/Improved Land | Bldg Description | Year Built | SqFt | # Stories | |
|
1 |
Improved |
Ranch 1 Story |
1961 |
1,440 |
1 Stories |
|