|
|
|
| Larry Stein Oklahoma County Assessor (405) 713-1200 - Public Access System |
|
|
|
|
|
|
| Real Property Display - Screen Produced 2/28/2026 7:43:09 AM | ||||
|---|---|---|---|---|
| Account: R147871090 | Type: Residential | Location: |
4912 N VERMONT AVE |
|
| Building Name/Occupant: |
|
OKLAHOMA CITY |
||
| Owner Name 1: | PARKER JAMES PHILLIP & SUSAN E TRS |
Parcel PIN#: |
2856-14-787-1090 |
|
| Owner Name 2: | PARKER LIVING TRUST | 1/4 section #: |
2856 |
|
| Owner Name 3: | Parent Acct: |
|
||
| Billing Address: | 4912 N VERMONT AVE | Tax District: |
|
|
| City, State, Zip | OKLAHOMA CITY, OK 73112-2229 | School System: |
Putnam City #1 |
|
|
Country: (If noted) |
Land Size: |
0.2296 Acres |
||
|
Land Value: 43,000 |
|
|||
|
Sect 14-T12N-R4W Qtr NW |
BUSH HILLS 6TH SEC 2
Block
006
Lot
010
|
|||
| Full Legal Description: BUSH HILLS 6TH SEC 2 006 010 |
| Photo & Sketch (if available) | Comp Sales (ordered by relevancy) |
|
||||||||||||||||||
|
||||||||||||||||||||
| Value History (*The County Treasurer 405-713-1300 posts & collects actual tax amounts. Contact information HERE) | |||||||||||||
|---|---|---|---|---|---|---|---|---|---|---|---|---|---|
| Year | Market Value | Taxable Mkt Value | Gross Assessed | Exemption | Net Assessed | Millage | Est. Tax | Tax Savings | |||||
|
2025 |
186,000 |
130,630 |
14,369 |
1,000 |
13,369 |
123.17 |
$1,647 |
$873 |
|||||
|
2024 |
182,500 |
130,630 |
14,369 |
1,000 |
13,369 |
122.30 |
$1,635 |
$820 |
|||||
|
2023 |
173,500 |
130,630 |
14,369 |
1,000 |
13,369 |
121.91 |
$1,630 |
$697 |
|||||
|
2022 |
155,000 |
130,630 |
14,368 |
1,000 |
13,368 |
123.41 |
$1,650 |
$454 |
|||||
|
2021 |
137,500 |
126,826 |
13,950 |
1,000 |
12,950 |
122.23 |
$1,583 |
$266 |
|||||
| Property Account Status/Adjustments/Exemptions | ||
|---|---|---|
| Account # | Exemption Description | Amount |
|
R147871090 |
Freeze Senior Valuation |
0 |
|
R147871090 |
3% Cap Homestead |
0 |
|
R147871090 |
Homestead |
1,000 |
| Property Deed Transaction History (Recorded in the County Clerk's Office) | |||||||
|---|---|---|---|---|---|---|---|
| Date | Type | Book | Page | Price | Grantor | Grantee | |
|
8/6/2008 |
|
Deeds |
$0 |
PARKER JAMES P & SUSAN E |
PARKER JAMES PHILLIP & SUSAN E TRS |
||
|
4/2/1991 |
|
Historical |
$54,000 |
SWEARINGER HELEN AILEEN |
PARKER JAMES P & SUSAN E |
||
|
9/26/1978 |
|
Historical |
$0 |
SWEARINGER CARL O & AILEEN |
SWEARINGER HELEN AILEEN |
||
|
11/11/1911 |
|
Historical |
$0 |
|
SWEARINGER CARL O & AILEEN |
||
| Last Mailed Notice of Value (N.O.V.) Information/History | ||||||||
|---|---|---|---|---|---|---|---|---|
| Year | Date | Market Value | Taxable Market Value | Gross Assessed | Exemption | Net Assessed | ||
|
2025 |
02/14/2025 |
186,000 |
130,630 |
14,369 |
1,000 |
13,369 |
||
|
2024 |
02/13/2024 |
182,500 |
130,630 |
14,369 |
1,000 |
13,369 |
||
|
2023 |
02/14/2023 |
173,500 |
130,630 |
14,369 |
1,000 |
13,369 |
||
|
2022 |
03/15/2022 |
155,000 |
130,630 |
14,368 |
1,000 |
13,368 |
||
|
2021 |
03/19/2021 |
137,500 |
126,826 |
13,950 |
1,000 |
12,950 |
||
| Property Building Permit History | |||||||||||
|---|---|---|---|---|---|---|---|---|---|---|---|
| Issued | Permit # | Provided by | Bldg # | Description | Est Construction Cost | Status | |||||
| No Building Permit records returned. | |||||||||||
| Click button on building number to access detailed information: | ||||||
|---|---|---|---|---|---|---|
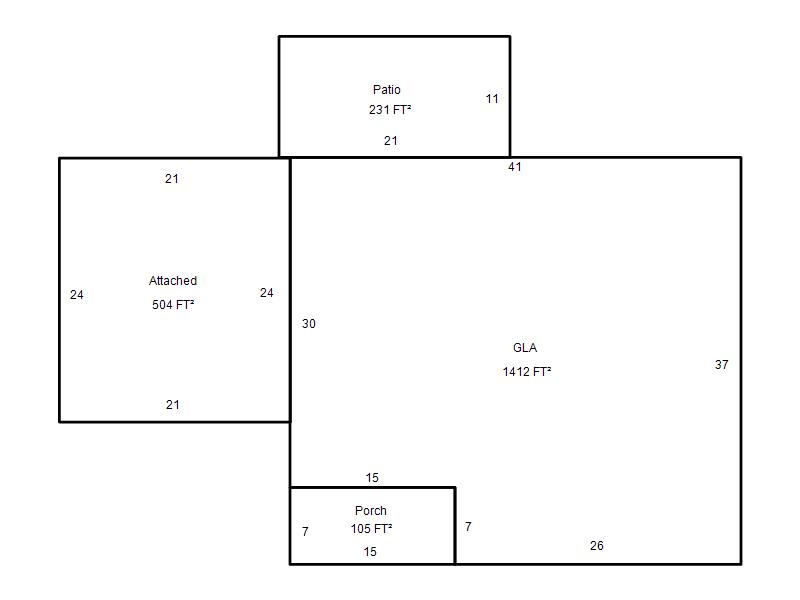
| Bldg # | Vacant/Improved Land | Bldg Description | Year Built | SqFt | # Stories | |
|
1 |
Improved |
Ranch 1 Story |
1959 |
1,412 |
1 Stories |
|