|
|
|
| Larry Stein Oklahoma County Assessor (405) 713-1200 - Public Access System |
|
|
|
|
|
|
| Real Property Display - Screen Produced 2/28/2026 7:46:48 AM | ||||
|---|---|---|---|---|
| Account: R147871100 | Type: Residential | Location: |
5000 N VERMONT AVE |
|
| Building Name/Occupant: |
|
OKLAHOMA CITY |
||
| Owner Name 1: | MELTON MANAGEMENT LLC |
Parcel PIN#: |
2856-14-787-1100 |
|
| Owner Name 2: | 1/4 section #: |
2856 |
||
| Owner Name 3: | Parent Acct: |
|
||
| Billing Address: | 9 TEMPLE CT | Tax District: |
|
|
| City, State, Zip | BROOKLYN, NY 11218 | School System: |
Putnam City #1 |
|
|
Country: (If noted) |
UNITED STATES |
Land Size: |
0.2296 Acres |
|
|
Land Value: 43,000 |
|
|||
|
Sect 14-T12N-R4W Qtr NW |
BUSH HILLS 6TH SEC 2
Block
006
Lot
012
|
|||
| Full Legal Description: BUSH HILLS 6TH SEC 2 006 012 |
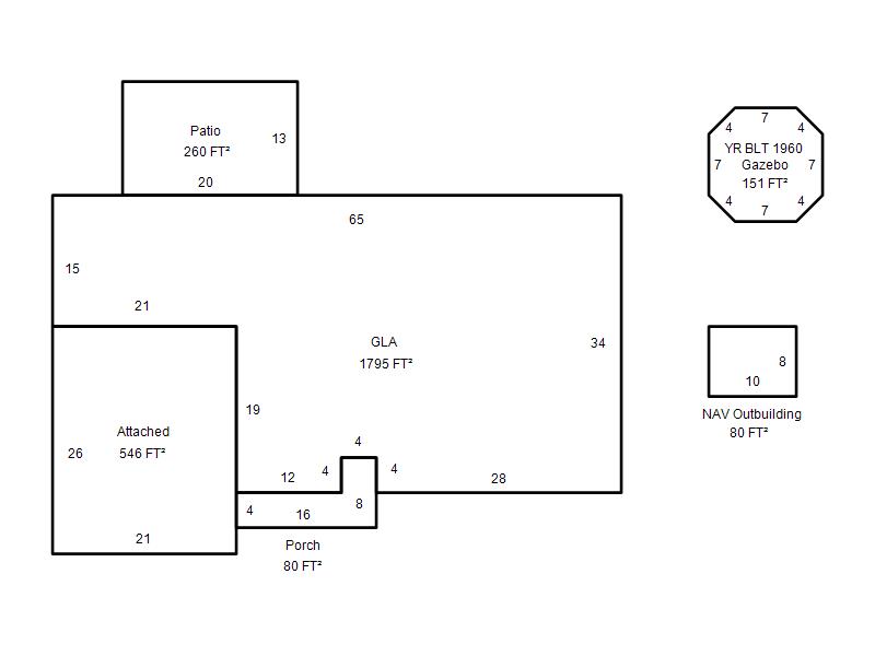
| Photo & Sketch (if available) | Comp Sales (ordered by relevancy) |
|
||||||||||||||||||
|
||||||||||||||||||||
| Value History (*The County Treasurer 405-713-1300 posts & collects actual tax amounts. Contact information HERE) | |||||||||||||
|---|---|---|---|---|---|---|---|---|---|---|---|---|---|
| Year | Market Value | Taxable Mkt Value | Gross Assessed | Exemption | Net Assessed | Millage | Est. Tax | Tax Savings | |||||
|
2025 |
219,500 |
196,287 |
21,591 |
0 |
21,591 |
123.17 |
$2,659 |
$315 |
|||||
|
2024 |
216,000 |
186,940 |
20,563 |
0 |
20,563 |
122.30 |
$2,515 |
$391 |
|||||
|
2023 |
207,000 |
178,039 |
19,583 |
0 |
19,583 |
121.91 |
$2,388 |
$388 |
|||||
|
2022 |
185,000 |
169,561 |
18,650 |
0 |
18,650 |
123.41 |
$2,302 |
$210 |
|||||
|
2021 |
162,500 |
161,487 |
17,762 |
0 |
17,762 |
122.23 |
$2,171 |
$14 |
|||||
| Property Account Status/Adjustments/Exemptions | ||
|---|---|---|
| Account # | Exemption Description | Amount |
|
R147871100 |
5% Capped Account |
0 |
| Property Deed Transaction History (Recorded in the County Clerk's Office) | |||||||
|---|---|---|---|---|---|---|---|
| Date | Type | Book | Page | Price | Grantor | Grantee | |
|
11/20/2017 |
|
Deeds |
$0 |
MELTON MICHAEL R & MICKEY D TRS |
MELTON MICHAEL R TRS |
||
|
11/20/2017 |
|
Hmstd Off & |
$0 |
MELTON MICHAEL R TRS |
MELTON MANAGEMENT LLC |
||
|
6/28/2002 |
|
Deeds |
$0 |
MELTON MICHAEL R & MICKEY D |
MELTON MICHAEL R & MICKEY D TRS |
||
|
1/1/1976 |
|
Historical |
$0 |
|
MELTON MICHAEL R & MICKEY D |
||
| Last Mailed Notice of Value (N.O.V.) Information/History | ||||||||
|---|---|---|---|---|---|---|---|---|
| Year | Date | Market Value | Taxable Market Value | Gross Assessed | Exemption | Net Assessed | ||
|
2026 |
02/23/2026 |
214,500 |
206,101 |
22,670 |
0 |
22,670 |
||
|
2025 |
02/14/2025 |
219,500 |
196,287 |
21,591 |
0 |
21,591 |
||
|
2024 |
02/13/2024 |
216,000 |
186,940 |
20,563 |
0 |
20,563 |
||
|
2023 |
02/14/2023 |
207,000 |
178,039 |
19,583 |
0 |
19,583 |
||
|
2022 |
03/15/2022 |
185,000 |
169,561 |
18,650 |
0 |
18,650 |
||
| Property Building Permit History | |||||||||||
|---|---|---|---|---|---|---|---|---|---|---|---|
| Issued | Permit # | Provided by | Bldg # | Description | Est Construction Cost | Status | |||||
| No Building Permit records returned. | |||||||||||
| Click button on building number to access detailed information: | ||||||
|---|---|---|---|---|---|---|
| Bldg # | Vacant/Improved Land | Bldg Description | Year Built | SqFt | # Stories | |
|
1 |
Improved |
Ranch 1 Story |
1960 |
1,795 |
1 Stories |
|