|
|
|
| Larry Stein Oklahoma County Assessor (405) 713-1200 - Public Access System |
|
|
|
|
|
|
| Real Property Display - Screen Produced 2/28/2026 7:43:09 AM | ||||
|---|---|---|---|---|
| Account: R147871105 | Type: Residential | Location: |
5004 N VERMONT AVE |
|
| Building Name/Occupant: |
|
OKLAHOMA CITY |
||
| Owner Name 1: | RAMOS JORGE |
Parcel PIN#: |
2856-14-787-1105 |
|
| Owner Name 2: | 1/4 section #: |
2856 |
||
| Owner Name 3: | Parent Acct: |
|
||
| Billing Address: | 5004 N VERMONT AVE | Tax District: |
|
|
| City, State, Zip | OKLAHOMA CITY, OK 73112-2231 | School System: |
Putnam City #1 |
|
|
Country: (If noted) |
Land Size: |
0.2296 Acres |
||
|
Land Value: 43,000 |
|
|||
|
Sect 14-T12N-R4W Qtr NW |
BUSH HILLS 6TH SEC 2
Block
006
Lot
013
|
|||
| Full Legal Description: BUSH HILLS 6TH SEC 2 006 013 |
| Photo & Sketch (if available) | Comp Sales (ordered by relevancy) |
|
||||||||||||||||||
|
||||||||||||||||||||
| Value History (*The County Treasurer 405-713-1300 posts & collects actual tax amounts. Contact information HERE) | |||||||||||||
|---|---|---|---|---|---|---|---|---|---|---|---|---|---|
| Year | Market Value | Taxable Mkt Value | Gross Assessed | Exemption | Net Assessed | Millage | Est. Tax | Tax Savings | |||||
|
2025 |
216,500 |
187,846 |
20,662 |
0 |
20,662 |
123.17 |
$2,545 |
$388 |
|||||
|
2024 |
213,000 |
178,901 |
19,679 |
0 |
19,679 |
122.30 |
$2,407 |
$459 |
|||||
|
2023 |
199,000 |
170,382 |
18,741 |
0 |
18,741 |
121.91 |
$2,285 |
$384 |
|||||
|
2022 |
177,500 |
162,269 |
17,848 |
0 |
17,848 |
123.41 |
$2,203 |
$207 |
|||||
|
2021 |
156,000 |
154,542 |
16,999 |
0 |
16,999 |
122.23 |
$2,078 |
$20 |
|||||
| Property Account Status/Adjustments/Exemptions | ||
|---|---|---|
| Account # | Exemption Description | Amount |
|
R147871105 |
5% Capped Account |
0 |
| Property Deed Transaction History (Recorded in the County Clerk's Office) | ||||||||||
|---|---|---|---|---|---|---|---|---|---|---|
| Date | Type | Book | Page | Price | Grantor | Grantee | ||||
|
10/18/2016 |
|
Other |
$0 |
SECRETARY OF HOUSING & URBAN DEV |
RAMOS JORGE |
|||||
|
3/8/2016 |
|
Other |
$0 |
BOKF NA |
SECRETARY OF HOUSING & URBAN DEV |
|||||
|
1/25/2016 |
|
Hmstd Off & |
$0 |
DE LARA JESUS RAMOS |
BOKF NA |
|||||
|
7/5/2011 |
|
Other |
$0 |
SECRETARY OF HOUSING & URBAN DEV |
DE LARA JESUS RAMOS |
|||||
|
1/31/2011 |
|
Hmstd Off & |
$0 |
YORK KAMERON |
SECRETARY OF HOUSING & URBAN DEV |
|||||
| Last Mailed Notice of Value (N.O.V.) Information/History | ||||||||
|---|---|---|---|---|---|---|---|---|
| Year | Date | Market Value | Taxable Market Value | Gross Assessed | Exemption | Net Assessed | ||
|
2026 |
02/23/2026 |
212,000 |
197,238 |
21,696 |
0 |
21,696 |
||
|
2025 |
02/14/2025 |
216,500 |
187,846 |
20,662 |
0 |
20,662 |
||
|
2024 |
02/13/2024 |
213,000 |
178,901 |
19,679 |
0 |
19,679 |
||
|
2023 |
02/14/2023 |
199,000 |
170,382 |
18,741 |
0 |
18,741 |
||
|
2022 |
03/15/2022 |
177,500 |
162,269 |
17,848 |
0 |
17,848 |
||
| Property Building Permit History | |||||||||||
|---|---|---|---|---|---|---|---|---|---|---|---|
| Issued | Permit # | Provided by | Bldg # | Description | Est Construction Cost | Status | |||||
| No Building Permit records returned. | |||||||||||
| Click button on building number to access detailed information: | ||||||
|---|---|---|---|---|---|---|
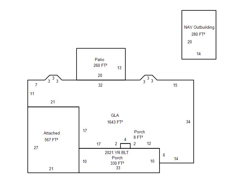
| Bldg # | Vacant/Improved Land | Bldg Description | Year Built | SqFt | # Stories | |
|
1 |
Improved |
Ranch 1 Story |
1961 |
1,643 |
1 Stories |
|