|
|
|
| Larry Stein Oklahoma County Assessor (405) 713-1200 - Public Access System |
|
|
|
|
|
|
| Real Property Display - Screen Produced 2/28/2026 7:42:33 AM | ||||
|---|---|---|---|---|
| Account: R147871115 | Type: Residential | Location: |
5012 N VERMONT AVE |
|
| Building Name/Occupant: |
|
OKLAHOMA CITY |
||
| Owner Name 1: | KONARIK ALFRED |
Parcel PIN#: |
2856-14-787-1115 |
|
| Owner Name 2: | 1/4 section #: |
2856 |
||
| Owner Name 3: | Parent Acct: |
|
||
| Billing Address: | 5012 N VERMONT AVE | Tax District: |
|
|
| City, State, Zip | OKLAHOMA CITY, OK 73112-2231 | School System: |
Putnam City #1 |
|
|
Country: (If noted) |
Land Size: |
0.2590 Acres |
||
|
Land Value: 48,521 |
|
|||
|
Sect 14-T12N-R4W Qtr NW |
BUSH HILLS 6TH SEC 2
Block
006
Lot
015
|
|||
| Full Legal Description: BUSH HILLS 6TH SEC 2 006 015 |
| Photo & Sketch (if available) | Comp Sales (ordered by relevancy) |
|
||||||||||||||||||
|
||||||||||||||||||||
| Value History (*The County Treasurer 405-713-1300 posts & collects actual tax amounts. Contact information HERE) | |||||||||||||
|---|---|---|---|---|---|---|---|---|---|---|---|---|---|
| Year | Market Value | Taxable Mkt Value | Gross Assessed | Exemption | Net Assessed | Millage | Est. Tax | Tax Savings | |||||
|
2025 |
201,500 |
117,627 |
12,938 |
1,000 |
11,938 |
123.17 |
$1,471 |
$1,260 |
|||||
|
2024 |
197,500 |
117,627 |
12,938 |
1,000 |
11,938 |
122.30 |
$1,460 |
$1,197 |
|||||
|
2023 |
189,500 |
117,627 |
12,938 |
1,000 |
11,938 |
121.91 |
$1,455 |
$1,086 |
|||||
|
2022 |
167,000 |
117,627 |
12,938 |
1,000 |
11,938 |
123.41 |
$1,473 |
$794 |
|||||
|
2021 |
145,000 |
117,627 |
12,938 |
1,000 |
11,938 |
122.23 |
$1,459 |
$490 |
|||||
| Property Account Status/Adjustments/Exemptions | ||
|---|---|---|
| Account # | Exemption Description | Amount |
|
R147871115 |
3% Cap Homestead |
0 |
|
R147871115 |
Freeze Senior Valuation |
0 |
|
R147871115 |
Homestead |
1,000 |
| Property Deed Transaction History (Recorded in the County Clerk's Office) | |||||||
|---|---|---|---|---|---|---|---|
| Date | Type | Book | Page | Price | Grantor | Grantee | |
|
7/23/2010 |
|
Deeds |
$124,000 |
FINK JOHN S & DONNA H |
KONARIK ALFRED |
||
|
9/24/2007 |
|
Deeds |
$120,000 |
CULLERS MERLE FAYE TRS CULLERS MERLE F TRUST |
FINK JOHN S & DONNA H |
||
|
3/25/1996 |
|
Historical |
$0 |
TYSON MERLE F |
CULLERS MERLE FAYE TRS |
||
|
7/1/1977 |
|
Historical |
$0 |
|
TYSON MERLE F |
||
| Last Mailed Notice of Value (N.O.V.) Information/History | ||||||||
|---|---|---|---|---|---|---|---|---|
| Year | Date | Market Value | Taxable Market Value | Gross Assessed | Exemption | Net Assessed | ||
|
2025 |
02/14/2025 |
201,500 |
117,627 |
12,938 |
1,000 |
11,938 |
||
|
2024 |
02/13/2024 |
197,500 |
117,627 |
12,938 |
1,000 |
11,938 |
||
|
2023 |
02/14/2023 |
189,500 |
117,627 |
12,938 |
1,000 |
11,938 |
||
|
2022 |
03/15/2022 |
167,000 |
117,627 |
12,938 |
1,000 |
11,938 |
||
|
2021 |
03/19/2021 |
145,000 |
117,627 |
12,938 |
1,000 |
11,938 |
||
| Property Building Permit History | |||||||||||
|---|---|---|---|---|---|---|---|---|---|---|---|
| Issued | Permit # | Provided by | Bldg # | Description | Est Construction Cost | Status | |||||
| No Building Permit records returned. | |||||||||||
| Click button on building number to access detailed information: | ||||||
|---|---|---|---|---|---|---|
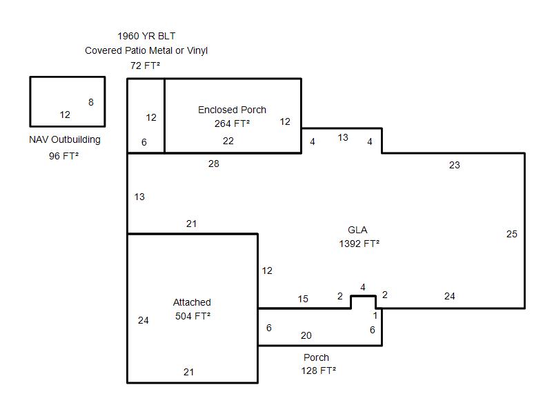
| Bldg # | Vacant/Improved Land | Bldg Description | Year Built | SqFt | # Stories | |
|
1 |
Improved |
Ranch 1 Story |
1960 |
1,392 |
1 Stories |
|