|
|
|
| Larry Stein Oklahoma County Assessor (405) 713-1200 - Public Access System |
|
|
|
|
|
|
| Real Property Display - Screen Produced 2/28/2026 7:43:09 AM | ||||
|---|---|---|---|---|
| Account: R147871205 | Type: Residential | Location: |
5012 N UTAH AVE |
|
| Building Name/Occupant: |
|
OKLAHOMA CITY |
||
| Owner Name 1: | ROSS NORMA L CO TRS |
Parcel PIN#: |
2856-14-787-1205 |
|
| Owner Name 2: | ROSS JOHN L CO TRS | 1/4 section #: |
2856 |
|
| Owner Name 3: | ROSS NORMA L REV LIVING TRUST | Parent Acct: |
|
|
| Billing Address: | 2400 N LINCOLN BLVD, Unit SEQUOYAH BUILDING | Tax District: |
|
|
| City, State, Zip | OKLAHOMA CITY, OK 73105 | School System: |
Putnam City #1 |
|
|
Country: (If noted) |
Land Size: |
0.2071 Acres |
||
|
Land Value: 38,786 |
|
|||
|
Sect 14-T12N-R4W Qtr NW |
BUSH HILLS 6TH SEC 2
Block
007
Lot
017
|
|||
| Full Legal Description: BUSH HILLS 6TH SEC 2 007 017 |
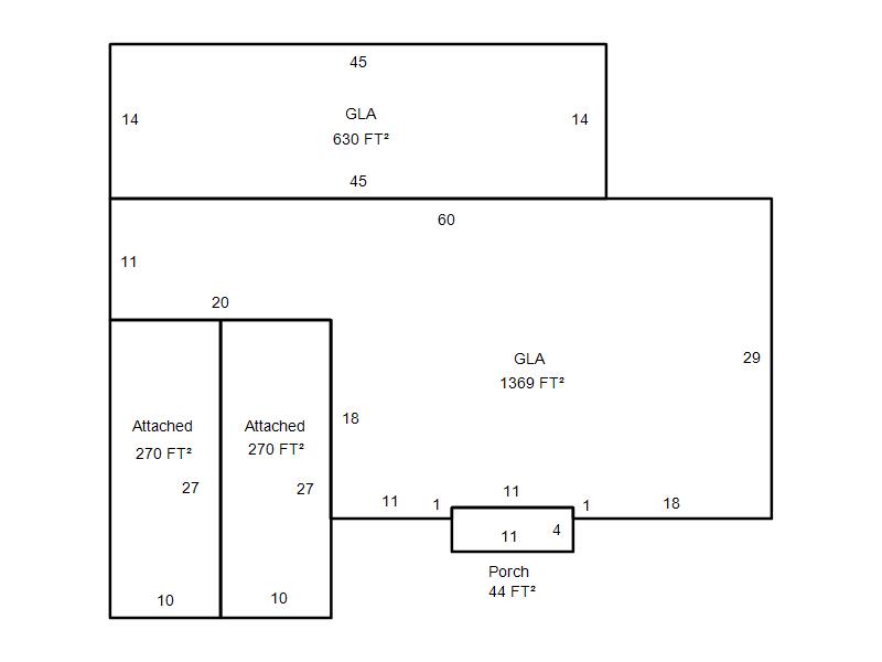
| Photo & Sketch (if available) | Comp Sales (ordered by relevancy) |
|
||||||||||||||||||
|
||||||||||||||||||||
| Value History (*The County Treasurer 405-713-1300 posts & collects actual tax amounts. Contact information HERE) | |||||||||||||
|---|---|---|---|---|---|---|---|---|---|---|---|---|---|
| Year | Market Value | Taxable Mkt Value | Gross Assessed | Exemption | Net Assessed | Millage | Est. Tax | Tax Savings | |||||
|
2025 |
218,500 |
161,054 |
17,715 |
0 |
17,715 |
123.17 |
$2,182 |
$778 |
|||||
|
2024 |
215,500 |
153,385 |
16,871 |
0 |
16,871 |
122.30 |
$2,063 |
$836 |
|||||
|
2023 |
206,000 |
146,081 |
16,068 |
0 |
16,068 |
121.91 |
$1,959 |
$804 |
|||||
|
2022 |
184,500 |
139,125 |
15,303 |
0 |
15,303 |
123.41 |
$1,889 |
$616 |
|||||
|
2021 |
163,500 |
132,500 |
14,575 |
1,000 |
13,575 |
122.23 |
$1,659 |
$539 |
|||||
| Property Account Status/Adjustments/Exemptions | ||
|---|---|---|
| Account # | Exemption Description | Amount |
|
R147871205 |
5% Capped Account |
0 |
| Property Deed Transaction History (Recorded in the County Clerk's Office) | |||||||
|---|---|---|---|---|---|---|---|
| Date | Type | Book | Page | Price | Grantor | Grantee | |
|
6/4/2018 |
|
Deeds |
$0 |
ROSS FRANCIS E & NORMA L FAMILY TRUST |
ROSS NORMA L CO TRS |
||
|
2/27/2006 |
|
Deeds |
$0 |
ROSS FRANCIS E & NORMA L |
ROSS FRANCIS E & NORMA L FAMILY TRUST |
||
|
6/1/1982 |
|
Historical |
$0 |
|
ROSS FRANCIS E & NORMA L |
||
| Last Mailed Notice of Value (N.O.V.) Information/History | ||||||||
|---|---|---|---|---|---|---|---|---|
| Year | Date | Market Value | Taxable Market Value | Gross Assessed | Exemption | Net Assessed | ||
|
2026 |
02/23/2026 |
215,500 |
169,106 |
18,600 |
0 |
18,600 |
||
|
2025 |
02/14/2025 |
218,500 |
161,054 |
17,715 |
0 |
17,715 |
||
|
2024 |
02/13/2024 |
215,500 |
153,385 |
16,871 |
0 |
16,871 |
||
|
2023 |
02/14/2023 |
206,000 |
146,081 |
16,068 |
0 |
16,068 |
||
|
2022 |
03/15/2022 |
184,500 |
139,125 |
15,303 |
0 |
15,303 |
||
| Property Building Permit History | |||||||||||
|---|---|---|---|---|---|---|---|---|---|---|---|
| Issued | Permit # | Provided by | Bldg # | Description | Est Construction Cost | Status | |||||
| No Building Permit records returned. | |||||||||||
| Click button on building number to access detailed information: | ||||||
|---|---|---|---|---|---|---|
| Bldg # | Vacant/Improved Land | Bldg Description | Year Built | SqFt | # Stories | |
|
1 |
Improved |
Ranch 1 Story |
1960 |
1,999 |
1 Stories |
|