|
|
|
| Larry Stein Oklahoma County Assessor (405) 713-1200 - Public Access System |
|
|
|
|
|
|
| Real Property Display - Screen Produced 2/28/2026 7:43:09 AM | ||||
|---|---|---|---|---|
| Account: R147871275 | Type: Residential | Location: |
4908 N WARREN AVE |
|
| Building Name/Occupant: |
|
OKLAHOMA CITY |
||
| Owner Name 1: | DOMINGUEZ CESAR DAMIAN |
Parcel PIN#: |
2856-14-787-1275 |
|
| Owner Name 2: | 1/4 section #: |
2856 |
||
| Owner Name 3: | Parent Acct: |
|
||
| Billing Address: | 4908 N WARREN AVE | Tax District: |
|
|
| City, State, Zip | OKLAHOMA CITY, OK 73112-2233 | School System: |
Putnam City #1 |
|
|
Country: (If noted) |
Land Size: |
0.1849 Acres |
||
|
Land Value: 34,641 |
|
|||
|
Sect 14-T12N-R4W Qtr NW |
BUSH HILLS 6TH SEC 2
Block
008
Lot
013
|
|||
| Full Legal Description: BUSH HILLS 6TH SEC 2 008 013 |
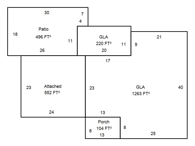
| Photo & Sketch (if available) | Comp Sales (ordered by relevancy) |
|
||||||||||||||||||
|
||||||||||||||||||||
| Value History (*The County Treasurer 405-713-1300 posts & collects actual tax amounts. Contact information HERE) | |||||||||||||
|---|---|---|---|---|---|---|---|---|---|---|---|---|---|
| Year | Market Value | Taxable Mkt Value | Gross Assessed | Exemption | Net Assessed | Millage | Est. Tax | Tax Savings | |||||
|
2025 |
212,000 |
192,717 |
21,198 |
0 |
21,198 |
123.17 |
$2,611 |
$261 |
|||||
|
2024 |
207,500 |
183,540 |
20,189 |
0 |
20,189 |
122.30 |
$2,469 |
$322 |
|||||
|
2023 |
201,500 |
174,800 |
19,227 |
0 |
19,227 |
121.91 |
$2,344 |
$358 |
|||||
|
2022 |
179,500 |
166,477 |
18,312 |
0 |
18,312 |
123.41 |
$2,260 |
$177 |
|||||
|
2021 |
159,500 |
158,550 |
17,440 |
0 |
17,440 |
122.23 |
$2,132 |
$13 |
|||||
| Property Account Status/Adjustments/Exemptions | ||
|---|---|---|
| Account # | Exemption Description | Amount |
|
R147871275 |
5% Capped Account |
0 |
| Property Deed Transaction History (Recorded in the County Clerk's Office) | |||||||
|---|---|---|---|---|---|---|---|
| Date | Type | Book | Page | Price | Grantor | Grantee | |
|
10/8/2025 |
|
Hmstd Off & |
$0 |
DOMINGUEZ MARCO A |
DOMINGUEZ CESAR DAMIAN |
||
|
11/21/2017 |
|
Deeds |
$135,000 |
SIMO HOMES LLC |
DOMINGUEZ MARCO A |
||
|
4/17/2017 |
|
Deeds |
$83,000 |
FEDERAL NATIONAL MORTGAGE ASSOCIATION |
SIMO HOMES LLC |
||
|
12/7/2016 |
|
Other |
$0 |
ATCHLEY MARTHA J |
FEDERAL NATIONAL MORTGAGE ASSOCIATION |
||
|
11/11/1911 |
|
Historical |
$0 |
|
ATCHLEY MARTHA J |
||
| Last Mailed Notice of Value (N.O.V.) Information/History | ||||||||
|---|---|---|---|---|---|---|---|---|
| Year | Date | Market Value | Taxable Market Value | Gross Assessed | Exemption | Net Assessed | ||
|
2026 |
02/23/2026 |
212,500 |
202,352 |
22,257 |
0 |
22,257 |
||
|
2025 |
02/14/2025 |
212,000 |
192,717 |
21,198 |
0 |
21,198 |
||
|
2024 |
02/13/2024 |
207,500 |
183,540 |
20,189 |
0 |
20,189 |
||
|
2023 |
02/14/2023 |
201,500 |
174,800 |
19,227 |
0 |
19,227 |
||
|
2022 |
03/15/2022 |
179,500 |
166,477 |
18,312 |
0 |
18,312 |
||
| Property Building Permit History | |||||||||||
|---|---|---|---|---|---|---|---|---|---|---|---|
| Issued | Permit # | Provided by | Bldg # | Description | Est Construction Cost | Status | |||||
| No Building Permit records returned. | |||||||||||
| Click button on building number to access detailed information: | ||||||
|---|---|---|---|---|---|---|
| Bldg # | Vacant/Improved Land | Bldg Description | Year Built | SqFt | # Stories | |
|
1 |
Improved |
Ranch 1 Story |
1961 |
1,483 |
1 Stories |
|