|
|
|
| Larry Stein Oklahoma County Assessor (405) 713-1200 - Public Access System |
|
|
|
|
|
|
| Real Property Display - Screen Produced 2/28/2026 2:56:45 AM | ||||
|---|---|---|---|---|
| Account: R188621045 | Type: Residential | Location: |
4600 N LIBBY AVE |
|
| Building Name/Occupant: |
|
WARR ACRES |
||
| Owner Name 1: | HERNANDEZ DAVID |
Parcel PIN#: |
2857-18-862-1045 |
|
| Owner Name 2: | SERNA DIAZ ADRIANA | 1/4 section #: |
2857 |
|
| Owner Name 3: | Parent Acct: |
|
||
| Billing Address: | 5956 NW 58TH TERR | Tax District: |
|
|
| City, State, Zip | WARR ACRES , OK 73122 | School System: |
Putnam City #1 |
|
|
Country: (If noted) |
Land Size: |
0.1928 Acres |
||
|
Land Value: 26,880 |
|
|||
|
Sect 15-T12N-R4W Qtr NE |
PUTNAM VILLAGE ADD
Block
001
Lot
005
|
|||
| Full Legal Description: PUTNAM VILLAGE ADD 001 005 |
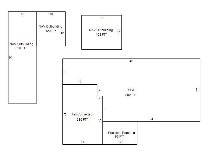
| Photo & Sketch (if available) | Comp Sales (ordered by relevancy) |
|
||||||||||||||||||
|
||||||||||||||||||||
| Value History (*The County Treasurer 405-713-1300 posts & collects actual tax amounts. Contact information HERE) | |||||||||||||
|---|---|---|---|---|---|---|---|---|---|---|---|---|---|
| Year | Market Value | Taxable Mkt Value | Gross Assessed | Exemption | Net Assessed | Millage | Est. Tax | Tax Savings | |||||
|
2025 |
112,500 |
95,081 |
10,458 |
0 |
10,458 |
115.77 |
$1,211 |
$222 |
|||||
|
2024 |
112,500 |
90,554 |
9,960 |
0 |
9,960 |
114.25 |
$1,138 |
$276 |
|||||
|
2023 |
108,500 |
86,242 |
9,485 |
0 |
9,485 |
117.84 |
$1,118 |
$289 |
|||||
|
2022 |
95,500 |
82,136 |
9,034 |
0 |
9,034 |
120.40 |
$1,088 |
$177 |
|||||
|
2021 |
81,000 |
78,225 |
8,604 |
0 |
8,604 |
119.77 |
$1,031 |
$37 |
|||||
| Property Account Status/Adjustments/Exemptions | ||
|---|---|---|
| Account # | Exemption Description | Amount |
|
R188621045 |
5% Capped Account |
0 |
| Property Deed Transaction History (Recorded in the County Clerk's Office) | |||||||
|---|---|---|---|---|---|---|---|
| Date | Type | Book | Page | Price | Grantor | Grantee | |
|
11/1/2019 |
|
Hmstd Off & |
$0 |
HERNANDEZ SALVADOR |
HERNANDEZ DAVID |
||
|
9/28/2001 |
|
Deeds |
$38,000 |
HAMILTON WILBUR E HAMILTON DALE GENE |
HERNANDEZ SALVADOR |
||
|
1/15/1998 |
|
Historical |
$0 |
HAMILTON W E & V L |
HAMILTON WILBUR E |
||
|
11/11/1911 |
|
Historical |
$0 |
|
HAMILTON W E & V L |
||
| Last Mailed Notice of Value (N.O.V.) Information/History | ||||||||
|---|---|---|---|---|---|---|---|---|
| Year | Date | Market Value | Taxable Market Value | Gross Assessed | Exemption | Net Assessed | ||
|
2026 |
02/23/2026 |
112,000 |
99,835 |
10,980 |
0 |
10,980 |
||
|
2025 |
02/14/2025 |
112,500 |
95,081 |
10,458 |
0 |
10,458 |
||
|
2024 |
02/13/2024 |
112,500 |
90,554 |
9,960 |
0 |
9,960 |
||
|
2023 |
02/14/2023 |
108,500 |
86,242 |
9,485 |
0 |
9,485 |
||
|
2022 |
03/15/2022 |
95,500 |
82,136 |
9,034 |
0 |
9,034 |
||
| Property Building Permit History | |||||||||||
|---|---|---|---|---|---|---|---|---|---|---|---|
| Issued | Permit # | Provided by | Bldg # | Description | Est Construction Cost | Status | |||||
| No Building Permit records returned. | |||||||||||
| Click button on building number to access detailed information: | ||||||
|---|---|---|---|---|---|---|
| Bldg # | Vacant/Improved Land | Bldg Description | Year Built | SqFt | # Stories | |
|
1 |
Improved |
Ranch 1 Story |
1954 |
882 |
1 Stories |
|