|
|
|
| Larry Stein Oklahoma County Assessor (405) 713-1200 - Public Access System |
|
|
|
|
|
|
| Real Property Display - Screen Produced 2/28/2026 2:53:50 AM | ||||
|---|---|---|---|---|
| Account: R188621335 | Type: Residential | Location: |
4409 N LIBBY AVE |
|
| Building Name/Occupant: |
|
WARR ACRES |
||
| Owner Name 1: | JONES GEORGIA M |
Parcel PIN#: |
2857-18-862-1335 |
|
| Owner Name 2: | 1/4 section #: |
2857 |
||
| Owner Name 3: | Parent Acct: |
|
||
| Billing Address: | 4409 N LIBBY AVE | Tax District: |
|
|
| City, State, Zip | WARR ACRES, OK 73122-4425 | School System: |
Putnam City #1 |
|
|
Country: (If noted) |
Land Size: |
0.1896 Acres |
||
|
Land Value: 26,432 |
|
|||
|
Sect 15-T12N-R4W Qtr NE |
PUTNAM VILLAGE ADD
Block
002
Lot
013
|
|||
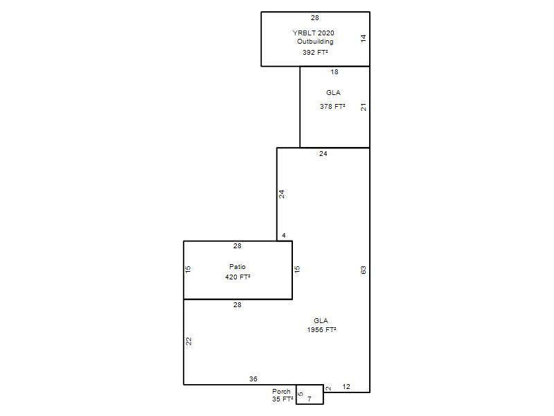
| Full Legal Description: PUTNAM VILLAGE ADD 002 013 |
| Photo & Sketch (if available) | Comp Sales (ordered by relevancy) |
|
||||||||||||||||||
|
||||||||||||||||||||
| Value History (*The County Treasurer 405-713-1300 posts & collects actual tax amounts. Contact information HERE) | |||||||||||||
|---|---|---|---|---|---|---|---|---|---|---|---|---|---|
| Year | Market Value | Taxable Mkt Value | Gross Assessed | Exemption | Net Assessed | Millage | Est. Tax | Tax Savings | |||||
|
2025 |
200,000 |
125,647 |
13,821 |
1,000 |
12,821 |
115.77 |
$1,484 |
$1,063 |
|||||
|
2024 |
194,000 |
125,647 |
13,821 |
1,000 |
12,821 |
114.25 |
$1,465 |
$973 |
|||||
|
2023 |
181,000 |
125,647 |
13,821 |
1,000 |
12,821 |
117.84 |
$1,511 |
$835 |
|||||
|
2022 |
161,000 |
125,647 |
13,821 |
1,000 |
12,821 |
120.40 |
$1,544 |
$589 |
|||||
|
2021 |
139,000 |
125,647 |
13,820 |
1,000 |
12,820 |
119.77 |
$1,536 |
$296 |
|||||
| Property Account Status/Adjustments/Exemptions | ||
|---|---|---|
| Account # | Exemption Description | Amount |
|
R188621335 |
5% Capped Account |
0 |
| Property Deed Transaction History (Recorded in the County Clerk's Office) | |||||||
|---|---|---|---|---|---|---|---|
| Date | Type | Book | Page | Price | Grantor | Grantee | |
|
10/29/2025 |
|
Deeds |
$0 |
JONES GEORGIA M |
JONES GEORGIA M |
||
|
12/3/2021 |
|
Deeds |
$0 |
JONES GEORGIA M TRS |
JONES GEORGIA M |
||
|
10/16/2017 |
|
Deeds |
$0 |
JONES JOSEPH F & GEORGIA M TRS |
JONES GEORGIA M TRS |
||
|
4/28/2010 |
|
Deeds |
$0 |
JONES J F & GEORGIA |
JONES JOSEPH F & GEORGIA M TRS |
||
|
11/11/1911 |
|
Historical |
$0 |
|
JONES J F & GEORGIA |
||
| Last Mailed Notice of Value (N.O.V.) Information/History | ||||||||
|---|---|---|---|---|---|---|---|---|
| Year | Date | Market Value | Taxable Market Value | Gross Assessed | Exemption | Net Assessed | ||
|
2026 |
02/23/2026 |
198,500 |
131,929 |
14,512 |
0 |
14,512 |
||
|
2025 |
02/14/2025 |
200,000 |
125,647 |
13,821 |
1,000 |
12,821 |
||
|
2024 |
02/13/2024 |
194,000 |
125,647 |
13,821 |
1,000 |
12,821 |
||
|
2023 |
02/14/2023 |
181,000 |
125,647 |
13,821 |
1,000 |
12,821 |
||
|
2022 |
03/15/2022 |
161,000 |
125,647 |
13,821 |
1,000 |
12,821 |
||
| Property Building Permit History | |||||||||||
|---|---|---|---|---|---|---|---|---|---|---|---|
| Issued | Permit # | Provided by | Bldg # | Description | Est Construction Cost | Status | |||||
| No Building Permit records returned. | |||||||||||
| Click button on building number to access detailed information: | ||||||
|---|---|---|---|---|---|---|
| Bldg # | Vacant/Improved Land | Bldg Description | Year Built | SqFt | # Stories | |
|
1 |
Improved |
Ranch 1 Story |
1953 |
2,334 |
1 Stories |
|