|
|
|
| Larry Stein Oklahoma County Assessor (405) 713-1200 - Public Access System |
|
|
|
|
|
|
| Real Property Display - Screen Produced 2/28/2026 2:53:50 AM | ||||
|---|---|---|---|---|
| Account: R188621445 | Type: Residential | Location: |
4608 N STANLEY AVE |
|
| Building Name/Occupant: |
|
WARR ACRES |
||
| Owner Name 1: | DOUGHTY VERA LAURINE |
Parcel PIN#: |
2857-18-862-1445 |
|
| Owner Name 2: | 1/4 section #: |
2857 |
||
| Owner Name 3: | Parent Acct: |
|
||
| Billing Address: | 4608 N STANLEY AVE | Tax District: |
|
|
| City, State, Zip | WARR ACRES, OK 73122-4522 | School System: |
Putnam City #1 |
|
|
Country: (If noted) |
Land Size: |
0.1928 Acres |
||
|
Land Value: 26,880 |
|
|||
|
Sect 15-T12N-R4W Qtr NE |
PUTNAM VILLAGE ADD
Block
003
Lot
003
|
|||
| Full Legal Description: PUTNAM VILLAGE ADD 003 003 |
| Photo & Sketch (if available) | Comp Sales (ordered by relevancy) |
|
||||||||||||||||||
|
||||||||||||||||||||
| Value History (*The County Treasurer 405-713-1300 posts & collects actual tax amounts. Contact information HERE) | |||||||||||||
|---|---|---|---|---|---|---|---|---|---|---|---|---|---|
| Year | Market Value | Taxable Mkt Value | Gross Assessed | Exemption | Net Assessed | Millage | Est. Tax | Tax Savings | |||||
|
2025 |
124,500 |
89,018 |
9,791 |
1,000 |
8,791 |
115.77 |
$1,018 |
$568 |
|||||
|
2024 |
122,500 |
86,426 |
9,505 |
1,000 |
8,505 |
114.25 |
$972 |
$568 |
|||||
|
2023 |
117,500 |
83,909 |
9,229 |
1,000 |
8,229 |
117.84 |
$970 |
$553 |
|||||
|
2022 |
104,500 |
81,466 |
8,961 |
1,000 |
7,961 |
120.40 |
$959 |
$425 |
|||||
|
2021 |
89,000 |
79,094 |
8,700 |
1,000 |
7,700 |
119.77 |
$922 |
$250 |
|||||
| Property Account Status/Adjustments/Exemptions | ||
|---|---|---|
| Account # | Exemption Description | Amount |
|
R188621445 |
3% Cap Homestead |
0 |
|
R188621445 |
Homestead |
1,000 |
| Property Deed Transaction History (Recorded in the County Clerk's Office) | |||||||
|---|---|---|---|---|---|---|---|
| Date | Type | Book | Page | Price | Grantor | Grantee | |
|
3/1/1985 |
|
Historical |
$0 |
|
DOUGHTY VERA LAURINE |
||
| Last Mailed Notice of Value (N.O.V.) Information/History | ||||||||
|---|---|---|---|---|---|---|---|---|
| Year | Date | Market Value | Taxable Market Value | Gross Assessed | Exemption | Net Assessed | ||
|
2026 |
02/23/2026 |
122,000 |
91,688 |
10,084 |
1,000 |
9,084 |
||
|
2025 |
02/14/2025 |
124,500 |
89,018 |
9,791 |
1,000 |
8,791 |
||
|
2024 |
02/13/2024 |
122,500 |
86,426 |
9,505 |
1,000 |
8,505 |
||
|
2023 |
02/14/2023 |
117,500 |
83,909 |
9,229 |
1,000 |
8,229 |
||
|
2022 |
03/15/2022 |
104,500 |
81,466 |
8,961 |
1,000 |
7,961 |
||
| Property Building Permit History | |||||||||||
|---|---|---|---|---|---|---|---|---|---|---|---|
| Issued | Permit # | Provided by | Bldg # | Description | Est Construction Cost | Status | |||||
| No Building Permit records returned. | |||||||||||
| Click button on building number to access detailed information: | ||||||
|---|---|---|---|---|---|---|
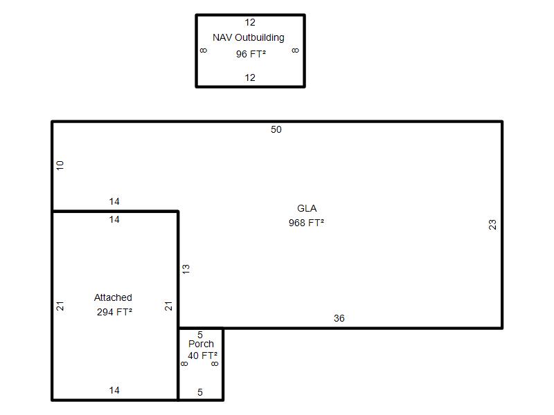
| Bldg # | Vacant/Improved Land | Bldg Description | Year Built | SqFt | # Stories | |
|
1 |
Improved |
Ranch 1 Story |
1955 |
968 |
1 Stories |
|