|
|
|
| Larry Stein Oklahoma County Assessor (405) 713-1200 - Public Access System |
|
|
|
|
|
|
| Real Property Display - Screen Produced 2/28/2026 2:53:50 AM | ||||
|---|---|---|---|---|
| Account: R188971175 | Type: Residential | Location: |
5304 NW 45TH ST |
|
| Building Name/Occupant: |
|
WARR ACRES |
||
| Owner Name 1: | BMG PROPERTIES LLC |
Parcel PIN#: |
2857-18-897-1175 |
|
| Owner Name 2: | 1/4 section #: |
2857 |
||
| Owner Name 3: | Parent Acct: |
|
||
| Billing Address: | PO BOX 8604 | Tax District: |
|
|
| City, State, Zip | EDMOND, OK 73083 | School System: |
Putnam City #1 |
|
|
Country: (If noted) |
Land Size: |
0.2242 Acres |
||
|
Land Value: 31,258 |
|
|||
|
Sect 15-T12N-R4W Qtr NE |
SHAMROCK 3RD ADD
Block
002
Lot
002
|
|||
| Full Legal Description: SHAMROCK 3RD ADD 002 002 |
| Photo & Sketch (if available) | Comp Sales (ordered by relevancy) |
|
||||||||||||||||||
|
||||||||||||||||||||
| Value History (*The County Treasurer 405-713-1300 posts & collects actual tax amounts. Contact information HERE) | |||||||||||||
|---|---|---|---|---|---|---|---|---|---|---|---|---|---|
| Year | Market Value | Taxable Mkt Value | Gross Assessed | Exemption | Net Assessed | Millage | Est. Tax | Tax Savings | |||||
|
2025 |
123,000 |
123,000 |
13,530 |
0 |
13,530 |
115.77 |
$1,566 |
$0 |
|||||
|
2024 |
120,500 |
120,500 |
13,255 |
0 |
13,255 |
114.25 |
$1,514 |
$0 |
|||||
|
2023 |
115,500 |
115,500 |
12,705 |
0 |
12,705 |
117.84 |
$1,497 |
$0 |
|||||
|
2022 |
103,000 |
91,162 |
10,026 |
0 |
10,026 |
120.40 |
$1,207 |
$157 |
|||||
|
2021 |
88,000 |
86,821 |
9,549 |
0 |
9,549 |
119.77 |
$1,144 |
$16 |
|||||
| Property Account Status/Adjustments/Exemptions | ||
|---|---|---|
| Account # | Exemption Description | Amount |
|
R188971175 |
5% Capped Account |
0 |
| Property Deed Transaction History (Recorded in the County Clerk's Office) | ||||||||||
|---|---|---|---|---|---|---|---|---|---|---|
| Date | Type | Book | Page | Price | Grantor | Grantee | ||||
|
1/28/2022 |
|
Deeds |
$97,000 |
BUY HOUSES LLC |
BMG PROPERTIES LLC |
|||||
|
1/3/2022 |
|
Hmstd Off & |
$0 |
ANDERSON PEARLIE MAE |
ANDERSON MARCUS |
|||||
|
1/3/2022 |
|
Deeds |
$54,000 |
ANDERSON MARCUS |
BUY HOUSES LLC |
|||||
|
7/18/2005 |
|
Deeds |
$0 |
ANDERSON PEARLIE MAE |
ANDERSON PEARLIE MAE ANDERSON MARCUS D SR |
|||||
|
7/18/2005 |
|
Deeds |
$0 |
ANDERSON PEARLIE MAE ANDERSON MARCUS DWAYNE SR |
ANDERSON PEARLIE MAE |
|||||
| Last Mailed Notice of Value (N.O.V.) Information/History | ||||||||
|---|---|---|---|---|---|---|---|---|
| Year | Date | Market Value | Taxable Market Value | Gross Assessed | Exemption | Net Assessed | ||
|
2025 |
02/14/2025 |
123,000 |
123,000 |
13,530 |
0 |
13,530 |
||
|
2024 |
02/13/2024 |
120,500 |
120,500 |
13,255 |
0 |
13,255 |
||
|
2023 |
02/14/2023 |
115,500 |
115,500 |
12,705 |
0 |
12,705 |
||
|
2022 |
03/15/2022 |
103,000 |
91,162 |
10,026 |
0 |
10,026 |
||
|
2021 |
03/19/2021 |
88,000 |
86,821 |
9,550 |
0 |
9,550 |
||
| Property Building Permit History | |||||||||||
|---|---|---|---|---|---|---|---|---|---|---|---|
| Issued | Permit # | Provided by | Bldg # | Description | Est Construction Cost | Status | |||||
| No Building Permit records returned. | |||||||||||
| Click button on building number to access detailed information: | ||||||
|---|---|---|---|---|---|---|
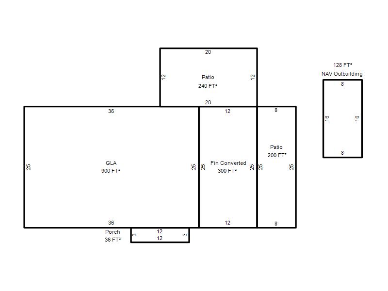
| Bldg # | Vacant/Improved Land | Bldg Description | Year Built | SqFt | # Stories | |
|
1 |
Improved |
Ranch 1 Story |
1954 |
900 |
1 Stories |
|