|
|
|
| Larry Stein Oklahoma County Assessor (405) 713-1200 - Public Access System |
|
|
|
|
|
|
| Real Property Display - Screen Produced 2/28/2026 7:46:48 AM | ||||
|---|---|---|---|---|
| Account: R145231110 | Type: Residential | Location: |
4120 N NICKLAS AVE |
|
| Building Name/Occupant: |
|
OKLAHOMA CITY |
||
| Owner Name 1: | PIKE KELLY & TARISHA |
Parcel PIN#: |
2858-14-523-1110 |
|
| Owner Name 2: | 1/4 section #: |
2858 |
||
| Owner Name 3: | Parent Acct: |
|
||
| Billing Address: | 4120 N NICKLAS AVE | Tax District: |
|
|
| City, State, Zip | OKLAHOMA CITY, OK 73122-3518 | School System: |
Putnam City #1 |
|
|
Country: (If noted) |
Land Size: |
0.1736 Acres |
||
|
Land Value: 27,216 |
|
|||
|
Sect 15-T12N-R4W Qtr SE |
WESTRIDGE 2ND
Block
001
Lot
012
|
|||
| Full Legal Description: WESTRIDGE 2ND 001 012 |
| Photo & Sketch (if available) | Comp Sales (ordered by relevancy) |
|
||||||||||||||||||
|
||||||||||||||||||||
| Value History (*The County Treasurer 405-713-1300 posts & collects actual tax amounts. Contact information HERE) | |||||||||||||
|---|---|---|---|---|---|---|---|---|---|---|---|---|---|
| Year | Market Value | Taxable Mkt Value | Gross Assessed | Exemption | Net Assessed | Millage | Est. Tax | Tax Savings | |||||
|
2025 |
196,500 |
142,713 |
15,698 |
1,000 |
14,698 |
123.17 |
$1,810 |
$852 |
|||||
|
2024 |
194,500 |
138,557 |
15,240 |
1,000 |
14,240 |
122.30 |
$1,742 |
$875 |
|||||
|
2023 |
187,500 |
134,522 |
14,796 |
1,000 |
13,796 |
121.91 |
$1,682 |
$832 |
|||||
|
2022 |
167,500 |
130,604 |
14,365 |
1,000 |
13,365 |
123.41 |
$1,650 |
$624 |
|||||
|
2021 |
144,000 |
126,800 |
13,947 |
1,000 |
12,947 |
122.23 |
$1,583 |
$353 |
|||||
| Property Account Status/Adjustments/Exemptions | ||
|---|---|---|
| Account # | Exemption Description | Amount |
|
R145231110 |
3% Cap Homestead |
0 |
|
R145231110 |
Homestead |
1,000 |
| Property Deed Transaction History (Recorded in the County Clerk's Office) | |||||||
|---|---|---|---|---|---|---|---|
| Date | Type | Book | Page | Price | Grantor | Grantee | |
|
4/25/2014 |
|
Deeds |
$106,000 |
OLMSTEAD JARED D |
PIKE KELLY & TARISHA |
||
|
2/19/2013 |
|
Deeds |
$42,000 |
TUCKER DIANA LYNN |
OLMSTEAD JARED D |
||
|
9/22/2008 |
|
Deeds |
$50,000 |
MEIKI KAMAL & JOYCE |
TUCKER DIANA LYNN |
||
|
9/1/1984 |
|
Historical |
$0 |
|
MEIKI KAMAL & JOYCE |
||
| Last Mailed Notice of Value (N.O.V.) Information/History | ||||||||
|---|---|---|---|---|---|---|---|---|
| Year | Date | Market Value | Taxable Market Value | Gross Assessed | Exemption | Net Assessed | ||
|
2026 |
02/23/2026 |
194,000 |
146,994 |
16,168 |
1,000 |
15,168 |
||
|
2025 |
02/14/2025 |
196,500 |
142,713 |
15,698 |
1,000 |
14,698 |
||
|
2024 |
02/13/2024 |
194,500 |
138,557 |
15,240 |
1,000 |
14,240 |
||
|
2023 |
02/14/2023 |
187,500 |
134,522 |
14,796 |
1,000 |
13,796 |
||
|
2022 |
03/15/2022 |
167,500 |
130,604 |
14,365 |
1,000 |
13,365 |
||
| Property Building Permit History | |||||||||||
|---|---|---|---|---|---|---|---|---|---|---|---|
| Issued | Permit # | Provided by | Bldg # | Description | Est Construction Cost | Status | |||||
| No Building Permit records returned. | |||||||||||
| Click button on building number to access detailed information: | ||||||
|---|---|---|---|---|---|---|
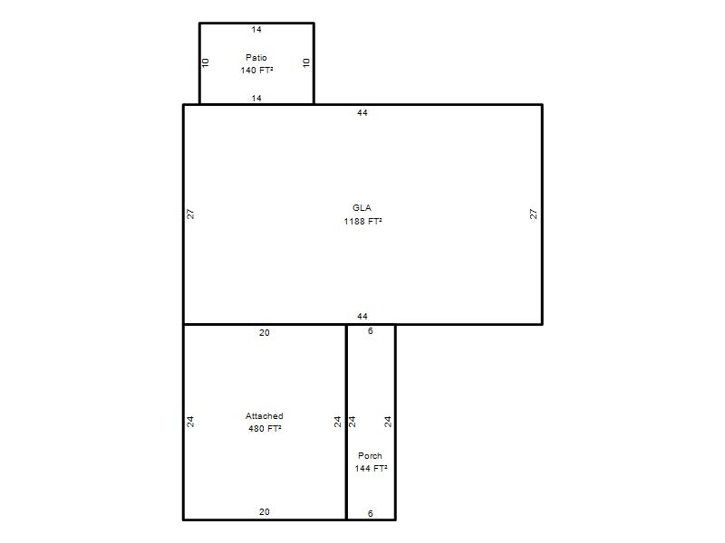
| Bldg # | Vacant/Improved Land | Bldg Description | Year Built | SqFt | # Stories | |
|
1 |
Improved |
Ranch 1 Story |
1963 |
1,188 |
1 Stories |
|