|
|
|
| Larry Stein Oklahoma County Assessor (405) 713-1200 - Public Access System |
|
|
|
|
|
|
| Real Property Display - Screen Produced 2/27/2026 9:47:46 PM | ||||
|---|---|---|---|---|
| Account: R188703270 | Type: Residential | Location: |
4714 N GROVE AVE |
|
| Building Name/Occupant: |
|
WARR ACRES |
||
| Owner Name 1: | AVILA HORACIO & GABRIELA DELOERA DE |
Parcel PIN#: |
2860-18-870-3270 |
|
| Owner Name 2: | 1/4 section #: |
2860 |
||
| Owner Name 3: | Parent Acct: |
|
||
| Billing Address: | 4714 N GROVE AVE | Tax District: |
|
|
| City, State, Zip | WARR ACRES, OK 73122-5115 | School System: |
Putnam City #1 |
|
|
Country: (If noted) |
Land Size: |
0.4200 Acres |
||
|
Land Value: 28,560 |
|
|||
|
Sect 15-T12N-R4W Qtr NW |
COCKRELLS PLAINVIEW
Block
012
Lot
000
|
|||
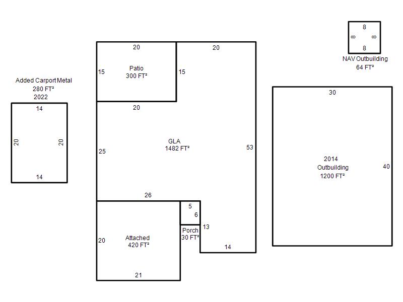
| Full Legal Description: COCKRELLS PLAINVIEW 012 000 N62FT OF W 1/2 |
| Photo & Sketch (if available) | Comp Sales (ordered by relevancy) |
|
||||||||||||||||||
|
||||||||||||||||||||
| Value History (*The County Treasurer 405-713-1300 posts & collects actual tax amounts. Contact information HERE) | |||||||||||||
|---|---|---|---|---|---|---|---|---|---|---|---|---|---|
| Year | Market Value | Taxable Mkt Value | Gross Assessed | Exemption | Net Assessed | Millage | Est. Tax | Tax Savings | |||||
|
2025 |
312,500 |
268,874 |
29,575 |
0 |
29,575 |
115.77 |
$3,424 |
$556 |
|||||
|
2024 |
314,000 |
256,071 |
28,166 |
0 |
28,166 |
114.25 |
$3,218 |
$728 |
|||||
|
2023 |
300,500 |
240,544 |
26,458 |
0 |
26,458 |
117.84 |
$3,118 |
$777 |
|||||
|
2022 |
267,000 |
229,090 |
25,198 |
0 |
25,198 |
120.40 |
$3,034 |
$502 |
|||||
|
2021 |
233,000 |
218,181 |
23,999 |
0 |
23,999 |
119.77 |
$2,874 |
$195 |
|||||
| Property Account Status/Adjustments/Exemptions | ||
|---|---|---|
| Account # | Exemption Description | Amount |
|
R188703270 |
5% Capped Account |
0 |
| Property Deed Transaction History (Recorded in the County Clerk's Office) | ||||||||||
|---|---|---|---|---|---|---|---|---|---|---|
| Date | Type | Book | Page | Price | Grantor | Grantee | ||||
|
3/14/2014 |
|
Deeds |
$155,000 |
ALVAREZ JAIME |
AVILA HORACIO & GABRIELA DELOERA DE |
|||||
|
1/16/2013 |
|
Deeds |
$19,500 |
HERNANDEZ JAIME |
ALVAREZ JAIME |
|||||
|
1/10/2013 |
|
Deeds |
$0 |
JOURNAL ENTRY OF JUDGMENT |
HERNANDEZ JAIME |
|||||
|
10/4/2009 |
|
Deeds |
$15,000 |
WESTWARD ENTERPRISES |
HERNANDEZ JAIME |
|||||
|
9/2/2009 |
|
Other |
$0 |
OKLAHOMA COUNTY |
WESTWARD ENTERPRISES |
|||||
| Last Mailed Notice of Value (N.O.V.) Information/History | ||||||||
|---|---|---|---|---|---|---|---|---|
| Year | Date | Market Value | Taxable Market Value | Gross Assessed | Exemption | Net Assessed | ||
|
2026 |
02/23/2026 |
313,000 |
282,317 |
31,054 |
0 |
31,054 |
||
|
2025 |
02/14/2025 |
312,500 |
268,874 |
29,575 |
0 |
29,575 |
||
|
2024 |
03/01/2024 |
314,000 |
256,071 |
28,166 |
0 |
28,166 |
||
|
2023 |
02/14/2023 |
300,500 |
240,544 |
26,458 |
0 |
26,458 |
||
|
2022 |
03/15/2022 |
267,000 |
229,090 |
25,198 |
0 |
25,198 |
||
| Property Building Permit History | |||||||||||
|---|---|---|---|---|---|---|---|---|---|---|---|
| Issued | Permit # | Provided by | Bldg # | Description | Est Construction Cost | Status | |||||
| No Building Permit records returned. | |||||||||||
| Click button on building number to access detailed information: | ||||||
|---|---|---|---|---|---|---|
| Bldg # | Vacant/Improved Land | Bldg Description | Year Built | SqFt | # Stories | |
|
1 |
Improved |
Ranch 1 Story |
2014 |
1,482 |
1 Stories |
|