|
|
|
| Larry Stein Oklahoma County Assessor (405) 713-1200 - Public Access System |
|
|
|
|
|
|
| Real Property Display - Screen Produced 2/27/2026 9:47:46 PM | ||||
|---|---|---|---|---|
| Account: R188709515 | Type: Residential | Location: |
4302 N WALL ST |
|
| Building Name/Occupant: |
|
WARR ACRES |
||
| Owner Name 1: | JKLR HOLDINGS LLC |
Parcel PIN#: |
2860-18-870-9515 |
|
| Owner Name 2: | 1/4 section #: |
2860 |
||
| Owner Name 3: | Parent Acct: |
|
||
| Billing Address: | 3201 N WILBURN AVE | Tax District: |
|
|
| City, State, Zip | BETHANY, OK 73008 | School System: |
Putnam City #1 |
|
|
Country: (If noted) |
Land Size: |
0.3100 Acres |
||
|
Land Value: 21,080 |
|
|||
|
Sect 15-T12N-R4W Qtr NW |
COCKRELLS PLAINVIEW
Block
031
Lot
000
|
|||
| Full Legal Description: COCKRELLS PLAINVIEW 031 000 PT OF BLK 31 BEG 150FT N OF SE/C TH W144.60FT N93.95FT E144.61FT S94.07FT TO BEG |
| Photo & Sketch (if available) | Comp Sales (ordered by relevancy) |
|
||||||||||||||||||
|
||||||||||||||||||||
| Value History (*The County Treasurer 405-713-1300 posts & collects actual tax amounts. Contact information HERE) | |||||||||||||
|---|---|---|---|---|---|---|---|---|---|---|---|---|---|
| Year | Market Value | Taxable Mkt Value | Gross Assessed | Exemption | Net Assessed | Millage | Est. Tax | Tax Savings | |||||
|
2025 |
166,500 |
138,476 |
15,232 |
0 |
15,232 |
115.77 |
$1,763 |
$357 |
|||||
|
2024 |
163,000 |
131,882 |
14,506 |
0 |
14,506 |
114.25 |
$1,657 |
$391 |
|||||
|
2023 |
155,000 |
125,602 |
13,815 |
0 |
13,815 |
117.84 |
$1,628 |
$381 |
|||||
|
2022 |
135,500 |
119,621 |
13,157 |
0 |
13,157 |
120.40 |
$1,584 |
$210 |
|||||
|
2021 |
114,500 |
113,925 |
12,531 |
0 |
12,531 |
119.77 |
$1,501 |
$8 |
|||||
| Property Account Status/Adjustments/Exemptions | ||
|---|---|---|
| Account # | Exemption Description | Amount |
|
R188709515 |
5% Capped Account |
0 |
| Property Deed Transaction History (Recorded in the County Clerk's Office) | |||||||
|---|---|---|---|---|---|---|---|
| Date | Type | Book | Page | Price | Grantor | Grantee | |
|
1/28/2015 |
|
Deeds |
$0 |
PRITCHETT WILLIAM R & SHIRLEY JOINT LIVING TRUST |
PRITCHETT SHIRLEY JOINT LIVING TRUST |
||
|
1/28/2015 |
|
Mult Parcel |
$79,000 |
PRITCHETT SHIRLEY JOINT LIVING TRUST |
JKLR HOLDINGS LLC |
||
|
9/30/1996 |
|
Historical |
$0 |
PRITCHETT WILLIAM R & SHIRLEY |
PRITCHETT WILLIAM R & SHIRLEY |
||
|
8/15/1996 |
|
Historical |
$0 |
|
PRITCHETT WILLIAM R & SHIRLEY |
||
| Last Mailed Notice of Value (N.O.V.) Information/History | ||||||||
|---|---|---|---|---|---|---|---|---|
| Year | Date | Market Value | Taxable Market Value | Gross Assessed | Exemption | Net Assessed | ||
|
2026 |
02/23/2026 |
164,000 |
145,399 |
15,993 |
0 |
15,993 |
||
|
2025 |
02/14/2025 |
166,500 |
138,476 |
15,232 |
0 |
15,232 |
||
|
2024 |
02/13/2024 |
163,000 |
131,882 |
14,506 |
0 |
14,506 |
||
|
2023 |
02/14/2023 |
155,000 |
125,602 |
13,815 |
0 |
13,815 |
||
|
2022 |
03/15/2022 |
135,500 |
119,621 |
13,157 |
0 |
13,157 |
||
| Property Building Permit History | |||||||||||
|---|---|---|---|---|---|---|---|---|---|---|---|
| Issued | Permit # | Provided by | Bldg # | Description | Est Construction Cost | Status | |||||
| No Building Permit records returned. | |||||||||||
| Click button on building number to access detailed information: | ||||||
|---|---|---|---|---|---|---|
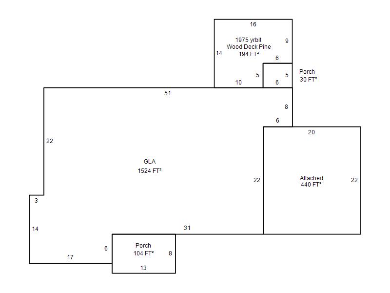
| Bldg # | Vacant/Improved Land | Bldg Description | Year Built | SqFt | # Stories | |
|
1 |
Improved |
Ranch 1 Story |
1950 |
1,524 |
1 Stories |
|