|
|
|
| Larry Stein Oklahoma County Assessor (405) 713-1200 - Public Access System |
|
|
|
|
|
|
| Real Property Display - Screen Produced 4/29/2026 1:02:45 AM | ||||
|---|---|---|---|---|
| Account: R188741480 | Type: Residential | Location: |
5601 NW 42ND ST |
|
| Building Name/Occupant: |
|
WARR ACRES |
||
| Owner Name 1: | WATERS BILL W |
Parcel PIN#: |
2860-18-874-1480 |
|
| Owner Name 2: | WATERS LISA G | 1/4 section #: |
2860 |
|
| Owner Name 3: | Parent Acct: |
|
||
| Billing Address: | 5601 NW 42ND ST | Tax District: |
|
|
| City, State, Zip | WARR ACRES, OK 73122-4325 | School System: |
Putnam City #1 |
|
|
Country: (If noted) |
Land Size: |
0.3554 Acres |
||
|
Land Value: 37,059 |
|
|||
|
Sect 15-T12N-R4W Qtr NW |
BAPTIST HINKLE ADD
Block
000
Lot
020
|
|||
| Full Legal Description: BAPTIST HINKLE ADD 000 020 |
| Value History (*The County Treasurer 405-713-1300 posts & collects actual tax amounts. Contact information HERE) | |||||||||||||
|---|---|---|---|---|---|---|---|---|---|---|---|---|---|
| Year | Market Value | Taxable Mkt Value | Gross Assessed | Exemption | Net Assessed | Millage | Est. Tax | Tax Savings | |||||
|
2026 |
197,500 |
169,744 |
18,671 |
1,000 |
17,671 |
115.77 |
$2,046 |
$469 |
|||||
|
2025 |
211,500 |
164,800 |
18,128 |
1,000 |
17,128 |
115.77 |
$1,983 |
$710 |
|||||
|
2024 |
213,000 |
160,000 |
17,599 |
1,000 |
16,599 |
114.25 |
$1,897 |
$780 |
|||||
| Property Account Status/Adjustments/Exemptions | ||
|---|---|---|
| Account # | Exemption Description | Amount |
|
R188741480 |
3% Cap Homestead |
0 |
|
R188741480 |
Homestead |
1,000 |
| Property Deed Transaction History (Recorded in the County Clerk's Office) | ||||||||||
|---|---|---|---|---|---|---|---|---|---|---|
| Date | Type | Book | Page | Price | Grantor | Grantee | ||||
|
10/2/1995 |
|
Historical |
$77,000 |
VAN DYCK LARRY E & EUGENIA A |
WATERS BILL W |
|||||
|
6/18/1993 |
|
Historical |
$52,000 |
PUTNAM CITY CHRISTIAN CHURCH |
VAN DYCK LARRY E & EUGENIA A |
|||||
|
5/9/1989 |
|
Historical |
$0 |
OCONNOR MICHAEL G & CATHERINE |
PUTNAM CITY CHRISTIAN CHURCH |
|||||
| Last Mailed Notice of Value (N.O.V.) Information/History | ||||||||
|---|---|---|---|---|---|---|---|---|
| Year | Date | Market Value | Taxable Market Value | Gross Assessed | Exemption | Net Assessed | ||
|
2026 |
02/23/2026 |
197,500 |
169,744 |
18,671 |
1,000 |
17,671 |
||
|
2025 |
02/14/2025 |
211,500 |
164,800 |
18,128 |
1,000 |
17,128 |
||
|
2024 |
02/13/2024 |
213,000 |
160,000 |
17,599 |
1,000 |
16,599 |
||
| Property Building Permit History | |||||||||||
|---|---|---|---|---|---|---|---|---|---|---|---|
| Issued | Permit # | Provided by | Bldg # | Description | Est Construction Cost | Status | |||||
| No Building Permit records returned. | |||||||||||
| Click button below to access detailed information and additional property photos: | ||||||
|---|---|---|---|---|---|---|
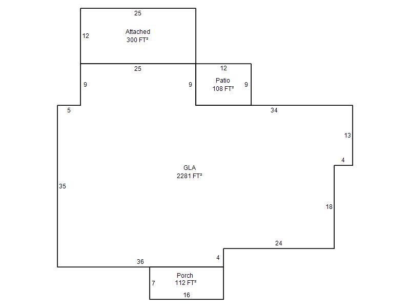
| Bldg # | Vacant/Improved Land | Bldg Description | Year Built | SqFt | # Stories | |
|
1 |
Improved |
Ranch 1 Story |
1955 |
2,281 |
1 Stories |
|