|
|
|
| Larry Stein Oklahoma County Assessor (405) 713-1200 - Public Access System |
|
|
|
|
|
|
| Real Property Display - Screen Produced 2/27/2026 9:47:46 PM | ||||
|---|---|---|---|---|
| Account: R171501800 | Type: Residential | Location: |
4705 N REDMOND AVE |
|
| Building Name/Occupant: |
|
BETHANY |
||
| Owner Name 1: | WHEELER MIKE & TONYA |
Parcel PIN#: |
2861-17-150-1800 |
|
| Owner Name 2: | 1/4 section #: |
2861 |
||
| Owner Name 3: | Parent Acct: |
|
||
| Billing Address: | 3104 BROOKHOLLOW RD | Tax District: |
|
|
| City, State, Zip | OKLAHOMA CITY, OK 73120-5209 | School System: |
Bethany #88 |
|
|
Country: (If noted) |
Land Size: |
0.1664 Acres |
||
|
Land Value: 47,125 |
|
|||
|
Sect 16-T12N-R4W Qtr NE |
STOCKTON ADDITION
Block
001
Lot
010
|
|||
| Full Legal Description: STOCKTON ADDITION 001 010 |
| Photo & Sketch (if available) | Comp Sales (ordered by relevancy) |
|
||||||||||||||||||
|
||||||||||||||||||||
| Value History (*The County Treasurer 405-713-1300 posts & collects actual tax amounts. Contact information HERE) | |||||||||||||
|---|---|---|---|---|---|---|---|---|---|---|---|---|---|
| Year | Market Value | Taxable Mkt Value | Gross Assessed | Exemption | Net Assessed | Millage | Est. Tax | Tax Savings | |||||
|
2025 |
96,500 |
57,744 |
6,351 |
0 |
6,351 |
134.21 |
$852 |
$572 |
|||||
|
2024 |
93,500 |
54,995 |
6,049 |
0 |
6,049 |
134.68 |
$815 |
$570 |
|||||
|
2023 |
87,500 |
52,377 |
5,761 |
0 |
5,761 |
136.23 |
$785 |
$526 |
|||||
|
2022 |
75,500 |
49,883 |
5,486 |
0 |
5,486 |
120.01 |
$659 |
$338 |
|||||
|
2021 |
63,500 |
47,508 |
5,225 |
0 |
5,225 |
119.64 |
$625 |
$210 |
|||||
| Property Account Status/Adjustments/Exemptions | ||
|---|---|---|
| Account # | Exemption Description | Amount |
|
R171501800 |
5% Capped Account |
0 |
| Property Deed Transaction History (Recorded in the County Clerk's Office) | ||||||||||
|---|---|---|---|---|---|---|---|---|---|---|
| Date | Type | Book | Page | Price | Grantor | Grantee | ||||
|
3/31/2011 |
|
Hmstd Off & |
$0 |
RUPP CAROL C |
WHEELER MIKE & TONYA |
|||||
|
1/13/2011 |
|
Deeds |
$0 |
CARSON JOEL L TRS CARSON JOYCE L REV TRUST |
RUPP CAROL |
|||||
|
1/23/1998 |
|
Historical |
$0 |
WESTSHORE CORP |
RUPP CAROL C |
|||||
|
12/28/1993 |
|
Historical |
$0 |
WESTHORE CORP |
WESTSHORE CORP |
|||||
|
6/15/1993 |
|
Historical |
$12,000 |
CORFF JOHN C & MARJORIE A |
WESTHORE CORP |
|||||
| Last Mailed Notice of Value (N.O.V.) Information/History | ||||||||
|---|---|---|---|---|---|---|---|---|
| Year | Date | Market Value | Taxable Market Value | Gross Assessed | Exemption | Net Assessed | ||
|
2026 |
02/23/2026 |
96,000 |
60,631 |
6,668 |
0 |
6,668 |
||
|
2025 |
02/14/2025 |
96,500 |
57,744 |
6,351 |
0 |
6,351 |
||
|
2024 |
02/13/2024 |
93,500 |
54,995 |
6,049 |
0 |
6,049 |
||
|
2023 |
02/14/2023 |
87,500 |
52,377 |
5,761 |
0 |
5,761 |
||
|
2022 |
03/15/2022 |
75,500 |
49,883 |
5,486 |
0 |
5,486 |
||
| Property Building Permit History | |||||||||||
|---|---|---|---|---|---|---|---|---|---|---|---|
| Issued | Permit # | Provided by | Bldg # | Description | Est Construction Cost | Status | |||||
| No Building Permit records returned. | |||||||||||
| Click button on building number to access detailed information: | ||||||
|---|---|---|---|---|---|---|
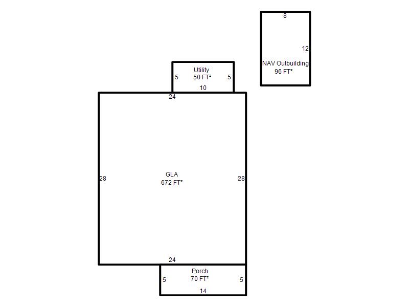
| Bldg # | Vacant/Improved Land | Bldg Description | Year Built | SqFt | # Stories | |
|
1 |
Improved |
Ranch 1 Story |
1932 |
672 |
1 Stories |
|