|
|
|
| Larry Stein Oklahoma County Assessor (405) 713-1200 - Public Access System |
|
|
|
|
|
|
| Real Property Display - Screen Produced 4/2/2026 1:18:50 PM | ||||
|---|---|---|---|---|
| Account: R172821280 | Type: Residential | Location: |
7205 NW 45TH ST |
|
| Building Name/Occupant: |
|
BETHANY |
||
| Owner Name 1: | SPAUGY LOYD LEON III |
Parcel PIN#: |
2865-17-282-1280 |
|
| Owner Name 2: | 1/4 section #: |
2865 |
||
| Owner Name 3: | Parent Acct: |
|
||
| Billing Address: | 7205 NW 45TH ST | Tax District: |
|
|
| City, State, Zip | BETHANY, OK 73008 | School System: |
Putnam City #1 |
|
|
Country: (If noted) |
Land Size: |
0.1831 Acres |
||
|
Land Value: 23,925 |
|
|||
|
Sect 17-T12N-R4W Qtr NE |
BEVERLYS SECOND ADD
Block
001
Lot
015
|
|||
| Full Legal Description: BEVERLYS SECOND ADD 001 015 |
| Photo & Sketch (if available) | Comp Sales (ordered by relevancy) |
|
||||||||||||||||||
|
||||||||||||||||||||
| Value History (*The County Treasurer 405-713-1300 posts & collects actual tax amounts. Contact information HERE) | |||||||||||||
|---|---|---|---|---|---|---|---|---|---|---|---|---|---|
| Year | Market Value | Taxable Mkt Value | Gross Assessed | Exemption | Net Assessed | Millage | Est. Tax | Tax Savings | |||||
|
2026 |
112,000 |
100,967 |
11,105 |
1,000 |
10,105 |
122.14 |
$1,234 |
$270 |
|||||
|
2025 |
105,500 |
98,027 |
10,782 |
1,000 |
9,782 |
122.14 |
$1,195 |
$223 |
|||||
|
2024 |
105,000 |
95,172 |
10,468 |
1,000 |
9,468 |
120.52 |
$1,141 |
$251 |
|||||
|
2023 |
101,500 |
92,400 |
10,164 |
0 |
10,164 |
123.06 |
$1,251 |
$123 |
|||||
|
2022 |
88,000 |
88,000 |
9,680 |
0 |
9,680 |
112.54 |
$1,089 |
$0 |
|||||
| Property Account Status/Adjustments/Exemptions | ||
|---|---|---|
| Account # | Exemption Description | Amount |
|
R172821280 |
Homestead |
1,000 |
|
R172821280 |
3% Cap Homestead |
0 |
| Property Deed Transaction History (Recorded in the County Clerk's Office) | |||||||
|---|---|---|---|---|---|---|---|
| Date | Type | Book | Page | Price | Grantor | Grantee | |
|
7/28/2021 |
|
Deeds |
$57,000 |
SPAUGY BETTY J |
SPAUGY LOYD LEON III |
||
|
5/16/2018 |
|
Deeds |
$0 |
SPAUGY LOYD L & BETTY |
SPAUGY BETTY J |
||
|
10/1/1978 |
|
Historical |
$0 |
|
SPAUGY LOYD L & BETTY |
||
| Last Mailed Notice of Value (N.O.V.) Information/History | ||||||||
|---|---|---|---|---|---|---|---|---|
| Year | Date | Market Value | Taxable Market Value | Gross Assessed | Exemption | Net Assessed | ||
|
2026 |
02/23/2026 |
112,000 |
100,967 |
11,105 |
1,000 |
10,105 |
||
|
2025 |
02/14/2025 |
105,500 |
98,027 |
10,782 |
1,000 |
9,782 |
||
|
2024 |
02/13/2024 |
105,000 |
95,172 |
10,468 |
1,000 |
9,468 |
||
|
2023 |
02/14/2023 |
101,500 |
92,400 |
10,164 |
0 |
10,164 |
||
|
2022 |
03/15/2022 |
88,000 |
88,000 |
9,680 |
0 |
9,680 |
||
| Property Building Permit History | |||||||||||
|---|---|---|---|---|---|---|---|---|---|---|---|
| Issued | Permit # | Provided by | Bldg # | Description | Est Construction Cost | Status | |||||
| No Building Permit records returned. | |||||||||||
| Click button on building number to access detailed information: | ||||||
|---|---|---|---|---|---|---|
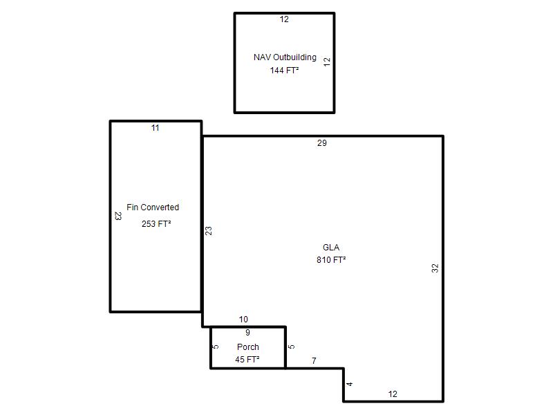
| Bldg # | Vacant/Improved Land | Bldg Description | Year Built | SqFt | # Stories | |
|
1 |
Improved |
Ranch 1 Story |
1950 |
810 |
1 Stories |
|