|
|
|
| Larry Stein Oklahoma County Assessor (405) 713-1200 - Public Access System |
|
|
|
|
|
|
| Real Property Display - Screen Produced 4/2/2026 11:43:45 AM | ||||
|---|---|---|---|---|
| Account: R172821760 | Type: Residential | Location: |
7120 NW 45TH ST |
|
| Building Name/Occupant: |
|
BETHANY |
||
| Owner Name 1: | SHULTZ ROSSELYN |
Parcel PIN#: |
2865-17-282-1760 |
|
| Owner Name 2: | 1/4 section #: |
2865 |
||
| Owner Name 3: | Parent Acct: |
|
||
| Billing Address: | 7120 NW 45TH ST | Tax District: |
|
|
| City, State, Zip | BETHANY, OK 73008-2312 | School System: |
Putnam City #1 |
|
|
Country: (If noted) |
Land Size: |
0.1771 Acres |
||
|
Land Value: 23,142 |
|
|||
|
Sect 17-T12N-R4W Qtr NE |
BEVERLYS SECOND ADD
Block
002
Lot
014
|
|||
| Full Legal Description: BEVERLYS SECOND ADD 002 014 |
| Photo & Sketch (if available) | Comp Sales (ordered by relevancy) |
|
||||||||||||||||||
|
||||||||||||||||||||
| Value History (*The County Treasurer 405-713-1300 posts & collects actual tax amounts. Contact information HERE) | |||||||||||||
|---|---|---|---|---|---|---|---|---|---|---|---|---|---|
| Year | Market Value | Taxable Mkt Value | Gross Assessed | Exemption | Net Assessed | Millage | Est. Tax | Tax Savings | |||||
|
2026 |
146,000 |
134,008 |
14,739 |
0 |
14,739 |
122.14 |
$1,800 |
$161 |
|||||
|
2025 |
137,500 |
127,627 |
14,038 |
0 |
14,038 |
122.14 |
$1,715 |
$133 |
|||||
|
2024 |
136,500 |
121,550 |
13,369 |
0 |
13,369 |
120.52 |
$1,611 |
$198 |
|||||
|
2023 |
134,000 |
115,762 |
12,733 |
0 |
12,733 |
123.06 |
$1,567 |
$247 |
|||||
|
2022 |
116,500 |
110,250 |
12,127 |
0 |
12,127 |
112.54 |
$1,365 |
$77 |
|||||
| Property Account Status/Adjustments/Exemptions | ||
|---|---|---|
| Account # | Exemption Description | Amount |
|
R172821760 |
5% Capped Account |
0 |
| Property Deed Transaction History (Recorded in the County Clerk's Office) | ||||||||||
|---|---|---|---|---|---|---|---|---|---|---|
| Date | Type | Book | Page | Price | Grantor | Grantee | ||||
|
8/24/2017 |
|
Deeds |
$0 |
KUEHN ROSSELYN |
SHULTZ ROSSELYN |
|||||
|
1/12/2004 |
|
Deeds |
$79,500 |
GIBSON HENRY R & PAULA |
KUEHN ROSSELYN |
|||||
|
1/12/2004 |
|
Deeds |
$0 |
GIBSON HENRY R & PAULA R |
KUEHN ROSSELYN |
|||||
|
9/14/2001 |
|
Deeds |
$0 |
GIBSON HENRY R |
GIBSON HENRY R & PAULA |
|||||
|
8/8/1994 |
|
Historical |
$0 |
GIBSON HENRY & VERA |
GIBSON HENRY R |
|||||
| Last Mailed Notice of Value (N.O.V.) Information/History | ||||||||
|---|---|---|---|---|---|---|---|---|
| Year | Date | Market Value | Taxable Market Value | Gross Assessed | Exemption | Net Assessed | ||
|
2026 |
02/23/2026 |
146,000 |
134,008 |
14,739 |
0 |
14,739 |
||
|
2025 |
02/14/2025 |
137,500 |
127,627 |
14,038 |
0 |
14,038 |
||
|
2024 |
02/13/2024 |
136,500 |
121,550 |
13,369 |
0 |
13,369 |
||
|
2023 |
02/14/2023 |
134,000 |
115,762 |
12,733 |
0 |
12,733 |
||
|
2022 |
03/15/2022 |
116,500 |
110,250 |
12,127 |
0 |
12,127 |
||
| Property Building Permit History | |||||||||||
|---|---|---|---|---|---|---|---|---|---|---|---|
| Issued | Permit # | Provided by | Bldg # | Description | Est Construction Cost | Status | |||||
| No Building Permit records returned. | |||||||||||
| Click button on building number to access detailed information: | ||||||
|---|---|---|---|---|---|---|
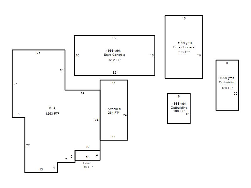
| Bldg # | Vacant/Improved Land | Bldg Description | Year Built | SqFt | # Stories | |
|
1 |
Improved |
Ranch 1 Story |
1951 |
1,263 |
1 Stories |
|