|
|
|
| Larry Stein Oklahoma County Assessor (405) 713-1200 - Public Access System |
|
|
|
|
|
|
| Real Property Display - Screen Produced 4/2/2026 11:43:46 AM | ||||
|---|---|---|---|---|
| Account: R172821980 | Type: Residential | Location: |
7213 NW 44TH ST |
|
| Building Name/Occupant: |
|
BETHANY |
||
| Owner Name 1: | HERNANDEZ VANESSA L |
Parcel PIN#: |
2865-17-282-1980 |
|
| Owner Name 2: | 1/4 section #: |
2865 |
||
| Owner Name 3: | Parent Acct: |
|
||
| Billing Address: | 7213 NW 44TH ST | Tax District: |
|
|
| City, State, Zip | BETHANY, OK 73008-2309 | School System: |
Putnam City #1 |
|
|
Country: (If noted) |
Land Size: |
0.1860 Acres |
||
|
Land Value: 24,300 |
|
|||
|
Sect 17-T12N-R4W Qtr NE |
BEVERLYS SECOND ADD
Block
002
Lot
025
|
|||
| Full Legal Description: BEVERLYS SECOND ADD 002 025 |
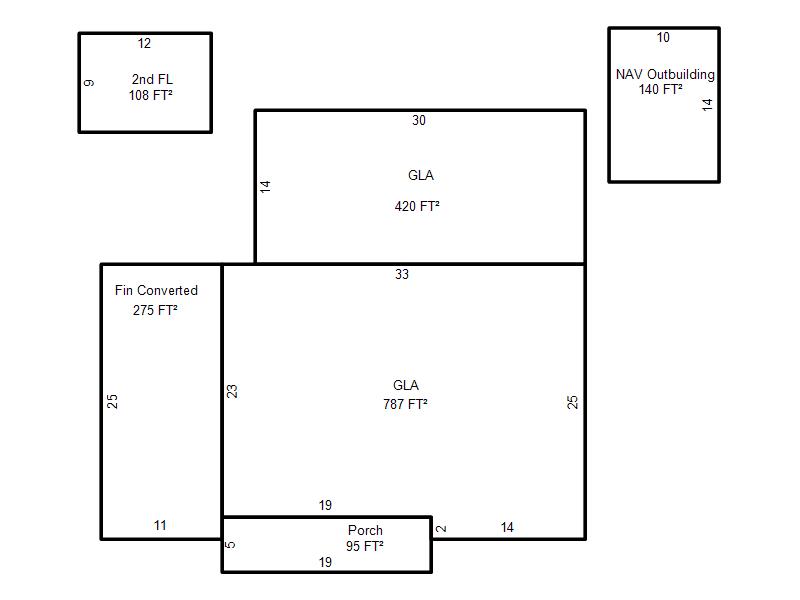
| Photo & Sketch (if available) | Comp Sales (ordered by relevancy) |
|
||||||||||||||||||
|
||||||||||||||||||||
| Value History (*The County Treasurer 405-713-1300 posts & collects actual tax amounts. Contact information HERE) | |||||||||||||
|---|---|---|---|---|---|---|---|---|---|---|---|---|---|
| Year | Market Value | Taxable Mkt Value | Gross Assessed | Exemption | Net Assessed | Millage | Est. Tax | Tax Savings | |||||
|
2026 |
146,500 |
143,685 |
15,805 |
1,000 |
14,805 |
122.14 |
$1,808 |
$160 |
|||||
|
2025 |
139,500 |
139,500 |
15,345 |
1,000 |
14,345 |
122.14 |
$1,752 |
$122 |
|||||
|
2024 |
138,500 |
138,500 |
15,235 |
1,000 |
14,235 |
120.52 |
$1,716 |
$121 |
|||||
|
2023 |
135,000 |
115,211 |
12,672 |
0 |
12,672 |
123.06 |
$1,560 |
$268 |
|||||
|
2022 |
118,000 |
109,725 |
12,069 |
0 |
12,069 |
112.54 |
$1,358 |
$102 |
|||||
| Property Account Status/Adjustments/Exemptions | ||
|---|---|---|
| Account # | Exemption Description | Amount |
|
R172821980 |
3% Cap Homestead |
0 |
|
R172821980 |
Homestead |
1,000 |
| Property Deed Transaction History (Recorded in the County Clerk's Office) | |||||||
|---|---|---|---|---|---|---|---|
| Date | Type | Book | Page | Price | Grantor | Grantee | |
|
10/13/2023 |
|
Deeds |
$135,000 |
DUCEY KEVIN MICHAEL |
HERNANDEZ VANESSA L |
||
|
6/18/2020 |
|
Deeds |
$72,000 |
GARRISON MICHAEL L |
DUCEY KEVIN MICHAEL |
||
|
6/1/1986 |
|
Historical |
$0 |
|
GARRISON MICHAEL L |
||
| Last Mailed Notice of Value (N.O.V.) Information/History | ||||||||
|---|---|---|---|---|---|---|---|---|
| Year | Date | Market Value | Taxable Market Value | Gross Assessed | Exemption | Net Assessed | ||
|
2026 |
02/23/2026 |
146,500 |
143,685 |
15,805 |
1,000 |
14,805 |
||
|
2025 |
02/14/2025 |
139,500 |
139,500 |
15,345 |
1,000 |
14,345 |
||
|
2024 |
02/13/2024 |
138,500 |
138,500 |
15,235 |
0 |
15,235 |
||
|
2023 |
02/14/2023 |
135,000 |
115,211 |
12,672 |
0 |
12,672 |
||
|
2022 |
03/15/2022 |
118,000 |
109,725 |
12,069 |
0 |
12,069 |
||
| Property Building Permit History | |||||||||||
|---|---|---|---|---|---|---|---|---|---|---|---|
| Issued | Permit # | Provided by | Bldg # | Description | Est Construction Cost | Status | |||||
| No Building Permit records returned. | |||||||||||
| Click button on building number to access detailed information: | ||||||
|---|---|---|---|---|---|---|
| Bldg # | Vacant/Improved Land | Bldg Description | Year Built | SqFt | # Stories | |
|
1 |
Improved |
1½ Story Fin |
1950 |
1,315 |
1.5 Stories |
|