|
|
|
| Larry Stein Oklahoma County Assessor (405) 713-1200 - Public Access System |
|
|
|
|
|
|
| Real Property Display - Screen Produced 3/13/2026 9:06:02 AM | ||||
|---|---|---|---|---|
| Account: R150830775 | Type: Residential | Location: |
300 HISEL RD |
|
| Building Name/Occupant: |
|
DEL CITY |
||
| Owner Name 1: | THOMAS ROBERT E & DEBORAH L CO TRS |
Parcel PIN#: |
1417-15-083-0775 |
|
| Owner Name 2: | THOMAS ROBERT EDWARD II REV TRUST | 1/4 section #: |
1417 |
|
| Owner Name 3: | Parent Acct: |
|
||
| Billing Address: | 3617 S HOLLIDAY AVE | Tax District: |
|
|
| City, State, Zip | DEL CITY, OK 73115-3611 | School System: |
Mid-Del #52 |
|
|
Country: (If noted) |
Land Size: |
1.2310 Acres |
||
|
Land Value: 52,948 |
|
|||
|
Sect 5-T11N-R2W Qtr NE |
UNPLTD PT SEC 05 11N 2W
Block
000
Lot
000
|
|||
| Full Legal Description: UNPLTD PT SEC 05 11N 2W 000 000 PT OF NE4 BEG 628.85FT W 484.59FT S OF NE/C OF NE4 TH E330.85FT S161.64FT W330.85FT N161.64FT TO BEG PT OF SEC 5 11N 2WLESS N60FT |
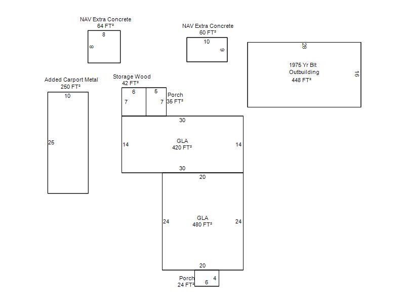
| Photo & Sketch (if available) | Comp Sales (ordered by relevancy) |
|
||||||||||||||||||
|
||||||||||||||||||||
| Value History (*The County Treasurer 405-713-1300 posts & collects actual tax amounts. Contact information HERE) | |||||||||||||
|---|---|---|---|---|---|---|---|---|---|---|---|---|---|
| Year | Market Value | Taxable Mkt Value | Gross Assessed | Exemption | Net Assessed | Millage | Est. Tax | Tax Savings | |||||
|
2025 |
98,500 |
69,556 |
7,650 |
0 |
7,650 |
114.72 |
$878 |
$365 |
|||||
|
2024 |
88,000 |
66,244 |
7,285 |
0 |
7,285 |
117.21 |
$854 |
$281 |
|||||
|
2023 |
78,500 |
63,090 |
6,939 |
0 |
6,939 |
112.46 |
$780 |
$191 |
|||||
|
2022 |
76,500 |
60,086 |
6,608 |
0 |
6,608 |
110.76 |
$732 |
$200 |
|||||
|
2021 |
61,000 |
57,225 |
6,294 |
0 |
6,294 |
114.70 |
$722 |
$48 |
|||||
| Property Account Status/Adjustments/Exemptions | ||
|---|---|---|
| Account # | Exemption Description | Amount |
|
R150830775 |
5% Capped Account |
0 |
| Property Deed Transaction History (Recorded in the County Clerk's Office) | |||||||
|---|---|---|---|---|---|---|---|
| Date | Type | Book | Page | Price | Grantor | Grantee | |
|
9/9/2021 |
|
Deeds |
$0 |
THOMAS ROBERT E & DEBORAH L |
THOMAS ROBERT E & DEBORAH L CO TRS |
||
|
8/29/2003 |
|
Mult Parcel |
$68,000 |
JOHNSON CAROLE RENEE |
THOMAS ROBERT E & DEBORAH L |
||
|
10/17/2002 |
|
Deeds |
$0 |
JOHNSON GEORGIE M JOHNSON CAROLE RENEE |
JOHNSON CAROLE RENEE |
||
|
3/1/1985 |
|
Historical |
$0 |
|
JOHNSON GEORGIE M |
||
| Last Mailed Notice of Value (N.O.V.) Information/History | ||||||||
|---|---|---|---|---|---|---|---|---|
| Year | Date | Market Value | Taxable Market Value | Gross Assessed | Exemption | Net Assessed | ||
|
2026 |
02/06/2026 |
95,500 |
73,033 |
8,033 |
0 |
8,033 |
||
|
2025 |
01/31/2025 |
98,500 |
69,556 |
7,650 |
0 |
7,650 |
||
|
2024 |
01/22/2024 |
88,000 |
66,244 |
7,285 |
0 |
7,285 |
||
|
2023 |
01/23/2023 |
78,500 |
63,090 |
6,939 |
0 |
6,939 |
||
|
2022 |
02/22/2022 |
76,500 |
60,086 |
6,608 |
0 |
6,608 |
||
| Property Building Permit History | |||||||||||
|---|---|---|---|---|---|---|---|---|---|---|---|
| Issued | Permit # | Provided by | Bldg # | Description | Est Construction Cost | Status | |||||
| No Building Permit records returned. | |||||||||||
| Click button on building number to access detailed information: | ||||||
|---|---|---|---|---|---|---|
| Bldg # | Vacant/Improved Land | Bldg Description | Year Built | SqFt | # Stories | |
|
1 |
Improved |
Ranch 1 Story |
1952 |
900 |
1 Stories |
|